該項目涉及將瓜達拉哈拉公認的葡萄酒品牌 Romea 的總店搬遷到一個具有環境藝術價值的物業,周圍環繞著一些 20 世紀早期和中期的建築。該項目的一個重要指導方針是設計地塊的地役權區域,其結構輕巧,讓人聯想到當時房屋中的陽台,同時保持對行人的友好。
模塊化立麵的設計旨在與該地區的外部創造持續的界麵,這是 Romea 品牌自成立以來的一個關鍵前提,與人行道的休閑體驗、優質服務和優質美食相關聯。主入口向街道展示了一個倒角屋頂,作為將行人融入餐廳的姿態,並與斜對麵的建築相呼應。
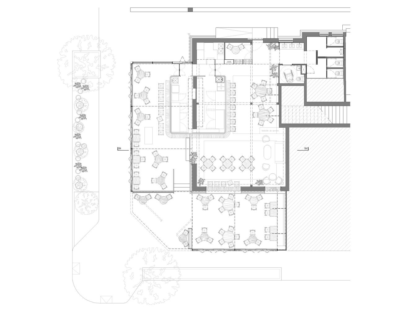
另一個重要前提是保持品牌特有的舒適和非正式氛圍,即使搬到比前一個大五倍的地方。這是通過分隔四個不同的用餐區來實現,每個用餐區都有其獨特的氛圍,但通過中央服務酒吧和建築物的原始開口相互連接。
室內設計的紋理來自於恢複 Romea 客戶先前確定的某些材料,例如粗梳木和意大利麵瓷磚地板,但融入了新的色彩組合。因此,設計師決定將建築物牆壁多年來的油漆層暴露出來。所有的地板和酒吧瓷磚都是專為該項目設計,由當地工匠以及瓜納華托州製造。
∇ 平麵圖
∇ 剖麵圖
版權聲明:本站所有文章除投稿授權發布外,其他文字內容均為原創,享有著作權保護,未經許可不得以任何形式進行轉載(包括且不限於:媒體、網站、公眾號等)。所有項目照片/設計圖形版權歸原作者所有。本站部分內容源自網絡公開資源或用戶分享,如若侵犯了原作者的合法權益,可聯係我們進行處理。

























