2016年剛忙完山西120師學校,我接到在華工院工作的好友電話,希望能由我們來設計北工大圖書館的室內及景觀,提前介入以配合建築施工圖的深化設計,“像你們山西學校一樣,達到建築室內景觀一體化的效果”。我欣然答應,國內獨立事務所很難接觸到大型公共建築設計,這是一個很好的切入點。
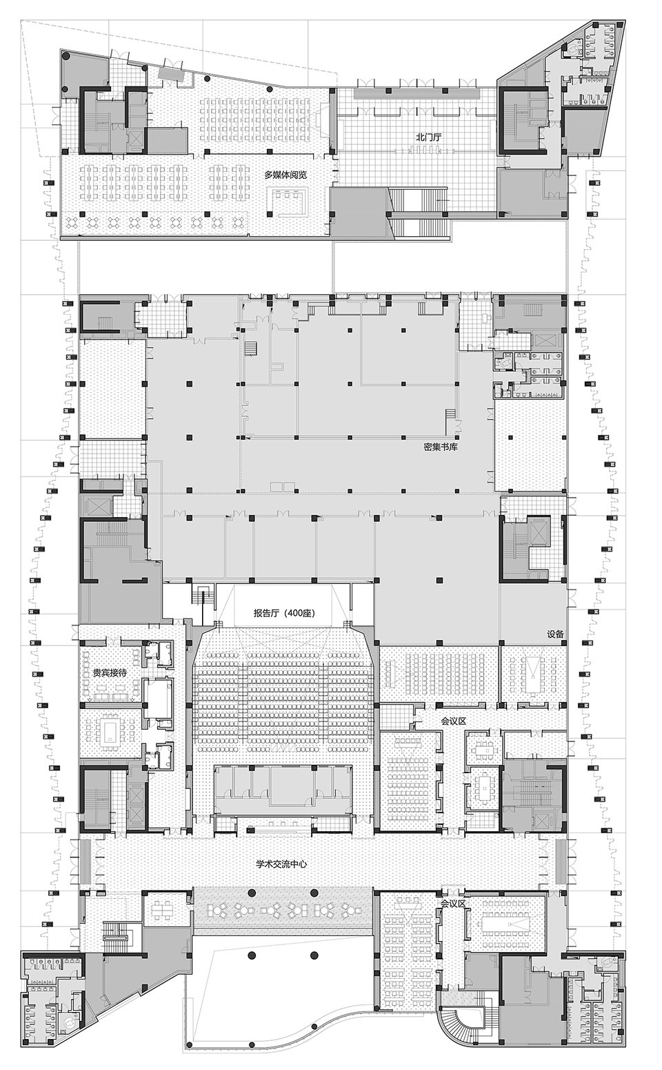
4.2萬平方米的圖書館位於北工大校園中軸上,建築室內格局已經成型,新館圍繞著舊館布置,新舊之間形成通高采光的帶狀通廊和中庭,清晰地組織了2~5層開架閱覽空間。首層及負一層為學術交流及展覽等獨立對外開放的功能。
建築/室內 Architecture/Interior
施工招標習慣把土建和裝修分開,導致建築與室內在設計銜接出現空白或者含糊地帶,常見弊端是建築與室內“人格分裂”般各自表達,機電管網、隔牆等在土建驗收完成後再拆除重新安排,造成時間及費用上的浪費。
室內設計在建築方案深化階段介入,可在使用層麵優化建築空間布局,甚至修改防火分區,預見性落實機電末端定位及材料交接等細節,反提條件在“土建”施工圖直接表達或預留。
空間屬性/氛圍 Spatial Quality/Atmosphere
知識傳播的媒介不再局限於書本,同樣圖書館的“知識交換”訴求變得更加複合,從單一的人與書本的關係,到人與人的知識交換,使其成為具有社交屬性的學習空間。在本案中,我們在提供查閱資料和自習的功能之外,將交往空間提到重要位置。
空間布局上,圍繞采光中庭,我們將交流活動區、開架閱覽區及休憩區以向心方式層層展開,並以三種不同地麵材質及采光形式界定三種不同屬性的空間:
1.深色地磚部分為主要組織交通及新書發布、書友會、講座及展覽等活動區域。通過一個略暗的、低矮的門廳,人們進入明亮通高的中庭空間,漫反射的天光讓空間呈現寧靜的氛圍。 “大會客廳”的大台階將各層閱覽空間聯係起來。
2.灰色地毯部分為高效開架閱覽區,開架閱覽區的書架及閱覽桌均以垂直於采光麵的方式布置,既便於檢索,同時最大限度保證視線的通透性及自然光線的滲透。
研討室的植入有效弱化大空間的非人性尺度,彩色透明玻璃的使用將“研討”這一行為變得更具有展示性,提示使用者在這座圖書館“交流”是被鼓勵發生的。書架中安插閱讀座,垂吊於桌麵的燈使發生在超長自習桌上的學習帶有“聚會”的意味,熱烈,聚焦,同時也放鬆。
3. 臨窗部分為木地板,由於圖書館外輪廓的擺動曲線造型,內部形成許多不規則空間,建築上采取了局部挑空的形式。在規整的開架閱覽區域之外,我們將這部分空間定義為“交流互動區”。低矮的家具,地板溫暖的木色和“竹簡”立麵帶來的柔和光線令這片區域的氛圍舒適愜意。
我們在麵層材料的選擇上采用了十分低調的策略,清水混凝土牆麵保持了對傳統圖書館的記憶,隻在必要區域使用木材,家具和燈具也以黑白色和原木色為主,目的是盡可能還原建築空間的素雅氛圍,營造出更加開放、舒服的閱讀和休息空間。
隙/聯 Gaps and Links
新館層高5.4米,我們試圖通過“間隙和聯係”這一動作來彌補較高層高帶來流動性欠缺的問題。
With a height of 5.4 meters of each floor, we tried to make up for the lack of the continuity caused by the heights through the action of “gaps and links”.
中庭空間二層通往三層的大樓梯增加休憩台階的基座,樓梯則兼顧休憩的座凳和交通的雙重意義,視覺上和行為上可以減少直跑樓梯的畏懼感。新舊館層高不一,舊館為4.2米,結合書牆我們梳理了新舊館的連接,讓錯層產生“隙”,再讓連接部分的樓梯錯位,產生親切的半層空間和空間相互滲透。
在較為狹窄的通高空間,例如臨窗的休憩區增設鋼樓梯,讓視覺有停留點,同時室外能閱讀到室內空間的動態。舊館西側與新館之間為采光通廊,看似十分簡約的混凝土片牆懸挑樓梯有效解決了層高不同的新舊館之間和上下樓層之間的複雜連接。
最後的結果也一如預期,空間的開放性和流動性進一步強化。室內與建築的邏輯高度統一,“做了很多思考及設計,為了最後好像什麼都沒做”。
∇ 首層平麵圖
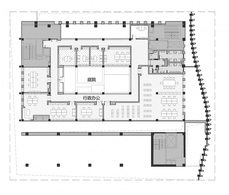
∇ 二層平麵圖
∇ 三層平麵圖
∇ 四層平麵圖
∇ 五層平麵圖
∇ 剖透視
項目信息
項目名稱:北京工業大學逸夫圖書館改擴建工程室內
設計方:WAU建築事務所
項目設計 & 完成年份:2016/2019
主創及設計團隊 主創:吳林壽 趙向瑩 團隊:林光福,張愛萍,吳承炫,張仕浩
項目地址:北京工業大學
建築麵積:41000㎡
建築、結構、機電:華南理工大學建築設計研究院有限公司
景觀設計:WAU建築事務所”
客戶:北京工業大學





































