The Hotel Britomart 是一座 10 層高的建築,由手工粘土磚製成,其粗糙的表麵上點綴著一係列光滑的玻璃窗。Britomart 酒店位於奧克蘭市中心一個名為 Britomart 的九個街區的遺產區的中心。Cheshire Architects的設計回應是創建一個感覺好像它屬於 Aotearoa 及其人民的酒店,而不僅僅是住在那裏的客人。
Cheshire Architects致力於創造一種與這種規模的當代建築通常不相關的深厚工藝感。其目的是讓建築、室內設計和文物建築無縫融入五顆綠星建築生態係統。Hotel Britomart 是新西蘭第一家也是唯一一家獲得新西蘭綠色建築委員會認證的 5 級綠星酒店。
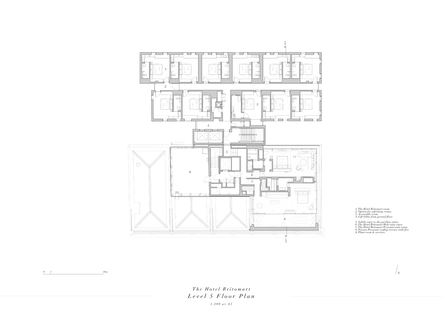
在新的酒店大樓中,外部的手工粘土磚與酒店遺產的磚砌相關,而齊平的玻璃窗被細化,並在粗糙的粘土牆上布置成時尚、現代的插入物。在磚塊內,99 間典型的房間感覺就像光線柔和的木屋。根據每個房間對太陽和光線的方向,有三種大氣變化。房間幾何形狀簡單,麵積適中。幾乎房間裏的所有東西都是由Cheshire Architects的團隊定製設計。
五間頂層套房更為寬敞,以私人屋頂露台為背景,欣賞城市景觀。房間內有 Russ Flatt (Ngāti Kahungungu) 和 Kieran Scott 精心委托的攝影作品。這些圖像並排放置,從雙視角捕捉,通過兩種不同的文化鏡頭詮釋陸地、海洋和天空。
∇ 技術圖紙&手繪草圖
版權聲明:本站所有文章除投稿授權發布外,其他文字內容均為原創,享有著作權保護,未經許可不得以任何形式進行轉載(包括且不限於:媒體、網站、公眾號等)。所有項目照片/設計圖形版權歸原作者所有。本站部分內容源自網絡公開資源或用戶分享,如若侵犯了原作者的合法權益,可聯係我們進行處理。

































