喜悅,從來不在我們的掌控之中,而快樂常常都是可以掌控的。我們要掌控,掌控今晚可預測的快樂,掌控今晚去向迷離的旅⾏,掌控故事流動的方向,掌控未來的方向。
什麼是未來?現在,是過去的未來;未來,是現在的未來。寸匠熊貓NANA基於CONTROL品牌概念,提取漳州的城市精神,以極具機械感,科技感,未來感的空間體驗,詮釋專屬於CONTROL的酒文化。
粗野、先鋒、無畏
將是空間的本質因素
Roughness, Avant-garde, Fearlessness
will be the essential factor of space
打破COCKTAIL&WHISKY BAR的傳統定義,將源自未來主義的粗野、先鋒、無畏的美感,通過藝術感與科技力構築的室內場景加以體現。營造出身處未來世界的空間錯覺。設計從建築外立麵開始發力,將扭曲若水的網路轉譯為建築的一部分,二維的牆麵帶來出三維的視覺體驗,從而把商業的普通立麵轉變成一座極具美感的雕塑。同時為商業提供更加積極的視覺吸引力,吸引著來往消費者的眼球,進一步吸引消費者進入空間促進消費。
如同未來主義繪畫一般,在室內設計上我們也試圖呈現具有動感美學的空間,利用有機的曲線,變幻的光線,帶來多感官沉浸式的空間體驗。有機的曲線構成的三維視覺網絡牆麵,打破空間內的硬質邊界感與軸向關係,也打破橫平豎直的構圖並呈現具有先鋒性的視覺體驗。
宏偉的世界獲得了一種新的美
速度之美
從而變得豐富多姿
The magnificent world has acquired a new beauty
The beauty of speed
becomes rich and graceful
光與色彩是空間的主題。燈光可以根據不同的音樂風格、場景需求改變顏色和閃爍的頻率,也最大限度兼顧不同的消費人群。當燈光反射至不鏽鋼牆麵,整個光線遍布空間各個角落,空間體驗也轉變成為完整沉浸式體驗,整個空間賦予一種由光線、色彩帶來的變換與動感。
整個空間打破所有框架和定義,從建築立麵到室內空間,無處不在的圓潤曲線與網格,讓整個空間充盈著現代化的數字氛圍。除此之外,無論是玄關處的太空人,還是大吧台的 “孕育中的人類”,都是專門為CONTROL創作的。除了增加空間的辨識度之外,也是為消費者提供“打卡位”,消費者可以裝置為背景拍照發布於社交平台,吸引更多其他年輕的獵奇客群。
我們將竭盡全力的和那些過時的、盲信的、被罪惡的博物館所鼓舞著的舊信仰做鬥爭。我們要反抗陳腐過時的傳統繪畫、雕塑和古董,反抗一切在時光流逝中肮髒和腐朽的事物。我們要有勇於反抗一切的精神。
——《未來主義繪畫宣言》翁貝特·波丘尼
時間已於昨日停滯 Time has stopped since yesterday
無論何種設計方式,都需要從商業命題出發去呈現一種簡單的狀態。讓時間在此停止,讓消費者願意在空間內更長時間地停留,讓來過的消費者願意再次前往甚至引流。從而營造高粘性的商業空間。
為了滿足這一目的,首先需要滿足新時代背景生活方式的場所認同感和歸屬感,在設計之初,考慮功能、運營、場景的極致化,以CONTROL(掌握)未來為核心進行空間設計之餘,我們也進行了品牌方麵的設計。品牌設計上我們沿用了空間設計中的迷離、先鋒、科幻之感,不同紋理材質、高飽和色彩、輔以各類複古科技元素,呈現同空間知行合一的視覺感染力。
讓空間設計與品牌設計進行通力合作,讓消費者在滿足基層的應用、心理(體驗感)層麵之外,還從社會層麵給消費者帶來的社會身份認同感(財富、地位、成就)與社會身份歸屬感(階層、族群、社交)。從而驅動消費者對品牌從認同到喜歡乃至忠誠的核心驅動力。
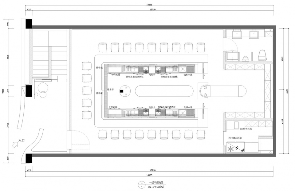
∇ 一層平麵圖
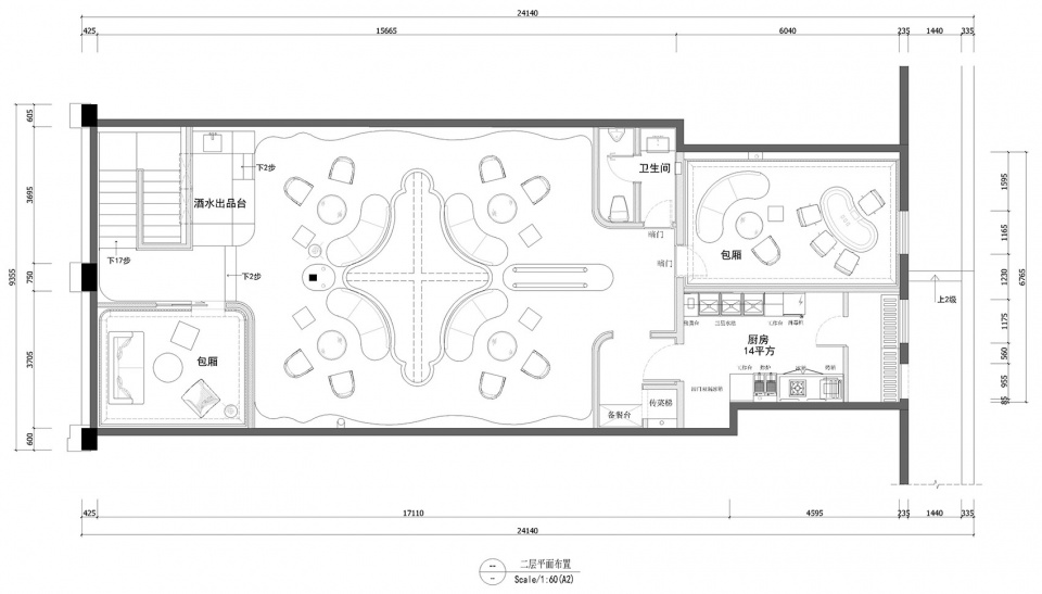
∇ 二層平麵圖
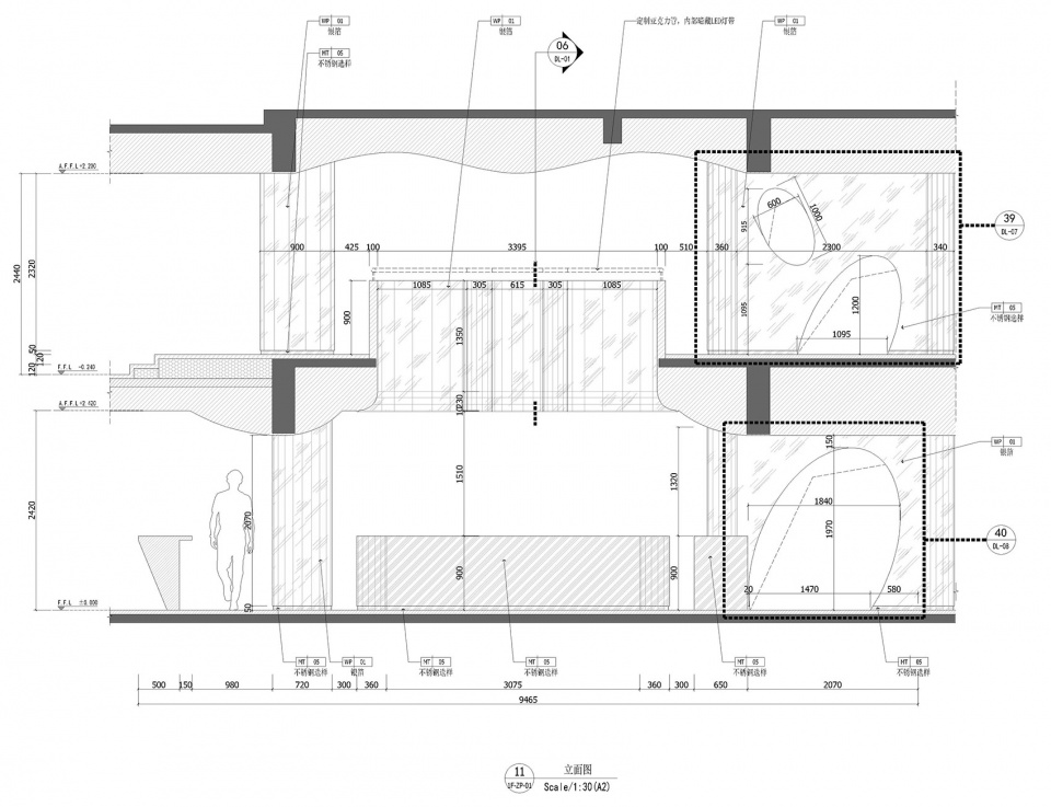
∇ 立麵圖
項目信息
項目名稱:CONTROL
主要功能:威士忌酒吧
項目地點:福建漳州
主創設計師:蔡泫娜
設計團隊:寸匠熊貓NANA團隊
設計時間:2021年3月
完工時間:2021年11月
項目麵積:300
項目攝影:劉星昊_言隅建築空間攝影 羽視覺


































