圖書館是每個學校的心髒,也是愛書者的靈魂聖地。這一類建築能夠承載悠久的曆史底蘊和人文故事,也能契合時代符號,折射出當下的審美意象與多重理念。
餘論設計在此案中,不僅改造了圖書館的傳統形態,也將其嚴肅的刻板印象一一消解。融入色彩的美學語彙與現代辦公場景,構建出非傳統的創新型公共空間。
1 “盒中盒”
浙江外國語學院圖書館是與老校區連接的新館,建造耗時五年,期間固定的屬性與審美的變化都影響著項目設計。而如何將一個非常傳統的空間打造成呼應時代的公共場域,對設計團隊來說是一大艱巨的挑戰。
餘論設計在進行多方調研之後,結合甲方的需求與自身的設計坐標,采用了“盒中盒”的設計手法,於空間中置落多個“盒子”,為師生打造會議室、調研室與討論區域。在圖書館本身的閱讀與自習的基礎屬性之上,增加空間的實用性功能。
∇ 東麵情景研修室 分析圖
基於建築的消防要求,整體空間呈中空的回字形布局,盒盒之間自動劃落出回廊通道,優化人流動線與空間布局。
設置沉浸式閱讀和專注學習的獨立空間,也依師生之需求劃分出公共閱讀區。
∇ 西麵情景研修室 分析圖
“盒子”幾何形態的設定,讓開放性的公共場所中融入具有美學氣質的閉合空間,描刻著空間結構並進行理念的闡釋。
2 色彩方塊
不是單調乏味的某一種,而是有張有弛的很多種——令人放鬆的靜謐藍,歡快跳脫的活力橙,愜意輕快的清新綠,色彩的碰撞為空間注入明朗的躍動氣息,不同純色運用於不同的“盒子”中,避免乏悶卻又不失簡約質感,為每個小方塊都構造出精彩紛呈的氛圍。
白色作為空間的底色,調和所有著落的色彩,鋪陳出和諧的視覺畫麵。獨特的分區標識結合空間屬性,在發揮指引功能之外,也裝飾著牆麵與書架,營造出賦有美感的個性構圖。
此外,在角落區域設立簡白的小型裝置,充分利用空間並為圖書館的實用功能性增值。
幾何與色彩的組合搭配相得益彰,從形態到氣韻的構建也實現了裏外相洽,色彩方塊靜置在場域中卻喚醒了生動的美學秩序。
3 多維創新
比起過往的延續與傳承,此次的設計更多的是貼合時代的所需。大學似乎是很多人的象牙塔,暫時性地擋避外界的紛擾。但與此同時,造成了某種程度上學生與社會的脫節。
而設計師將當代辦公氣氛注入空間的巧妙手法,則實現了學校與社會的一次接壤。
辦公場景的植入,一改圖書館靜謐無聲的舊態,讓盒子成為“有聲”的空間,穿梭在回廊之中,仿佛路過眾多微型的辦公室,得以窺見與書卷氣息截然不同的職場光景,為場域氛圍嵌入新穎的明動之感。
圖書館不再隻是圖書館,功能上的豐富與概念的延展,塑造出實用與美感兼具的多元空間,最大化建築的吸引力,讓學生們自發地進入公共文化空間自我內化或者參與交互,讓圖書館超越其本身的尺度,成為具有更深層次意義的存在。
建築所具備的不應該僅僅隻是曆史積澱的厚度,也應該考量現世群體的需求與時代的秩序。在圖書館的原有屬性之上,附加美學意義與情景涵義,創造並豐富功能的同時,也是一種設計理念的深化與延伸。
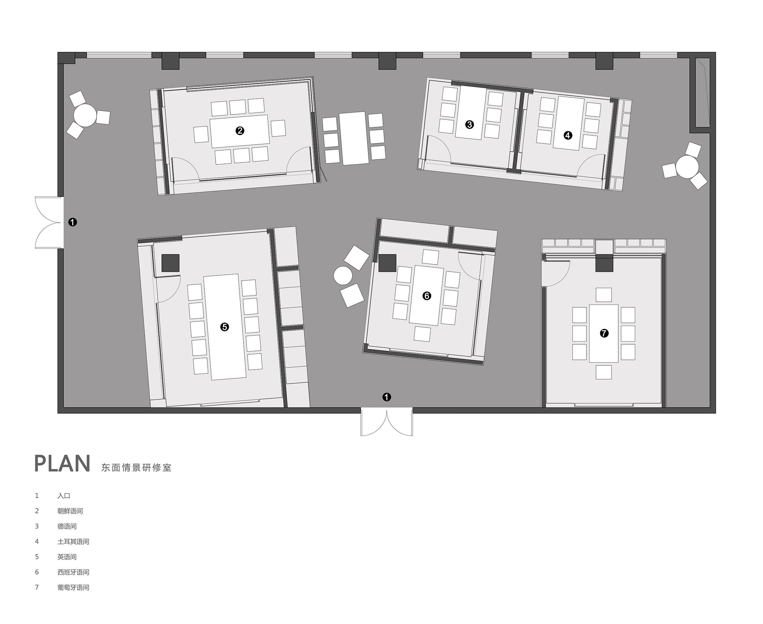
∇ 東麵情景研修室 平麵圖
∇ 西麵情景研修室 平麵圖
項目名稱:浙江外國語學院圖書館
項目業主:浙江外國語學院
項目地點:浙江省杭州市小和山高教園區留和路299號
項目麵積:情景研修東西區各265m²、小語種書庫710m²、公共空間閱讀自習區200m²
設計公司:餘論設計YUDESIGNS
設計範圍:室內硬裝及軟裝搭配、樓層標識
主創設計:餘大青
設計團隊:馬莉、李逸芝
項目攝影:yuuuunstudio/雲眠














































