麵包一直不僅僅是麵團。那麼為什麼不慶祝它的銷售和生產呢?該項目沒有遵循傳統的烘焙美學概念,而是專注於誠實地強調其基本成分:空間和烘焙食品。最初的空間位於雅典市中心的主要商業街道稍遠的地方,提供了一個異常升高和凹陷的露台空間。
因此,KORA 店麵和麵包店代表了烘焙食品生產和展示的一種舞台。這些商品的展示及其伴隨的生產過程被認為是一個透明的秀場。通過旋轉金屬架子牆可以感知烘焙過程和商品展示。開放、半開放和封閉的立麵元素不斷變化的場景不僅可以查看不同類型的產品,還可以進入生產空間本身。
內部和外部之間的門檻由交互式穿孔金屬牆連接。金屬牆由 50 個獨立的托盤組成,這些托盤圍繞中心軸獨立旋轉到不同的位置。當垂直時,它們提供最小的透明度,同時允許通過金屬穿孔看到剪影和光線。
當水平放置時,它們通過充當展示的功能表麵來提供最大的透明度,準備好容納各種各樣的烘焙食品。最後,45 度角可以看到背景的部分視圖,並為客戶提供理想的產品展示。通過不同商品的添加和銷售,動態牆的外觀總是在變化。它同時充當百葉窗、向外的邊界、烘焙景觀,以及用於展示烘焙產品和不同場景的機製。
除了創造功能性的景觀外,衛生和維護在材料和顏色的選擇方麵也發揮了重要作用。與可移動的廚房機械一起,下半部分淺色、耐用、無孔的表麵體現了一種大氣的輕盈感。因此,它們不僅象征而且實際上是需要日常清潔和低維護的區域。相比之下,天花板上和要求的 2 米衛生水平以上的所有元素都與機械和照明係統有關。
由於空間的高架性質,第二個立麵從街道上特別明顯。因此,此類設備通常不連貫的工業特征通過應用單色色調進行偽裝,該色調也與現有的上層建築相得益彰。天花板及其所有細節因此變得不那麼突出,同時通過機械和照明元素的完全暴露增加了適應性。
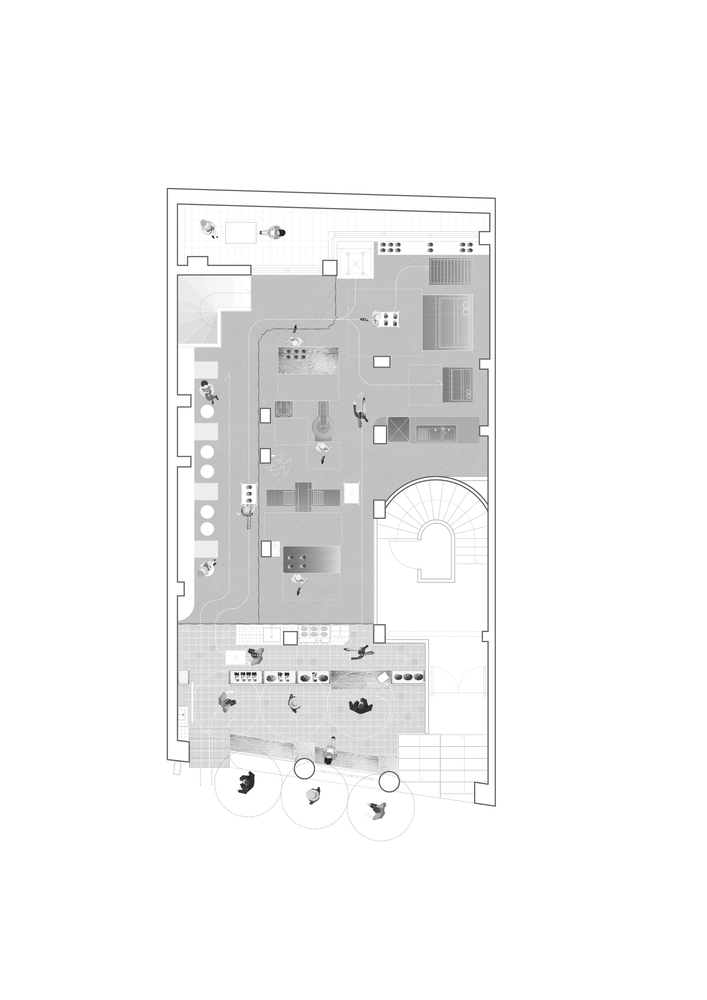
∇ 平麵圖
∇ 剖麵圖
∇ 軸測圖
∇ 創意概念圖






























