gaga北京三裏屯店的設計是對花園主題餐廳在垂直空間中延展的一次探索。
dongqi Design棟棲設計為gaga設計了位於三裏屯太古裏的北京旗艦店。在密集的城市中心一個八米高的空間中嵌入一個垂直空中花園。用承載植物的空間結構契合gaga將美食茶飲與自然環境有機結合的品牌理念。
gaga和dongqi Design棟棲設計舍棄增加樓板以獲得更多使用麵積的做法,而是由位於空間中心的中島吧台開始延伸出主樓梯並向上生長至空中形成景觀步道,連通位於空中的室外露台的同時向不同方向延展出數個不同高度的空中小平台。精心挑選的橄欖樹位於平台端頭,高低錯落分布於空間中,營造出獨特的室內垂直景觀和漫步係統。整個空間花園結構由dongqi Design與結構工程師緊密配合,創作了一個像風箏般獨立漂浮在空中的精巧鋼結構係統。
三麵玻璃幕牆環繞中央區域仿佛自然采光的屋頂,進一步加強親近自然的整體就餐氣氛。同時dongqi Design設計了可調節的燈光係統,融合在空中花園結構中,模糊了自然光與人造光的感知界線,營造白天與日落後不同的就餐氛圍。菜單自然延伸自吧台上方的結構係統,與三麵操作台合作服務於不同的就餐功能需求。
具備完全不同材料氣氛的竹木和不鏽鋼相間排列的構造營造了空間獨特的氣氛。保持強烈秩序的豎向語言為自由的樓梯形態創造節奏。經過仔細處理的竹木板側麵的細膩紋理傳達了親近溫和的質感,與截然不同的不鏽鋼的組合塑造了品牌的獨特氣質。dongqi Design精心控製從吧台到欄杆的不鏽鋼和竹木的組合比例與連接節點,使人在空間中漫步的同時產生夢幻的變化,且隨著垂直高度的提高不鏽鋼的比例逐漸增加,反射和光影變化隨之增強,使空間逐漸變得輕盈。
入口采用了大麵積開放式垂直折疊門,竹木與不鏽鋼的精妙組合將室內邏輯延伸至建築外立麵。同時兩進門將地麵材質劃分為天然石材的室內外聯通花房和拋光混凝土的室內主空間兩部分。在豐富的過渡室內與室外體驗,使就餐氛圍更加豐富的同時為北京嚴寒的冬季創造更為舒適的室內體驗。牆麵和空中原有的柱梁最大程度的保持了原始狀態,端頭的廚房使用了與外立麵相同構造的大麵積垂直提拉窗,使食材加工過程的展示更具戲劇性。
∇ 空間軸測圖
∇ 樓梯軸測圖
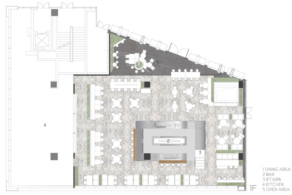
∇ 一層平麵圖
∇ 二層平麵圖
項目信息
建築改造,室內、燈光設計:dongqi Design 棟棲設計
設計總監:薑南
項目設計師:何瑋婧
團隊:簡仕翰,婁月,邵奕涵,暴佳英
建築麵積:430平方米
地點:中國北京市三裏屯太古裏
鋼結構設計:袁鑫事務所
攝影:Alan Grillo Spina































