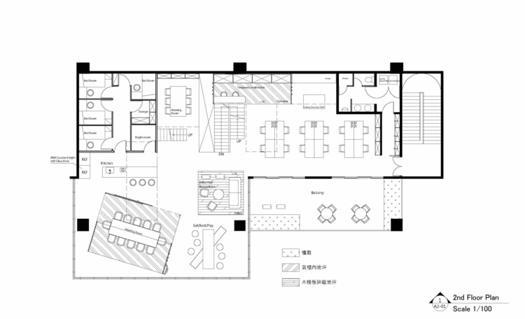
作為新台北市最大物流中心的主要辦公區和接待室,ALP的業主想為倉庫工作場所建立一個參考設計。JC Architecture利用物流中心的關鍵要素的特性去設計這個空間。貨架係統、托盤和集裝箱都有一個空間內多層次空間的屬性,並且能承載新產品和新的可能性。
JC Architecture利用物流公司給人的感覺,展示該場所的靈活性和潛在可能性。大窗戶和高高的天花板,堆疊類似於集裝箱的結構來增加地麵區域,從而在開放的環境下創造出隱私空間和不同的氛圍。打破了倉庫的常規設計,集裝箱底板變成了頂部,下麵就是隱私區。
從帶有繩子屏幕牆的大會議室到作為樓梯平台的層狀托盤,自始至終都是工業化和模塊化概念。空間特點仍然忠實於公司的核心價值,將物流中心改造成流動性辦公室能激發新的可能性和可操作性。
Photos © Zachary C. Hone
版權聲明:本站所有文章除投稿授權發布外,其他文字內容均為原創,享有著作權保護,未經許可不得以任何形式進行轉載(包括且不限於:媒體、網站、公眾號等)。所有項目照片/設計圖形版權歸原作者所有。本站部分內容源自網絡公開資源或用戶分享,如若侵犯了原作者的合法權益,可聯係我們進行處理。
















