項目位於北京前門西側的楊梅竹斜街。這條斜街連接大柵欄和琉璃廠,曾經彙集諸多書局、會館,頗有些曆史底蘊和文藝風情。近十年的文保改造,楊梅竹斜街修舊如新,文化空間、不斷更新的小商業和原住民彙雜在一起。
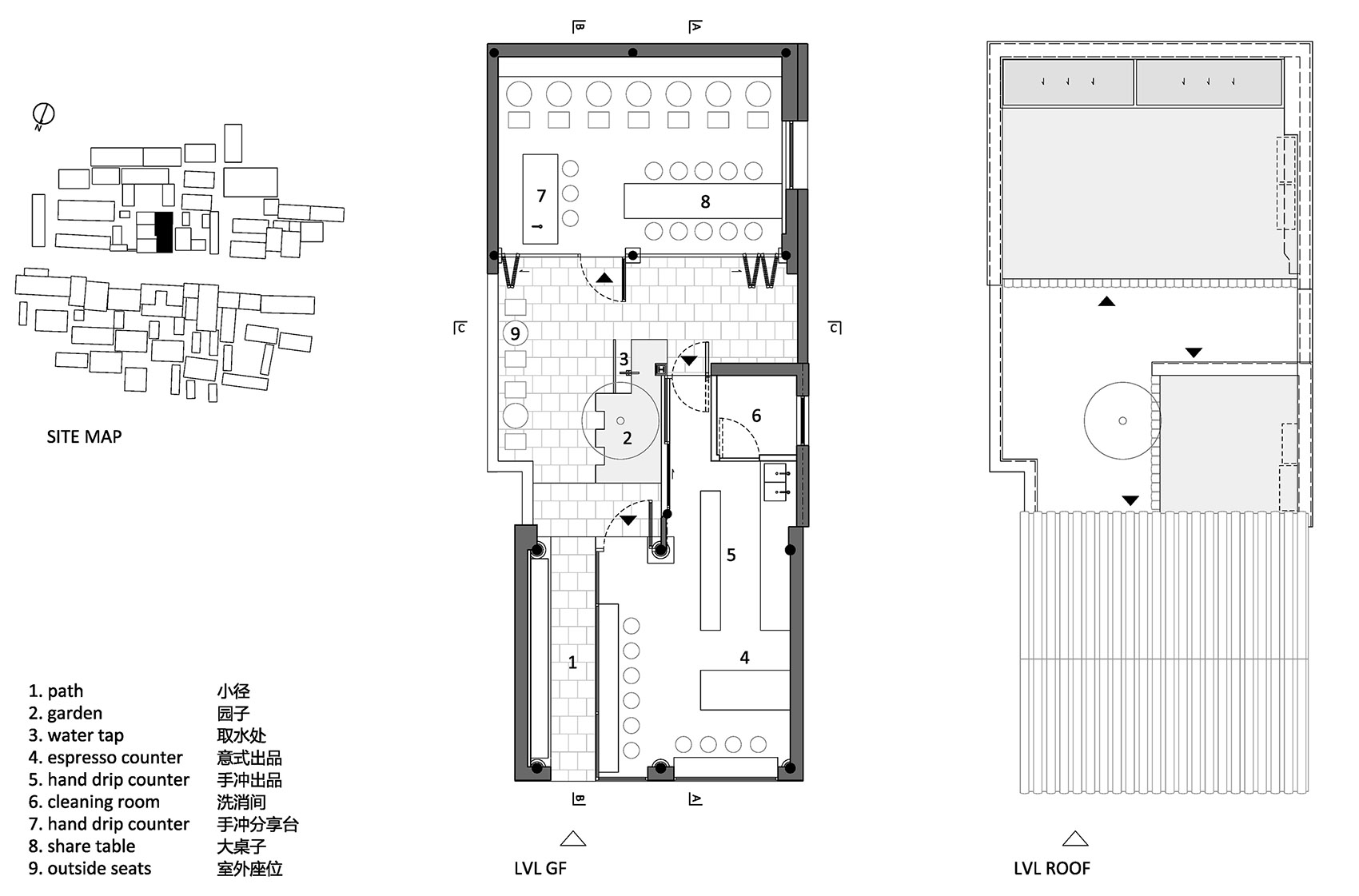
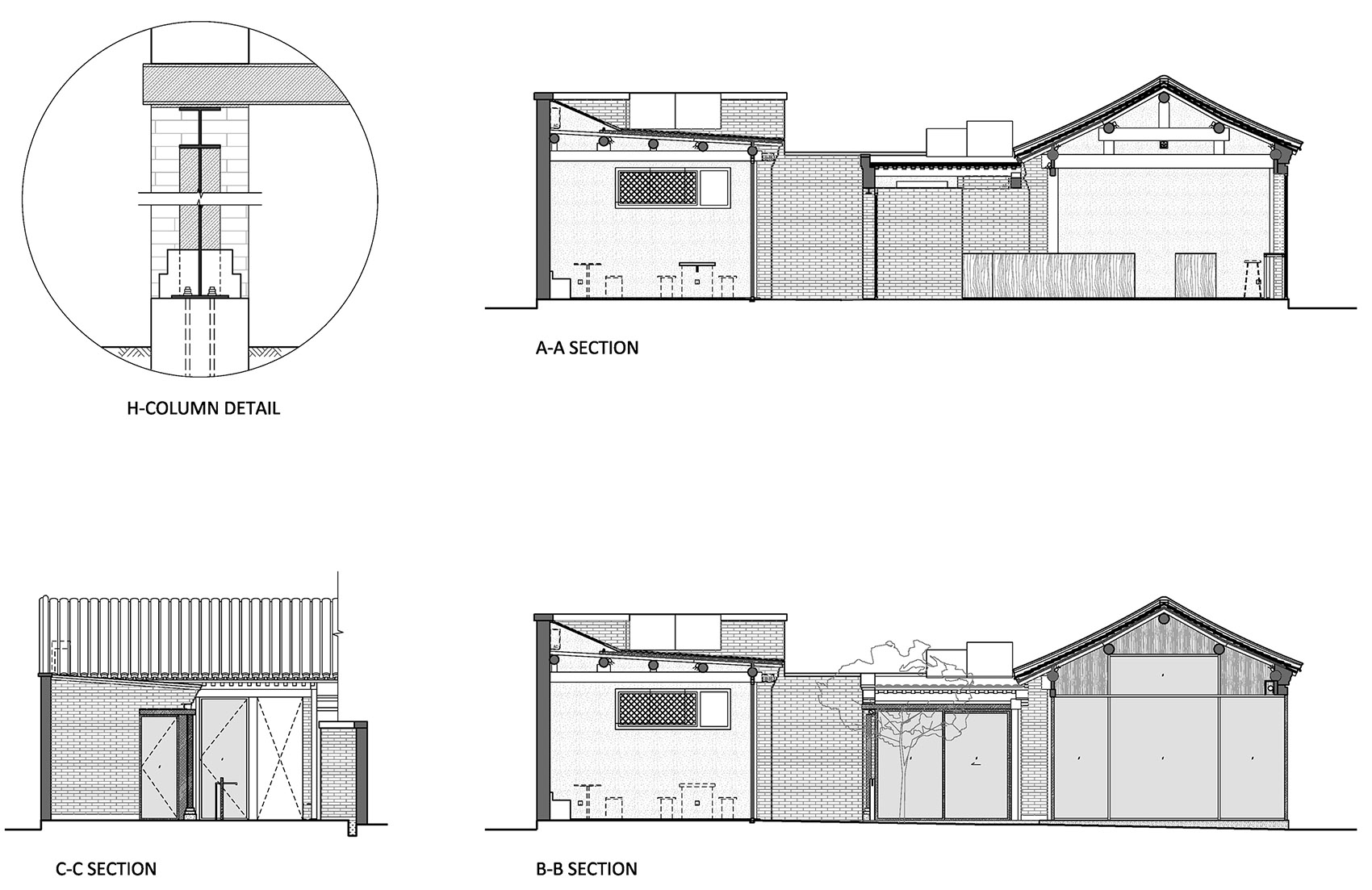
項目所在的小院隔壁和對麵都是原住民,占地麵積88平方米,坐南朝北,由三個獨立的單體組成。前屋的主體木結構為兩開間五架梁的古建原構,後屋和旁屋均為後期新建的單坡平房,三屋圍合著一塊24平米的室外空間。
∇ 軸測圖
前屋占據了全部的沿街麵,立麵上開門,上頭隻有淺淺一道冰盤簷,硬生生直麵主街道。我們想調整一下空間序列,於是“犧牲”了5平米的室內麵積,“以便訪客不拘禮節,猶如悄然潛入。”[1] 入口這段狹窄的小徑,從高到低、由明及暗,至園中後豁然開朗。
∇ 概念分析
客人經過一次身體的扭轉進入3.8m高的主屋,得到接待後,再次轉身通過室內的小徑,來到後屋坐下休息,沿途視線可以穿過通透的立麵觀賞園內的植物,落座後回望來時的路徑和咖啡館外繁忙的街道。
因為尺度的關係,原本的院子實際體感更像是寬一點的室外走道。設計通過一條回路連接室內外,現在院子是整個空間序列的重要一環,而麵向內院的界麵皆可任意打開。客人可在房簷下坐,在矮牆下坐,也可在走廊邊席地而坐。視線可聚集在園子中心,也可越過屋脊飄向遠處的古建。園中植物旁設有取水處,用於日常的澆灌,同時也方便客人在品嚐咖啡前洗淨雙手。
∇ 平麵圖
∇ 立麵圖
童寯《東南園墅》,湖南美術出版社,2018
[1] TONG Jun <Glimpsed of Gardens in Eastern China>, Hunan Fine Arts Publishing House, 2018
項目信息
項目名稱:VOYAGE COFFEE 楊梅竹斜街22號
項目類型:建築改造
設計方: atelier suasua 刷刷建築
項目設計:2020
完成年份:2021
設計團隊:蘇曉萌,曾曉明,陳婉蓉
項目地址:北京市西城區楊梅竹斜街22號
建築麵積:64㎡
攝影版權:朱雨蒙@coppak studio
客戶:VOYAGE COFFEE































