La Beato是西班牙語,意為:被祝福的人。而能夠賦予美好祝福的所在,都是神聖的。
古堡的中心隱藏著通往寶藏的入口,坍塌的石柱被時間凝固,拉扯出行徑的痕跡。
——致敬巴勃羅·畢加索對時空維度的理解與表達。
執手金果,開啟吱呀的鏽門,一道狹長的廊橋貫穿時間的心髒,將未來帶回遠古的記憶。
金字塔頂端一道延伸的聖光化作火焰,灼燒顯現出石刻密碼。點亮酒瓶內精萃的玉露與瓊漿,它們都將賦予靈氣,傳遞至每一個被祝福的人。
酒精微醺的熱浪漫延盤繞、上升凝聚成跳動的暗語。撥開一片棕櫚簾,躍入一個精神遺址,音樂在這裏傲然俯瞰,守護祝福。
主理人Luca用自己的方式捕捉一切氣息,將熟悉的果物解構、分離、萃取,組合成我們從未知曉的味覺影像。
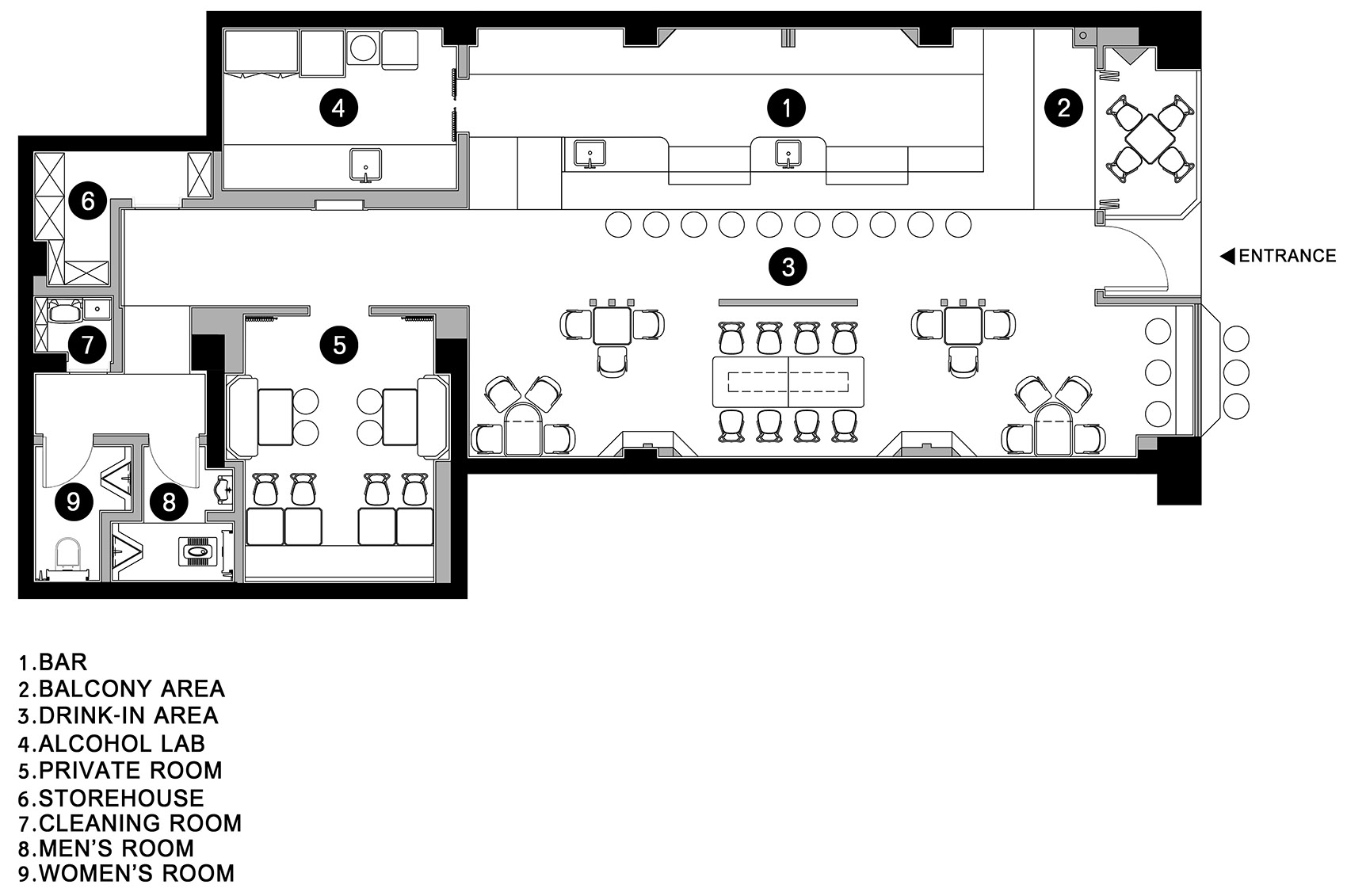
∇ 平麵圖
項目信息
項目名稱:La Beato
項目類型:酒吧餐飲空間
建築麵積:135㎡
全案設計方:光和一切 | Light For
項目設計師:黃戴
設計時間:2020.10-2020.11
竣工時間:2021.03
燈光品牌支持:南沃燈光、元入智能照明
攝影版權:光和一切
攝影師:ICY WORKS、xf photograph、Light For
材料:夯土卷材,青石磚,窯變馬賽克,黃崗岩,鏽漆
客戶:成都拉碧雅拓餐飲管理有限公司
項目地址:中國四川省成都市錦江區宏順街171號
版權聲明:本站所有文章除投稿授權發布外,其他文字內容均為原創,享有著作權保護,未經許可不得以任何形式進行轉載(包括且不限於:媒體、網站、公眾號等)。所有項目照片/設計圖形版權歸原作者所有。本站部分內容源自網絡公開資源或用戶分享,如若侵犯了原作者的合法權益,可聯係我們進行處理。

























