「 妙妙屋 」WONDER HOUSE
奇妙即是多 Wonder is more
∇ 拚貼藝術創作,素材源自網絡 Collage Art Creation, Material From the Internet
概念闡述 Design Concept
本案是為小朋友打造的家,充滿奇幻感的娛樂化設計,讓一個家各處充滿驚喜。畢加索曾說希望“像孩子一樣繪畫”,“臉圖形”長期以來作為現代藝術大師們的繪畫對象被反複使用,同時在當代娛樂中以機器人、吃豆人、米奇妙妙屋等人們耳熟能詳的原型為代表呈現。臉的象征性得以讓人們感到更童真、趣味和親切。
本案以戲謔的方式體現“刻奇”的概念。即在追求設計邏輯的同時又拒絕絕對理性,將看似“流俗”的娛樂符號,以一種“拚貼性”和“達達式”的創作模式融入當代住宅設計之中,籍由荒誕主義式的諷刺和批判來揭示頑固不化的“功能主義”套型產品住宅,空間的複雜與矛盾性得以顯現。
This case is a home designed for children. With an entertaining design full of fantasy, it brings surprises to every corner of the home. Once Picasso said he wanted to “paint like a child”, and the “face figure” has long been used repeatedly as the object of painting by modern masters, and it is also represented in contemporary entertainment by familiar archetypes such as robots, Pac-Man, and Mickey Mouse Clubhouse. The symbolic nature of the face gives people a more childlike, joyful and friendly feeling.
This case embodies the concept of “kitsch” in a jocular way. In other words, while pursuing design logic and rejecting absolute rationality, it incorporates seemingly “vulgar” entertainment symbols into contemporary residential design in a “Collage” and “Dadaistic” creative mode. Through absurdist irony and criticism, it sheds new light on the traditional dwelling house model with “functionalist”, showing the complexity and contradiction of space.
∇ 場地概況 © 戲構建築設計工作室 Site Overview © XIGO STUDIO
前期分析 Preliminary Analysis
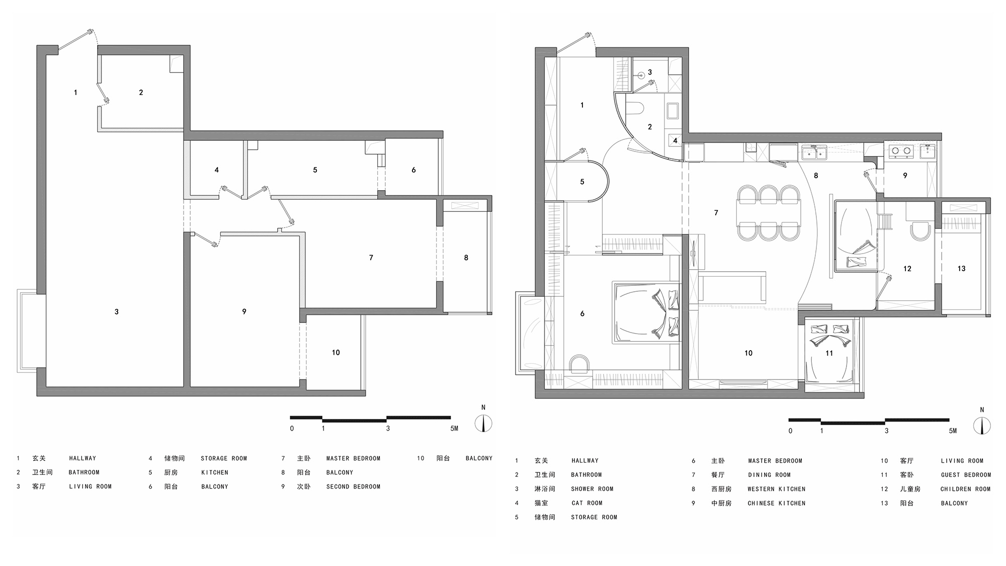
原始戶型為133平米的兩室一廳,東西朝向。客廳采光較差,44平米偌大的客廳空間確僅靠一個3平米的西側窗戶采光,顯得昏暗不堪。公共屬性的廚房被擠壓在北側臥室附近的角落,導致餐廳與廚房較遠相互關係較弱,廚房與兩間臥室的交通路徑相交叉。衛生間設置在了玄關處,臥室卻在最內處,從臥室到衛生間需要繞兩個彎,動線距離較長,為7.6米。這樣的原始布局也使得各空間始終處於動線關係較為混亂的狀態。
The original house is designed as two bedrooms and a living room, totaling 133 square meters, and it is in the east-west direction. However, the living room is with poor lighting, and such a 44-square-meter large living room space only has a 3-square-meter window on the west, making it very dim. Besides, the kitchen with public properties is squeezed into the corner near the north bedroom, increasing the distance between the dining room and the kitchen, weakening their interrelation, and making the traffic paths between the kitchen and the two bedrooms cross each other. In addition, the bathroom is set at the hallway, but the bedroom is at the innermost place, and it takes two turns from the bedroom to the bathroom, with a longer moving line distance of 7.6m. This original layout also makes the spaces always in a state of confusion regarding the relation between the moving lines.
∇ 平麵前後對比 © 戲構建築設計工作室 Before and After Plan Comparison © XIGO STUDIO
改造後將客廳位移作為整個住宅的中心公共空間,整合零散孤立的各功能區的空間規劃策略,如此整個空間將會獲得高效的合理動線和相對均質的自然采光。空間組織圍繞中部開放的公共空間與其他區域相互關聯展開。中心空間疊加了客廳、餐廳、廚房、娛樂,老人居住等多樣化的使用功能,抽象的“臉圖形”正對開放的公共區形成焦點,多樣可變的臉形態,以適應不同的生活場景。玄關經由弧形牆流暢的過渡到開放的西廚就餐區,繼續向東側延伸至可獨立使用的中廚,形式賦予連貫的功能布局得到整合。
After the renovation, it displaces the living room to the central public space of the whole house and integrates the spatial planning strategy of scattered and isolated functional areas, thereby the whole space will get efficient and rational moving lines and relatively homogeneous natural light. Besides, the spatial organization revolves around the central open public space interconnected with other areas, and the central space is superimposed with diverse functions such as living room, dining room, kitchen, entertainment space, and elderly living room, etc. The abstract “face figure” faces the open public area to form the focal point, with many variable face shapes to adapt to different living scenes. The hallway smoothly transitions through the curved wall to the open western kitchen dining area and continues to the east side to the independently usable Chinese kitchen, integrating the form to give a coherent functional layout.
∇ 概念分析 © 戲構建築設計工作室 Concept Analysis © XIGO STUDIO
∇ 敘事軸測圖 © 戲構建築設計工作室 Narrative Axonometric Drawing © XIGO STUDIO
流動玄關 Flowing Hallway
入戶第一視覺,三個弧形限定出內部空間與玄關過渡區的邊界。考慮男主人經常出差,行李收納的便利性,同時盡量不打擾其他家庭成員休息。衣帽收納區設置在了玄關附近,單獨規劃出的小儲物間建立玄關和主臥間的視覺隔斷,為主臥的私密使用提供保障,雙門設計可以直通臥室。玄關上方的“青空燈”為灰色吊頂打開了一扇窗口,模擬出的天空光照視錯覺,使原本幽暗的玄關變得通透明亮。
Seen from the first vision of the hallway, three arcs define the boundary between the interior space and the hallway transition area. This takes into account the convenience of luggage storage for the male master who is often on business, while not disturbing other family members’ rest as much as possible. The cloakroom is situated near the hallway, and a separate small storage room is planned to establish a visual partition between the hallway and the master bedroom, providing a guarantee for the private use of the master bedroom. The “Cyan sky light” above the hallway opens a window for the gray ceiling, simulating the optical illusion of sky light to brighten the dark hallway.
餐廚一體 Integrated Dining & Kitchen
弧形牆,動勢從玄關流暢地連貫至住宅的中心空間,迎麵是空間的中心視覺符號“大比例的抽象麵孔”,形成了生活與視覺的焦點。垂直的界麵因弧形灰色吊頂和對應的地麵鋪裝產生形態上的張力,利用東向三麵采光引導進入顯得更加開敞明亮,擴大通向餐廳兩側的走廊寬度。通過利用廚房陽台的封閉,中西廚得以分開。開放式的西廚與餐廳相互關聯,同時整合了眾多家用電器形成了一體化的家政服務區。
The curved wall creates a dynamic momentum smoothly flowing from the hallway to the central space of the residence, with the oncoming “large scale abstract face”, the central visual symbol of the space, forming the focal point of life and vision. The vertical interface generates morphological tension with the curved gray ceiling and the corresponding floor pavement, and it is more open and brighter by using the east-facing three-sided light to guide in and expand the width of the corridor to both sides of the dining room. By the closed kitchen balcony, it is available to separate the Chinese and Western kitchens. The open western kitchen is interconnected with the dining room, while integrating many household appliances to form an integrated housekeeping area.
趣味符號 Fun Symbols
抽象擬化的“麵孔”被故事性地編排入家庭成員的日常生活中,以戲謔的方式體現“刻奇”概念。“臉圖形”同時傳遞趣味與童真,通過眼皮裝置產生場景互動,為這個家增加了一種生活上的趣味焦點,形成了具有唯一性的符號象征。
The abstract anthropomorphic “faces” are arranged into the daily life of family members in a story-like way, which embody the concept of “kitsch” in a jocular way. The “face figure” conveys fun and childlike innocence, generating scenes of interaction through the eyelid equipment, adding an interesting focus to the home, and forming a mark symbol with uniqueness.
多功能起居空間 Multifunctional Living Space
中心空間作為靈活開敞的起居室,疊加了就餐、會客、娛樂、辦公、儲物收納、臨時居住等多項日常使用功能。空間邊界之內,設計師沒有繼續附加限定條件,餐桌、沙發、茶幾等功能部件的擺放皆可在開敞的空間內靈活調整。沙發麵向東側兒童房,將得到一個自由的娛樂活動空間。將起居室內的靠窗角落作為供臨時留宿的客臥,隱藏在兒童房走廊處的移動拉門可將客臥區從起居室當中獨立劃分出來。
The central space serves as a flexible and open living room, which was added with several daily functions such as dining, meeting, entertainment, office, storage and temporary living. Within the boundaries of the space, the designer does not continue to add restrictions, and it is available to flexibly adjust the placement of the dining table, sofa, coffee table and other functional components within the open space. The sofa faces the children room on the east side, and it will be a free space for entertainment. The window corner in the living room is used as a guest bedroom for temporary stay, and the sliding door hidden in the corridor of the children room can separate the guest bedroom area from the living room.
兒童房的眼皮裝置 Eyelid Installation in Children‘s Room
兒童房的設計考慮到了家庭結構情況和未來的改變,下鋪為1.5米雙人床給出阿姨留宿與陪伴孩子入睡成長的空間,嘴形態開啟狀態可以為客廳增加更多采光,通過拉簾關閉後達到完整的私密狀態。上鋪為1.3米的單人床,為未來二孩的到來提供了更多居住可能。眼皮裝置對應上鋪位置,小朋友可以通過操控裝置使“眼皮”開合,與房間外部發生趣味的情景互動。除了互動的娛樂性,眼皮裝置也可以暗示人在其中的作息變化,眼皮打開,暗示行為處於活動狀態,眼皮閉合,暗示從活動進入就寢狀態。
The design of the children’s room takes into account the family structure and future changes. Therefore, the lower bunk is a 1.5m double bed to give space for auntie to stay and accompany the child to sleep and grow. The opening state of the mouth form will bring more lighting to the living room, while the complete privacy is achieved by pulling the curtain closed. The upper bunk is a 1.3m single bed designated to provide more living possibilities for the arrival of the second child in the future. The eyelid equipment corresponds to the position of the upper bunk, and children can open and close the “eyelid” by controlling the operation device, creating an interesting interaction with the outside of the room. In addition to the entertainment of interaction, the eyelid equipment can also suggest dwellers’ state inside. If the eyelids open, suggesting that people are in an active state; if the eyelids closed, suggesting that people are in a resting state.
主臥室 Master Bedroom
主臥室改到西側的原客廳區,3平米飄窗式的采光剛好可以照亮整個臥室空間。進入主臥的推拉門隱藏在衣櫃的兩側,與櫃體合二為一。從主臥室到衛生間的動線也更加直接,動線距離從原戶型的7.6米縮短到3米。
The master bedroom was changed to the west side of the original living room area, with a 3-square-meter bay window whose light is just enough to illuminate the entire bedroom space. The sliding doors in the master bedroom are hidden on both sides of the closet, merging with the closet body. The moving line from the master bedroom to the bathroom is also more direct, with the distance shortened from 7.6m of original house to 3m.
衛生間中的“衛生間” “Cat Toilet“ in the Bathroom
衛生間被安置在了玄關旁的弧形牆內,為了縮短家庭成員從各空間到達的距離,門的方向有所改變更為直接。貓咪作為家庭成員之一,衛生的便利自然不能忽視。考慮到方便人的清潔與氣味的隔離,在弧形牆上開設了貓洞,給予寵物獨立的交通動線。貓室設置在了衛生間洗手台下方的浴室櫃內,預留出了貓砂盆與食物投放機的功能,且加入了換氣係統。將人與寵物的基本衛生需求得到體麵的解決。
The bathroom was built on the curved wall next to the hallway, and the direction of the door was changed to be more direct to shorten the distance between family members arriving from each space. Cat is one of the family members, certainly, it is unable to ignore the convenience of its hygiene. Considering the convenience of human cleaning and odor isolation, a cat cave was opened in the curved wall to design the independent transportation line for the pet. The cat room is set up in the bathroom cabinet under the bathroom sink, with the function of a cat litter box and food dispenser reserved, and an air exchange system added, making the basic hygiene needs of both people and pets decently addressed.
∇ 平麵圖 © 戲構建築設計工作室 Plan After Renovation © XIGO STUDIO
∇ 立麵圖 © 戲構建築設計工作室 Model © XIGO STUDIO
項目信息
項目名稱:妙妙屋
項目類型:住宅公寓
項目地址:北京市朝陽區鬆榆南路
建築麵積:133㎡
設計公司:戲構建築設計工作室 XIGO STUDIO
方案主創:劉陽、李婭楠
方案深化:王丹
設計時間:2020年12月-2021年4月
竣工時間:2022年6月
撰文排版:劉陽、於水驕
學術顧問:朱力
攝影版權:立明
視頻版權:WM STUDIO 阿正
施工工長:朱新貴
家具定製:梵爾奇整屋木作
主要材料:微水泥、乳膠漆、木地板
Project Name: Wonder House
Project Type: Apartment
Project Address: Songyu South Road, Chaoyang District, Beijing
Building Area: 133 square meters
Design Company: XIGO STUDIO
Chief Designers: Liu Yang, Li Yanan
Scheme Deepening Design: Wang Dan
Design Duration: December 2020 – April 2021
Completion Date: June 2022
Academic Counsellor: Zhu Li
Photography Copyright: Li Ming
Video Copyright: WM STUDIO – Ah Zheng
Construction Foreman: Zhu Xingui
Furniture Customizing: LE VERCHY
Main Materials: microcement, latex paint, wood floor




































