Villa J位於哥德堡的鄉村環境中,別墅建築謹慎地布置在 Vättlefjäll 的自然保護區。近 6 米的地形差異通過強調並確保遠處湖泊壯麗景色的持久性,為住宅創造了一種戲劇性的方法。
一條木製格子走廊將客人帶到入口層,作為停車場和景觀之間的過渡,再次構成景觀。抵達後,前立麵的內部大窗戶模糊了內外之間的界限。
受羅馬建築涼廊幾何理性的啟發,該涼廊兼具實用性和功能性,Villa J麵向湖的立麵重現了涼廊。三角形的柱子提供了凸出的圖形形狀和獨特的形式,同時還封裝了從平屋頂收集和分散雨水的排水溝。涼廊的形式為外部甲板提供了庇護,提供了與立麵的深度和比例。
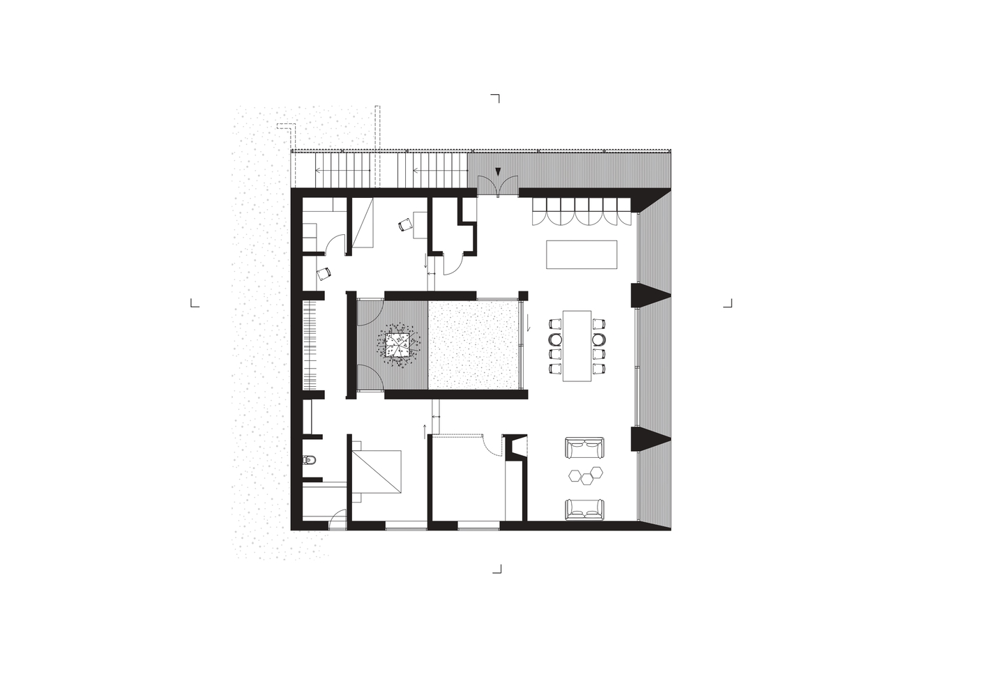
在亞洲、歐洲和美國旅行為中庭平麵圖提供了靈感。這座房子采用簡單的方形形式,圍繞一個內部庭院進行結構和組織,進一步強調了這座建築與自然的聯係。中庭被比作對現有場地的紀念。
公共和私人空間在物理上和有意地分開幾步。此外,公共空間、入口、廚房、餐廳和起居室都與壯觀的湖景相鄰。臥室、浴室和儲藏室都坐落在建築物的後麵,因此可以看到森林深處的景觀。複雜的場地方向為中庭帶來了充分的意義,中間的一個開口不僅美觀,而且通過在體量中間增加夜光來實現功能。
∇ 手繪草圖
∇ 平麵圖
版權聲明:本站所有文章除投稿授權發布外,其他文字內容均為原創,享有著作權保護,未經許可不得以任何形式進行轉載(包括且不限於:媒體、網站、公眾號等)。所有項目照片/設計圖形版權歸原作者所有。本站部分內容源自網絡公開資源或用戶分享,如若侵犯了原作者的合法權益,可聯係我們進行處理。





































