碳中和真實性 –
Âpé Yakitori Bar 試圖為 2000 年代初期的標準化租賃外殼提供真實性,這是當今主導我們城市的普遍且通常具有挑戰性的類型。Yakitori,直譯為烤鳥,仍然是最傳統和最有效的烹飪方法之一。從心髒到大腿、肝髒和頸部,雞肉、動物或蔬菜(在其現代解釋中)的每個單獨部分都被利用。這是對基礎組成部分的解構行為,沒有浪費。
Âpé 在古代阿伊努語中是火的意思,是一種以底座為基礎的設計,構成元素為碳中性或負性,設置在發光的鈉橙色背景中,這是對日本傳統阿伊努人家庭的核心——壁爐的致敬,以及紐卡斯爾港口沿岸鈉燈的光芒。與該客戶合作過之前的項目,例如 SUSURU,我們有機會控製項目中的所有資金。為此,我們對該項目的規範成為一種資助機製,以支持早期的創新材料製造商創造負碳材料。該項目的財富被用於開發或供應作為生物修複、碳封存和/或循環經濟的一部分。
這些非常基本的元素材料,從菌絲體到纖維素纖維,驕傲地坐落在一個暴露原始建築的外殼中。電線、管道、油漆和服務仍然暴露在外,不僅可以展示技術空間和相鄰租戶的內部運作,還可以加強這座曾經非常工業化的城市的姿態。
就像火是成分和膳食之間的催化元素一樣,設計師誇大了原始建築外殼與發光的主要形式的比例,它包含並綜合了空間內的所有元素。設計師的目標是 Âpé 的設計提供一個有凝聚力的、真實的空間,強調材料碳中和的重要性。
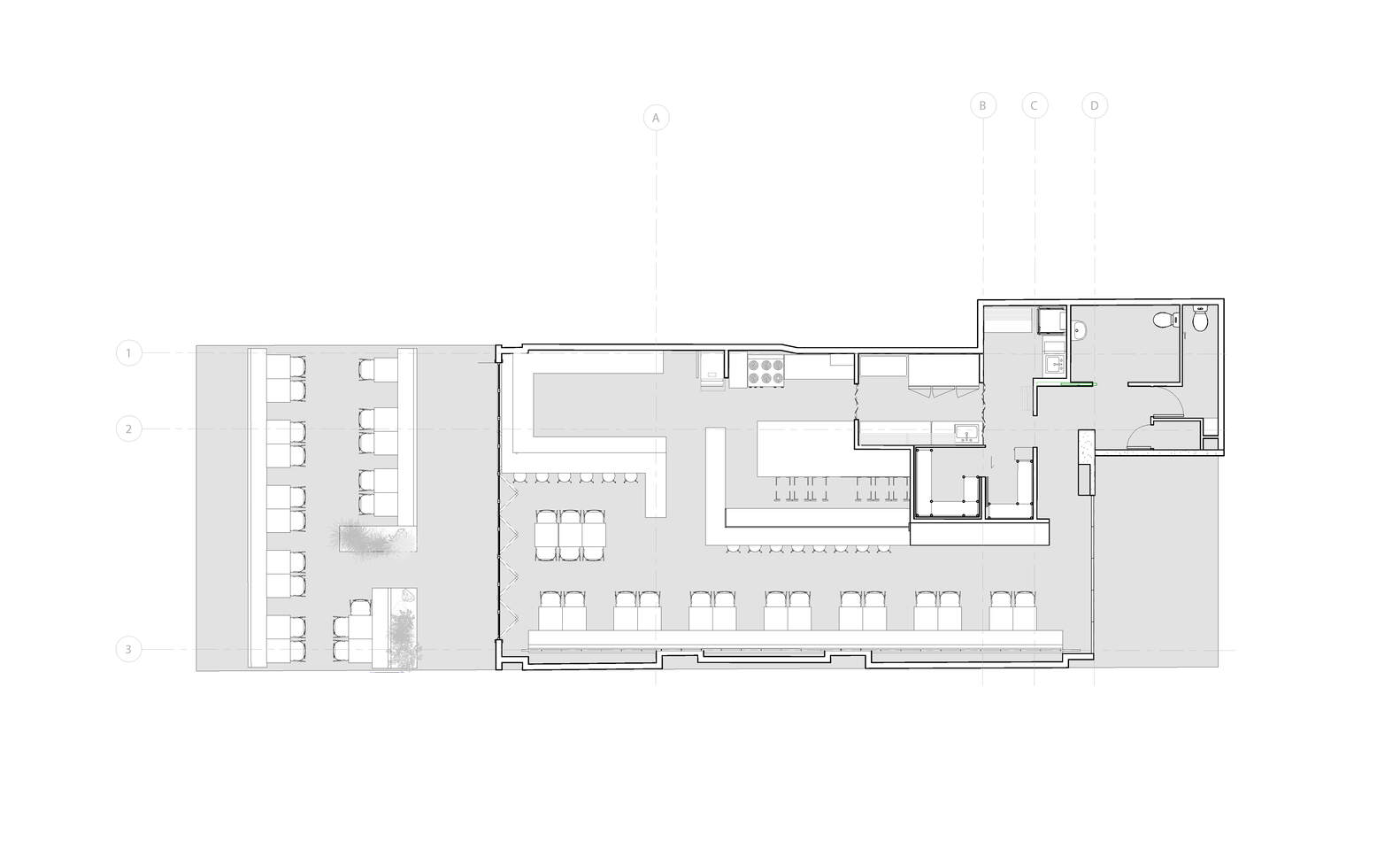
∇ 平麵圖
版權聲明:本站所有文章除投稿授權發布外,其他文字內容均為原創,享有著作權保護,未經許可不得以任何形式進行轉載(包括且不限於:媒體、網站、公眾號等)。所有項目照片/設計圖形版權歸原作者所有。本站部分內容源自網絡公開資源或用戶分享,如若侵犯了原作者的合法權益,可聯係我們進行處理。
























