Joost Arijs 在比利時根特的 Vlaanderenstraat 的 viennoiserie 旁開設了“The Bakery” 。對於(室內)建築,屢獲殊榮的巧克力製造商聘請了國際知名建築師 Glenn Sestig來進行這間店鋪的設計。
兩位比利時人在功能主義、極簡主義的設計中找到了設計方向,並在產品和可見的麵包師工作室中發揮了主導作用。水磨石地板和天然石材的細節與拉絲不鏽鋼櫃台和胡桃木麵包架結合在一起。
它一方麵在建築和工藝之間,另一方麵在質樸和溫暖的材料之間創造了迷人的對比。
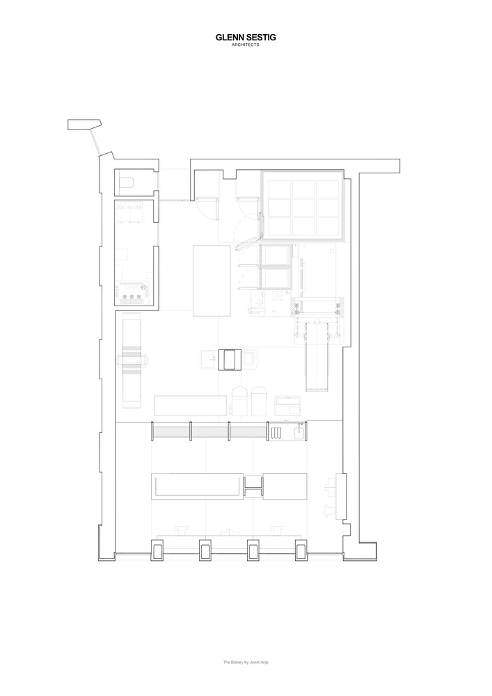
∇ 平麵圖
版權聲明:本站所有文章除投稿授權發布外,其他文字內容均為原創,享有著作權保護,未經許可不得以任何形式進行轉載(包括且不限於:媒體、網站、公眾號等)。所有項目照片/設計圖形版權歸原作者所有。本站部分內容源自網絡公開資源或用戶分享,如若侵犯了原作者的合法權益,可聯係我們進行處理。


















