我一直想創造一個“不典型的”的空間。在商業類項目中,根據委托的業態,經常被要求設計“典型的”空間。這種重視風格的設計,具有快速讓人聯想到那家店的業態的符號作用,但是由於符號,我們感受到的想象力也受到了很大的限製。因此,這次盡量排除符號的要素,依靠質感和空間來創造一個抽象的空間。
業主的要求是整體暗色調的空間,除此之外,我們嚐試利用原建築非常高的層高來進行設計。從電梯下來後,會出現一個巨大的弧形頂吊下來。入口空間被壓縮,之後的空間就會更加伴隨著開放感出現。在盡頭的牆壁上拚貼非常原始感的石頭,形成了與抽象造型的對比。為了使立體性感覺更強,表麵塗上了大顆粒的噴漆,用吧台上方粗獷的原木照明模糊地照亮。單間部分也隻通過立體操作設計,吧台單間是堆積成直方體的形狀,桌子單間是像萬神殿一樣的穹頂天花上傾瀉著光線的設計。衛生間表皮為微水泥,做成了極簡主義。
現代社會因為大家過於輕易地追求風格,不知不覺就陷入了“應該這樣”的共同幻想中,陷入了束縛。大教堂裏的中餐館,寺廟裏的高級法式餐廳,山洞裏的壽司店,什麼都可以。設計是更自由。
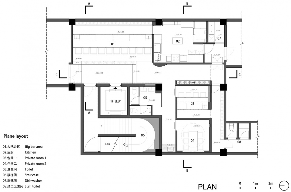
∇ 首層平麵圖
項目信息
地址:中國北京市
麵積:190㎡
室內設計:堤由匡建築設計工作室(堤由匡、明達、肖陽、洪秀秀)
策劃:北京鳴意品牌設計有限公司
機電設計:北京東洲際技術谘詢有限公司(石川星明、竹林克宣、山崎隆司)
施工:北京森洋遠航建築裝飾有限公司
照片:銳景撮影
竣工:2023年3月
版權聲明:本站所有文章除投稿授權發布外,其他文字內容均為原創,享有著作權保護,未經許可不得以任何形式進行轉載(包括且不限於:媒體、網站、公眾號等)。所有項目照片/設計圖形版權歸原作者所有。本站部分內容源自網絡公開資源或用戶分享,如若侵犯了原作者的合法權益,可聯係我們進行處理。





















