從堂食小麵到外帶糖水,胖妹麵莊一直以川味吃食享譽北京。作為餐飲業的持續創新者,胖妹品牌再次委托 Office AIO 為其最新的分店設計新穎的餐廳體驗。新分店坐落於胡同之中,位於一座寫字樓的底層。餐廳與周邊幾棟辦公樓共享著一個露天小廣場。雖然附近的上班族為該片區提供著穩定的客源,但隨著周邊入駐的文化機構增加,該片區也日漸吸引了不少來餐館博物館和看劇的人流。
複合型運營模式的挑戰
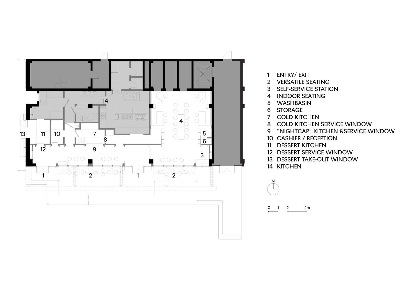
考慮到客群就餐習慣的差異,胖妹希望借新門店的機會,拓展成複合服務模式運營,在不同的時段變換服務模式及菜品。為此,Office AIO 嚴謹地規劃了全時段經營的空間方案。設計將室內的場地進行了策略性的切割,以順應運營的靈活性和複雜性,也為周邊環境注入活力。設計師沿著通透狹長的南立麵,開辟出一條走廊,利用西側出入小廣場要道的優勢,將場地的西麵設置為快速點餐出餐的區域。牆體開出不同尺寸的服務窗,以便推動出餐的效率。室內東麵的正方形體塊則被設置為主時段用餐的區域,區域內布置了適合多人聚餐的獨立餐桌,也使高峰時段堂食的座位數增加了一倍。
餐廳切換的關鍵在於一個卷閘門。餐廳在非高峰時段,可拉下卷閘門,僅用於即點即用的餐品。在高峰時段,可打開卷閘門,擴大餐廳的麵積,並提供更全麵的桌邊服務。靈活場景轉換方案使客戶得以嚐試新的運營模式:延長營業時間,並提供季節性“冷淡杯”,讓看完戲劇演出後的食客來品嚐夜宵。新的文化消費客群激發餐廳增加菜品及調整服務模式,促使設計師將其打造成社交聚會的熱點。
將”胖”趣味注入小廣場
Office AIO 圍繞趣味和社交為該胖妹門店奠定獨特的空間特性,促進餐廳內人們之間交流之餘,也拓寬餐廳與周邊社區聯係。設計團隊對建築進行了局部改造,使外立麵既實用又亮眼。設計在原本幕牆的沿線設計了長桌,跨出建築幕牆,在內外側均設置了座位,把社交場景延伸到廣場上。沿桌子中心線安裝了上翻折疊窗,將原本獨立開的室內空間延伸至室外,模糊了室內外邊
折疊窗的上方,由幕牆上突出不鏽鋼屋簷,以俏皮的方式在庭院內製造令人瞠目的震撼感。粗管狀的柱形和反光的表麵讓人聯想到藝術大師昆斯(Jeff Koon)的金屬扭曲氣球。屋簷上安裝著可伸縮的薄膜,讓頂篷為室外的客人遮蔭。室外空間由新建造的水磨石台階墊高,台階的角落由圓角包邊,使其以親近可人的姿態延伸至庭院。平行狹長的台階和頂篷進一步襯托出南立麵的寬闊,並將用餐者享受美食和歡聚的時光框入成畫。
類似的趣味性在室內的其它空間也得以呈現。Office AIO 對材料的運用靈感來自胡同裏常見的家具,這些家具權宜不同的因素,但其使用性也彰顯著自信的氣質。設計團隊借用橡皮筋、軟木和鋁合金進行設計,為門店定製了餐椅和吊燈,賦予餐廳簡樸、精煉和溫暖的氣息。室內的牆體上,裸色粗胖的圓柱形軟包墊順著牆壁延伸,呼應著胖妹麵莊頗負盛名的小麵,並製造了豐富的背景。室內同樣沿用了胖妹標誌性的漸變鏡牆麵,除了營造霧都的氣氛、也開闊了空間。Office AIO 將波普藝術、社區和川菜的精神融合在一起,打造了一個極簡美學的空間,同時又滿足了靈活的運營,為社區營造了凝聚力,並將人們聯係在一起。
∇ 平麵圖
項目信息
設計團隊: Office AIO
麵積: 170 m²
項目年份: 2023
攝影師:Wen Studio
主持設計師: 關穗棋
設計團隊: 楊霄、趙雪、解估漁、孫運萱
燈光設計: 喬燕莎 & Office AIO
施工方: 北京雅銘宜居裝飾工程有限公司
平麵設計: Meat Studio
業主方: 胖妹麵莊
城市: 北京

























