超級有米建築事務所為冥想品牌FLOW設計了一個山間冥想所。該空間位於距離北京150公裏的湯泉美學度假地,阿那亞-霧靈山項目內。
位於霧靈山的Flow心流所,坐落於兩座山峰之間的山穀中。這裏的小徑蜿蜒,幽靜神秘。雖然這裏沒有浩瀚的大海,但卻是一片山林茂密、清泉淙淙的寂靜之地。在東方文化中,山水不僅是感受力的來源,也是內心世界的映射。因此,建築空間成為自然與人文交融的載體,讓訪客更好地了解自我、關照自我,從而獲得情感共鳴與精神愉悅。
整個空間運用自然色係的夯土、灰泥、洞石、原木和障子紙組成,以貼近本源色調的材質,讓建築棲息於自然之間。這些材料放大了練習者的感官體驗,吸引人們更加敏銳地注意到腳下木板的溫潤,光影在牆壁表麵上的韻律。使用夯土作為牆麵材料為設計帶來了厚重感和尊嚴感,就像置身於一係列不同類型和尺度的洞穴。建築的光與影、空間的開放與封閉、線性排列的空間元素讓練習者恢複身體和精神的力量。
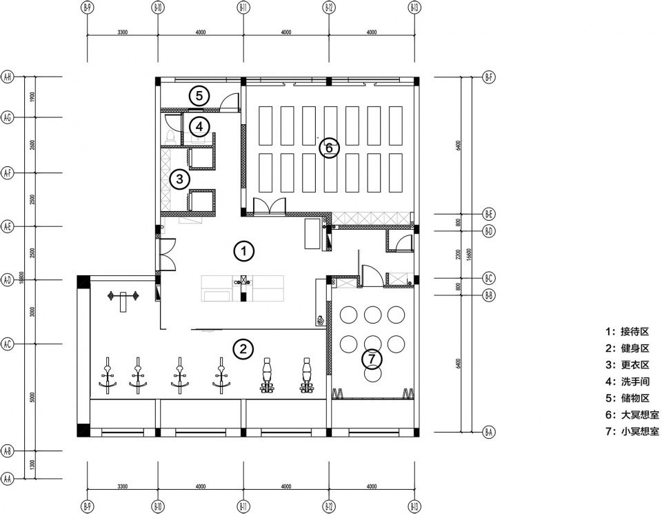
該項目是霧靈山阿那亞項目住宅及酒店的配套項目。在冥想的基礎上融合了健身的功能。通過對原有的空間區域規劃與整合,將整體空間劃分為四大區域:接待及展示空間、更衣室、冥想空間和健身房。展示區域主要承載接待和零售空間的功能。圍繞中庭的方柱延伸成為陳列商品的構件。高低錯落的展台圍繞通頂的中心構件成為接待台及陳列台。這樣化解了位於空間中央的柱子遮擋,也為陳列和休息提供了靈活的使用功能。
超級有米與FLOW品牌懷揣同樣的願景,希望擺脫傳統零售的陳列方式,轉而尋找一種更似畫廊的展示形式。在進門的牆壁上,通過“挖”的技法,將展示部件從牆體中“雕鑿”而出,營造出專屬的三維展示空間,讓人聯想到在畫廊裏欣賞作品的感受。石凳的一端放置在天然石頭之上,為客人提供休憩的同時帶來形式純粹的感官體驗。
展示區東側障子紙屏風之後是小冥想室空間,為私教課及VIP冥想課程設置。它的頂部采用了梯形幾何形狀,從下往上,空間逐漸變小,形成一種聚攏和包裹的感覺,讓練習者獲得安穩的力量。窗戶的開放高度降低,使練習者的視線降低至落座後的視覺高度,更加貼近大地,放鬆心情。用障子紙製成的可折疊屏風作為窗邊的隔斷,為練習者遮擋了室外步道的視覺幹擾,同時保留了窗外陽光和風吹過植物的律動剪影,隨著陽光和季節的變化來感受時間的步調。頂部的結構構造中,不僅能夠隱藏人工照明和暖通設備,還能保證室內柔和、純粹、協調且靜謐的空間氛圍。
走進位於展示區北側的大冥想室,感覺仿佛從外部世界進入了沉靜的冥思空間。該空間保持了隱蔽和孤立,簡化了采光和人工照明的房間安靜而質樸,為來訪者帶來純粹的沉思空間。頂部采用了雙三角形結構,通過對三角形坡吊頂的形態塑造,建構出詩意的練習空間,同時化解了中央橫梁的視覺障礙。連續褶皺屋頂為簡單的平麵空間賦予了節奏感,也呼應著遠處山脊的形態。屋頂的起伏同時也塑造了室內的空間變化,在不同“作用力”下,演繹出不斷起伏的狀態。在燈光加持下更增強了這種張力所製造出的趣味性。
展示區南側設有健身空間,采用玻璃隔斷將空間分割,既保留了與中庭的視覺開闊性,又為中庭帶來了足夠的室外光線。夯土牆麵和原木色吊頂材質延伸至健身房內,放大了視覺感受。健身空間擁有獨立出入口,與外部景觀相連,與大自然充分接觸,為身心提供力量。
在 FLOW心流所 – 霧靈山項目中,建築空間成為了感官層麵的延展性體驗容器。在這裏,人們能夠回歸自然,回歸一種相對原始的生存狀態。身體感官逐漸被放大,獲得更為強烈且極致的豐富體驗感,從而獲得精神享受的療愈身心效果。
∇ 平麵圖
項目信息
項目名稱:FLOW 心流所
委托⽅:FLOW 冥想
項目地點:阿那亞-霧靈山, 承德市
建築麵積:235平方米
設計機構:超級有米建築事務所
建成時間:2023.09
設計範圍:室內設計
設計總監:閆琮漩,林凱銘,
項目團隊:於小川,張宗文,於浩,吳文芳,張帥強
攝影:立明
材料:夯土漆、木化石、防火板和障子紙


























