粗糲空間中的精密日常

 

在場,是事情正在發生的狀態。在消費之外,商業空間重新被期待變成真實情節的發生現場,不斷被看見、被使用、被分享。

 

∇ 外立麵 Facade ©In

咖啡店設計,開放式咖啡店,街邊咖啡店設計,咖啡店打卡,咖啡店線下首店,咖啡店裝修,咖啡店設計案例,咖啡店設計方案,三立方咖啡上海愚園路店,上海,具場

 

在場的日常|慢生活與快商業

ON-SITE Daily Life | Where slow living meets fast commerce

 

 愚園路承載著兩種並存的城市性格:梧桐樹蔭下的緩行、不同年代的建築,以及不斷更新的生活狀態;同時通勤、商業與社交活動交織疊加,使街區始終保持著克製而有張力的繁忙。

Yuyuan Road embodies two parallel urban characters: the slow pace beneath plane trees, buildings from different eras, and ways of living that continue to evolve. At the same time, commuting, commerce, and social activities overlap, keeping the street in a dynamic state of activity.

設計通過對空間、工藝與體驗的重新組織,回應這裏的時間感與生活氣質,在品牌表達與社區生活之間建立一種自然的連接。

 

∇ 老社區中的新日常New routines in the old community ©ouyang

咖啡店設計,開放式咖啡店,街邊咖啡店設計,咖啡店打卡,咖啡店線下首店,咖啡店裝修,咖啡店設計案例,咖啡店設計方案,三立方咖啡上海愚園路店,上海,具場

 

∇ 沿街窗口 Street-facing windows ©In

咖啡店設計,開放式咖啡店,街邊咖啡店設計,咖啡店打卡,咖啡店線下首店,咖啡店裝修,咖啡店設計案例,咖啡店設計方案,三立方咖啡上海愚園路店,上海,具場

 

∇ 樹影中的烘豆工坊 Coffee Bean Roasting in the shade of trees ©幾木

咖啡店設計,開放式咖啡店,街邊咖啡店設計,咖啡店打卡,咖啡店線下首店,咖啡店裝修,咖啡店設計案例,咖啡店設計方案,三立方咖啡上海愚園路店,上海,具場

 

在場的體驗|不隻是消費

ON-SITE Experience| More than consumption

 

 作為三立方首家線下體驗店,更強調體驗、交流與品牌認同的建立。在業態上融合麵包製作、咖啡豆烘焙、咖啡製作和會員交流場景,對街道既有生活結構進行補充。

 

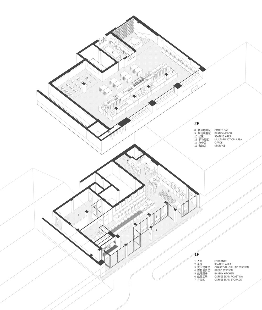
∇ 空間布局  Space planning ©具場

咖啡店設計,開放式咖啡店,街邊咖啡店設計,咖啡店打卡,咖啡店線下首店,咖啡店裝修,咖啡店設計案例,咖啡店設計方案,三立方咖啡上海愚園路店,上海,具場

 

∇ 麵包售賣區 Bread sales area ©In

咖啡店設計,開放式咖啡店,街邊咖啡店設計,咖啡店打卡,咖啡店線下首店,咖啡店裝修,咖啡店設計案例,咖啡店設計方案,三立方咖啡上海愚園路店,上海,具場

隱藏內容
本內容需權限查看
  • 普通用戶: 10L幣
  • 會員: 免費
  • 永久會員: 免費

 

相關文章推薦
  • Pure & Wild Studio 樸野設計 | 深圳MR. WALDEN COFFEE-隱於喧囂的木屋
  • 即作建築 | 海口福山咖啡
  • I IN | 美國加利福尼亞Valley Fair-藍瓶咖啡BLUE BOTTLE COFFEE
  • 了建築|深圳&北京Kurasu咖啡雙城記
  • 紫宇宙設計 | 長沙世茂環球金融中心 seesaw 咖啡
  • FF DESIGN/費崎峰 | 700㎡,上海極簡別墅-與光騎行
  • STILL YOUNG尚洋藝術 | 自在如歸,假日舒境:Hush Puppies中國首家主題旗艦店
  • 布魯盟室內設計 | 731㎡,上海信安裏-弄堂新生,藝術共鳴
  • 一日向空間設計 | 西安來碑1087
  • LSD interior design | 上海桐安裏別墅
  • 即時設計研究所 | 上海 Bar Vena
  • say architects | 247㎡,YOUWEI上海新樂路概念店



  • 聲明:本站所有文章,如無特殊說明或標注,均為本站原創發布。任何個人或組織,在未征得本站同意時,禁止複製、盜用、采集、發布本站內容到任何網站、書籍等各類媒體平台。如若本站內容侵犯了原著者的合法權益,可聯係我們進行處理。