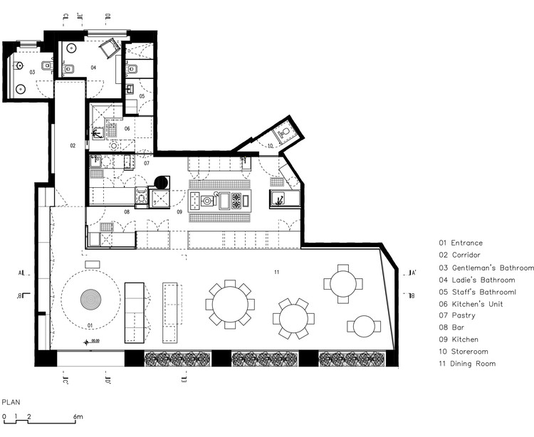
餐廳的底層改造間位於一棟大樓裏,地基由各種石弧構成,其中四個構成了餐廳的外觀,成了餐廳內外的主要特征。餐廳寬敞而溫馨,一邊是白色弧形外牆,裝著單一的玻璃窗,另一邊是麵朝房間的黑色廚房。
該項目有一個高度複雜的廚房,由廚師私人定製,以便優化適合於這種結構性能的工作流程。因此,考慮到從房間能看到廚房,有必要調和這些要求與創造溫馨氛圍的關係,但不是在視覺上逃避餐廳的人。這樣,選擇黑色就很好。
Photos © Fernando Guerra|FG+SG
版權聲明:本站所有文章除投稿授權發布外,其他文字內容均為原創,享有著作權保護,未經許可不得以任何形式進行轉載(包括且不限於:媒體、網站、公眾號等)。所有項目照片/設計圖形版權歸原作者所有。本站部分內容源自網絡公開資源或用戶分享,如若侵犯了原作者的合法權益,可聯係我們進行處理。




















