言•意位於雲南香格裏拉獨克宗古城北門街措廊46號,距離四方街僅三分鍾步行,擁有得天獨厚的地理優勢。言•意曆時近兩年時間建造而成,建築群依坡而建。建造期間,設計師帶著助理配合駐場,進行了長達約一年之久的跟蹤,現場親自配合指導施工,才讓設計無折扣的完美落地!
民宿的名字來自於唐代詩人劉長卿的作品《尋南溪常山道人隱居》“過雨看鬆色,隨山到水源。溪花與禪意,相對亦忘言”。尋隱者不遇,卻得到別的情趣,領悟到“禪意”之妙處。言意由此而來,旨在能讓人獲得精神愜意和心理的滿足。從幽溪深澗的陶冶中得到超悟,從搖曳的野花靜靜的觀照中,領略到恬靜的清趣,溶化於心靈深處是一種體察寧靜,蕩滌心胸的內省喜悅,自在恬然的心境與清幽靜謐的物象交融為一。希望所有人都能獲得乘興而來,興盡而返的愜意自得的感受。
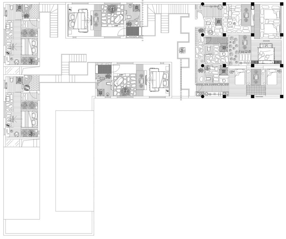
言•意的建築由六棟小樓以及一棟老藏房組成,前廳大堂及餐廳所在的兩棟建築,視覺上猶如漂浮在空中,整個建築群高低起伏、相互交錯,樓與樓之間以走廊橋梁相連接。民宿共計15間客房,還設有大堂,餐廳和茶室;每間客房都設有入戶的獨特設計,展現出東方新禪意之美,同時也給客人帶來了私密的體驗。其中一棟建築完整保留了原始藏式結構,徐老師提取了當地的藏式元素融進建築及室內設計中,窗的設計也采用借景的手法,客人在房間透過窗戶便能看到窗外美好的景致,藍天白雲,日出日落,大自然饋贈的美景猶如掛畫一般,透過這些窗戶展現在眼前。新代建築與老臧房的改造自然和諧,宛如天成;整個民宿體量雖不太,但精美別致。空間功能分區布局巧妙,恰到好處。建築與周邊環境、民宿客棧完美融合,卻又出類拔萃,被當地委員會稱讚為香格裏拉最美的民宿之一。
design @ 億端國際設計
photos @ 朱恩龍
版權聲明:本站所有文章除投稿授權發布外,其他文字內容均為原創,享有著作權保護,未經許可不得以任何形式進行轉載(包括且不限於:媒體、網站、公眾號等)。所有項目照片/設計圖形版權歸原作者所有。本站部分內容源自網絡公開資源或用戶分享,如若侵犯了原作者的合法權益,可聯係我們進行處理。




























