LOFT中國感謝來自 重塑建築 的商業空間項目案例分享:
獻上果子是深圳首個新中式融合(Oriental Fusion)的糕點品牌,品牌名取自古典中“獻給聖上的糕點”之義,秉承為傳統的東方糕點注入新的生命力從而推進中點複興的使命,堅持用優質的食材以及中西式結合的技法,重新設計傳統的東方糕點,使之成為適合當代都市人享用的健康可口怡人的新中式融合美食。
King’s Guozi is the first new Oriental Fusion pastry brand in Shenzhen. The brand name derives from the classical “sweet cakes dedicated to the holy”, and it inherits the mission of injecting new vitality into traditional oriental pastries to promote rejuvenation. King’s Guozi continues to redesign Chinese traditional pastries with high-quality ingredients by integrating Chinese and Western styles, making a healthy and delicious new fusion cuisine for contemporary urbanites.
∇ 室內品牌牆
∇ 室內水吧與產品展示台
作為獻上果子的與旗下新品牌獻上茶鋪的首個體驗店,我們設想了品嚐果子和茶的場景——在庭院裏,在燈籠下。采用了東方庭院和燈籠的元素,希望客人在店裏可以體驗休閑的庭院平台座位和降低的燈籠吊頂的親切,有些儀式感地放輕鬆,喝好茶和品果子。
As the first experience-based store of King’s Guozi and its new brand King’s Tea Shop, we envisioned a scene of tasting oriental pastry and tea – in the courtyard, under the lantern. Using the elements of the oriental courtyard and lanterns, we hope the guests will enjoy the informal seating platform in an intimate courtyard which created by the lowered lantern ceiling in the store. Relax, drink tea and taste Guozi in a casual enviromrnt with a bit sense of ritual.
∇ 室內榻榻米座位
∇ 室內青鬆景觀位
∇ 榻榻米與櫥窗小花園
∇ 櫥窗小花園與室外自然景觀呼應
∇ 白天室外北立麵窗戶開敞
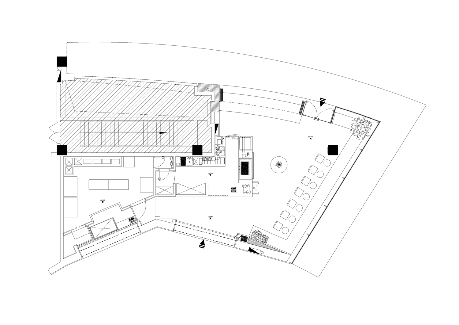
果子體驗店位於歡樂海岸O’PALAZA的東北角,我們在南麵商場入口處的設計了禮盒售賣區,除了展示果子以外,還設有手工台供客人觀看製作果子的過程。進入店內有明亮的果子產品展示,還有果子外賣台可以領取在網上下單打包好的果子禮盒。店鋪北麵沿街的入口東邊有一個風水小池塘,池塘中間有一棵名為“放青鬆”的迎客鬆,西北麵是可完全敞開的雙麵卡座平台鏈接室內與外部樹影婆娑的空間。店內正中間的售賣吧台是一個完整的方盒子,吧台前設計了用於展示果子文化,季節花藝和節日禮盒圓桌,舉辦應季活動時也可作為餐桌使用。東邊的延窗卡座和臨街玻璃間有一個空氣鳳梨小花園,同時也是節日禮品的展示櫥窗。
King’s Guozi store is located at the northeast corner of O’PALAZA. We designed a gift sales area at the south entrance of the shopping mall. In addition to displaying the Guozi, there is also a window for guests to watch the process of hand-making it. By the entrance of the store,there is a take-out table where the guests will pick up their online order. There is a small fengshui pond at the east corner of the store entrance. A welcoming pine called “Chill” stands in the middle of the pond. Guests are welcome to sit under the pine tree. The northwest is a fully open double-sided deck that connects the indoor and outdoor environment. The bar in the middle of the store is a complete square box. The mobile round table front of the bar is designed to display brand culture materials, seasonal floral and holiday gift boxes. Occasionally it can also be used as a table to support events. There is an small garden between the east window and platform seats. The garden is also a showcase for holiday gifts and more.
∇ 夜晚室內榻榻米座位
∇ 夜晚室內榻榻米座位與展示台
∇ 夜晚室商場內部門麵
∇ 夜晚室內水吧2
∇ 夜晚室外東麵立麵
∇ 夜晚室外東北麵立麵
∇ 深圳獻上果子與獻上茶鋪平麵
完整項目信息
項目名稱:深圳獻上果子與獻上茶鋪歡樂海岸店
項目地址:中國廣東省深圳市南山區歡樂海岸購物中心E101店鋪
設計公司:REFORM重塑建築
公司網站:www.re-form.cn
聯係郵箱:info@re-form.cn
項目設計 & 完成年份:2019年
主創及設計團隊:鍾愛紅,舒賽
建築麵積:110平方米
客戶:深圳獻上果子與獻上茶鋪
主要材料:富美架木紋防火板,立邦內牆膩子,家麗安環保水泥漆
攝影版權:舒賽























