LOFT中國感謝來自 一夕 & 洪濤設計 的酒店餐飲空間項目案例分享:
寧波東錢湖康得思酒店擁有4個各具特色、富有設計感的餐廳及酒吧:東悅市集全日餐廳、明閣中餐廳、湖居特色餐廳及29°酒吧
東悅市集全日餐廳
全日餐廳最大的特點是室外有很漂亮的園林綠化,再配合建築幕牆上的格柵,感覺就像叢林一般。
以室外的景作為主導,實際上室內它一定是比較的簡潔才能襯托這種比較漂亮的外景。天花的處理將室外的格柵天花延伸進來,模糊掉室內外的這種空間界限。並且將這種元素延續到了半開敞的就餐區及旋轉樓梯,作為空間隔斷的形式。
∇ CORDIS酒店-全日餐廳
明閣中餐廳
中餐廳的設計演繹清雅風韻,以不同灰度相融調節視覺調性,強調舒適感。室外的原林景觀,在中式吊燈的映襯下,盛開得格外翠綠;私密的包廂沿襲了整體空間的清雅與平和,空間色彩、形式,無一不在提示著過去、現在,東方人文的演變與糅合。
∇ CORDIS酒店-中餐包房
湖居特色餐廳
特色餐廳是LOFT風格的主題餐廳,以“農場到餐桌”為主題,采摘當地最新鮮的原生土產和湖泊食材為特色,滿足客人在日益汙染的今天也能夠享用到綠色無汙染、有機的菜品。
餐廳同時也是一個多功能廳,以應對活動空間日益增長的需求。地麵采用水磨石,牆麵為混泥土牆漆延伸至天花,配合坡屋頂的金屬框架,定製的燈泡以矩陣形式懸掛排列,呈現出簡單而又有序列感的照明效果,同時也靈活適用與不同場合對空間的使用需求。
∇ CORDIS酒店-特色餐廳
二十九度酒吧
酒吧還原了原建築坡頂木梁的純粹美感,裸露的銅管與充滿質感的磚牆、混泥土、老木地板形成鮮明的對比。複古風格的紅、綠色皮沙發和鋼管椅,回收的老物件及帶有重工業時期的牆麵繪畫,這一係列的設計元素共同營造一個時尚摩登又略帶懷舊的酒吧空間。
∇ CORDIS酒店-酒吧
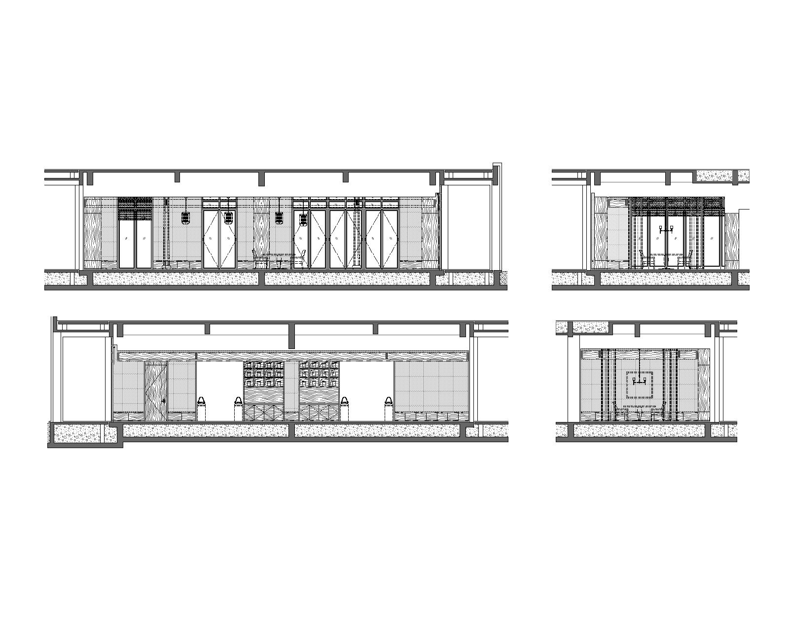
∇ CORDIS酒店-全日餐廳立麵圖
∇ CORDIS酒店-全日餐廳平麵圖
∇ CORDIS酒店-中餐包房A立麵圖
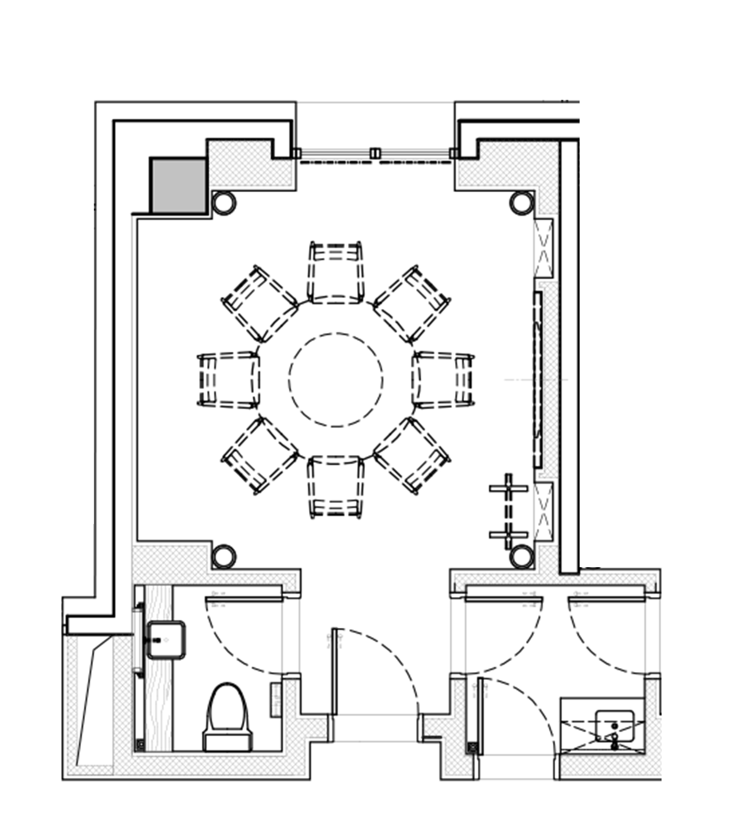
∇ CORDIS酒店-中餐包房A平麵圖
∇ CORDIS酒店-中餐包房B平麵圖
∇ CORDIS酒店-中餐包房C平麵圖
∇ CORDIS酒店-中餐廳立麵圖
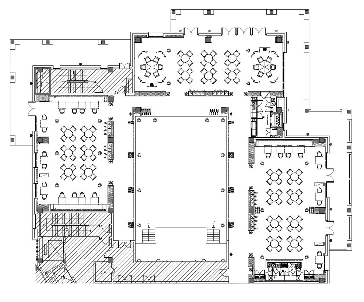
∇ CORDIS酒店-中餐廳平麵圖
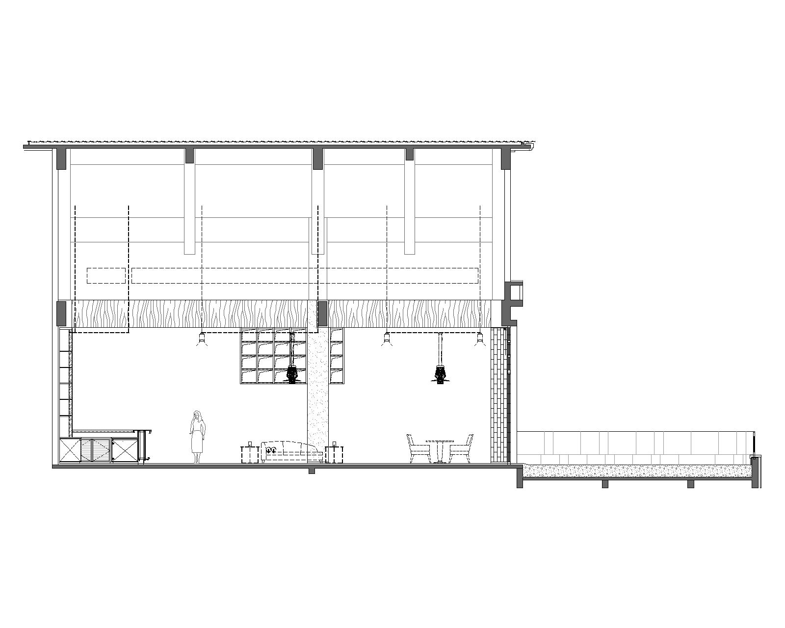
∇ CORDIS酒店-特色餐廳立麵圖
∇ CORDIS酒店-特色餐廳平麵圖
∇ CORDIS酒店-酒吧立麵圖1
∇ CORDIS酒店-酒吧立麵圖2
∇ CORDIS酒店-酒吧平麵圖
完整項目信息
項目名稱: 寧波東錢湖康得思度假酒店 Dongqian Lake Cordis Hotels and Resorts,Ningbo
設計公司:一夕設計 & 洪濤設計
主創設計師:邱希雯 易沙 王勇 朱玲
聯係郵箱:szyixidesign@126.com
完成年份:2019年5月
建築麵積:3000平方米
項目位置:浙江寧波東錢湖旅遊度假區沙山路28號
攝影師:井旭峰
酒店管理公司:朗廷酒店集團
主要材料:火山岩、鞍山岩、胡桃木、橡木、實木複合地板、不鏽鋼等










































