笨魚烤焰所是給日式烤肉賦予本土精氣神的體驗場。笨魚創始人的海釣喜好引出了品牌的發展故事,從食材源頭到餐桌堅持新鮮、品質,注重體驗的溫馨、自在。
B-Fish entitles local spirits to the Japanese barbecue. With the founder of B-Fish adoring fishing in the sea as the brand story, we insist on keeping high quality and freshness of the ingredients from source selection to serving on tables. We cherish the warm and relaxed experience provided to customers.©Meatmountain
「世間美味皆可烤」
“Delicacies worldwide are for barbecue”
從水產日料到日式烤肉,創始人希望沿用好食材新鮮到餐桌的理念,探索更多可能。本案是笨魚品牌的一種精神形態的展示和延伸,試圖讓受眾在此體驗到 笨魚的趣與味。
From aquatic Japanese food to Japanese barbecue, the founder hopes to explore more possibilities based on the concept of fresh ingredients served on tables. This design manifests and extends the spirits of B-Fish, and aims at introducing the delight and taste of the brand to customers.©Jaguar
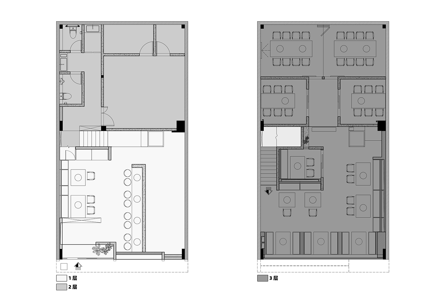
從空間布局上,根據笨魚的運營需求塑造了「客至」、「笨作」、「品拙」、「淨享」、「移趣」、「聚敘」六大區塊,以顧客為中心的動線串聯起來。
In terms of spatial design, six units were designed according to the operational needs of B-Fish: Ke Zhi(Reception), Ben Zuo(Kitchen), Pin Zhuo(Dining room), Jing Xiang(Boxes), Yi QU(Stairs), Ju Xu(Group tables). Customers being the thread, these units are linked dynamically.
∇ 「客至」: 內凹入口造景引人入勝,以創始人的陳列收藏帶出話題。
Ke Zhi(Reception): The recessed entrance attracts customers, theme is introduced through the collections of the founder.©Meatmountain
∇ 1層堂食區域 Dining area on the 1st floor ©Meatmountain
∇ 1層細部 Details on the 1st floor ©Meatmountain
∇ 「移趣」作為交通空間以挑高立麵陳列。
Yi QU(Stairs) connects the 1st and 2nd floor, exhibiting collections on high walls. ©Meatmountain
∇ 交通空間 Corridor ©Meatmountain
∇ 堂食體驗的「品拙」和「聚敘」按私密度遞進排列。
Pin Zhuo(Dining room) and Ju Xu(Group tables), where customers enjoy their dishes, are arranged based on the level of privacy. ©Meatmountain
∇ 基於笨魚的視覺符號衍生出來的方圓圖形元素,作為整案的設計線索貫穿其中。
The square and circle graphic element derived from B-Fish visual symbol runs through the entire design as a key element. ©Meatmountain
∇ 細部 Details ©Meatmountain
∇ 平麵圖, grafic plan ©Jaguar
「靈感常燃」
“Inspirations persist”
於繁華之外返璞歸真,
Amongst the hustle and bustle here lies simplicity,
尋得一處舒享之地,
With ease and comfort,
享受迷人的煙火和生活的溫度。
Enjoy the mundane things that spice up life.
項目信息
項目名稱:笨魚烤焰所
設計方:具格設計
聯係郵箱:jckingkong@qq.com
設計周期:06.2021-07.2021
施工周期:08.2021-11.2021
主創及設計團隊:賀瑞祥,魯易,吳君誠,陳沛,禤潔威,陳浩
項目地址:廣東省深圳市
項目麵積:225㎡
攝影師:肉山
客戶:笨魚水產
品牌:朗生板
Name of project: B-Fish
Designed by: Ju Ge(Unique Style) Design
E-mail: jckingkong@qq.com
Designing phase: 06.2021-07.2021
Construction phase: 08.2021-11.2021
Designers: HE Ruixiang, LU Yi, WU Juncheng, CHEN Pei, XUAN Jiewei, CHEN Hao
Location of the project: Shenzhen, Guangdong
Size: 225㎡
Photographer: Meatmountain
Client: B-Fish
Brand:LANSEN











































