FOREWORD
推理空間秩序
平衡體塊關係
味覺遞進
空間推演
研究Ⅹ研究
「川味研究所」平衡膳食,烹清鮮麻辣,偏愛突破與創新。通過飲食文化的傳承與研創,為哪怕最挑剔的食客帶來豐富多元的味覺新體驗。
既然做味覺的研創,廚師是認真的,空間設置也須做出新意,最好還能透出做研究的意味。麵對高挑空曠的建築空間,設計師自然是不乏激情,切分並使其立體豐富不是問題,所呈現的具體形態、且形態與包括機電在內的各項使用功能完美匹配才是重點。
最後,項目組決定在這兒蓋房子。
梳理空間的功能組件、羅列服務設備設施、設計就餐體驗,對本項目甲方沒有絲毫難度(二十年餐企)。根據這份清單並結合場地麵積,首先是確定最佳的切塊和動線。當靈活自由地碼放這些體塊盒子時,產生了前後關係、以及插接和重疊。更進一步,就是把盒子變成房子。
經過思考與過濾,房子被賦予簡單純粹的形態。通過對模數和傾角的控製,靈活自由的碼放亦呈現了一種節律。體塊的插接交疊表達了對結構的解構,我們確實“研究”了。就餐的小空間變成房子,公共空間自然也被圍合成了庭院。
至於天窗,很簡單:既然是庭院,理應看到天空。
餐廳的廚房也是重點。在平衡協調各體塊關係之後,我們將明廚設置在空間流線的遠端,與後廚和研發區集合在一起,為廚師的創作研究提供便捷,同時也為菜肴出品提供全麵展示。
整體風格設計上我們主張以簡馭繁、寧靜洗練,這不僅體現在平麵布局上,在裝飾層方麵也大量使用常見的基本材料,體現空間的純粹致美。
這裏是創新研發的場所,也是體驗美味的地方。要滿足菜品的研發創製,也要滿足用餐時的愜意舒適。就餐環境承載的不僅是品味美食,更多的是思維的交流與碰撞。
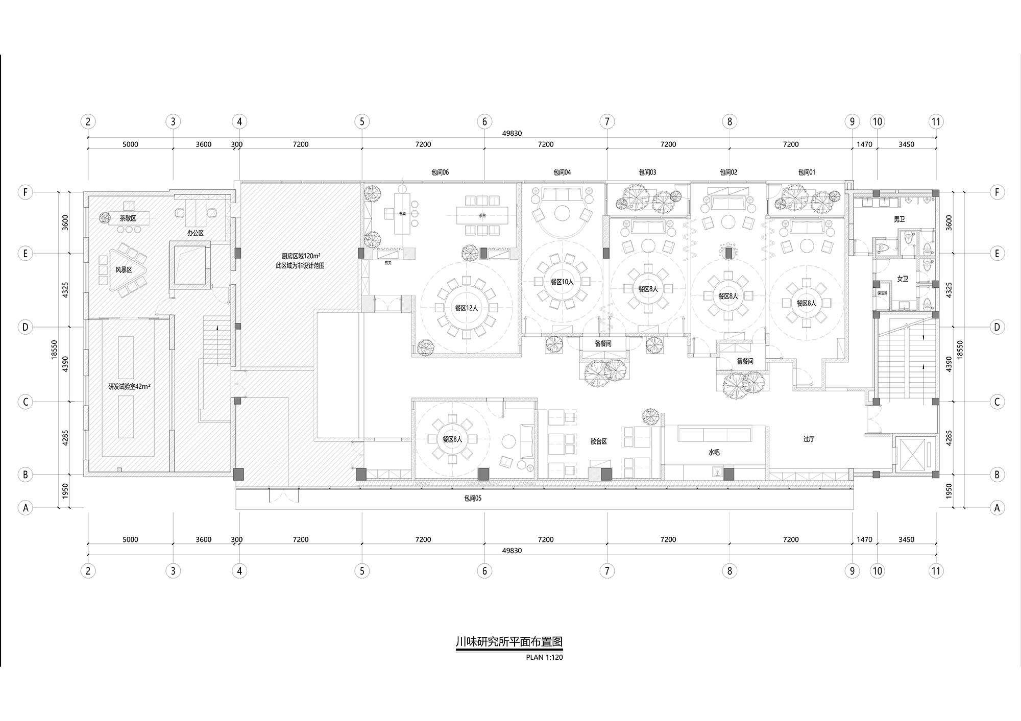
∇ 平麵圖1
∇ 平麵圖2
項目信息
項目名稱︱巴奴川味研究所
設計方︱河南落羽杉室內設計有限公司
項目設計&完成年份︱2019年4月 & 2021年2月
項目地址︱河南鄭州市金水區經三路
項目麵積︱約800㎡
客戶︱巴奴毛肚火鍋有限公司
主創人員︱李卡、王金行、趙秋傑
執行人員︱郭創、張冰、楊威、師珍珍
攝影團隊︱如初攝影
品牌︱洚泓空間、名匠家私、石客照明








































