Black Rock就是威士忌愛好者的天堂。這個起源於倫敦的品牌,致力於呈現最前沿的風味,讓人們以全新方式認識威士忌。它在2016年首次推出一個全新的概念,既將威士忌風味簡化為甜美、香料、水果、芬芳、平衡和煙熏這幾個類別。
hcreates與Black Rock上海團隊合作,改造了上海熱門街區富民路一個不起眼的拐角。簡單的黑色立麵和濾光條作為入口,人們很難不被這種新穎的方式吸引,想要一探究竟。
入門後整個空間充滿了對比元素:明亮與黑暗、平滑與粗糙,完美平衡了經典和現代的元素結合,創造出一種獨特的空間體驗,旨在讓客人輕鬆自在。
酒吧的亮點是一個巨大原木樹樁長桌。從巴布亞新幾內亞進口的蘇門答臘八果木足有兩噸重,中間巧妙地設計了了兩條橫貫長桌的威士忌陳釀管道。玻璃覆蓋的管道左側連接美國橡木桶,右側連接法國利穆讚橡木桶,分別裝有21升威士忌,可以從樹樁長桌末端的龍頭直接供應。坐在長長的原木桌子周圍,客人可以選擇點一份品鑒套餐,享用長桌裏的陳釀,或是在一旁的開放式酒吧點杯威士忌嗨棒和雞尾酒,全部酒品都由六種風味特征組成。
Black Rock的整體是黑暗和神秘的。柔和的琥珀色光芒和各種顏色的威士忌交相輝映。黃銅裝飾的細節、皮革飾麵和定製燈具提升了空間的格調,同時又營造了輕鬆舒適的氛圍。地板、牆壁和天花板采用有紋理的深色色調,更顯低調。
整個設計過程參考威士忌陳釀過程中使用的橡木桶,並將其巧妙運用到各處細節之中。
橡木色溫暖而耀眼,使展示櫃中的威士忌如獎杯般熠熠生輝。兩個私密區域配置了條紋大理石桌、舒適柔軟的沙發和皮質長椅。臨街露台和貴賓區組成了空間的其他部分。
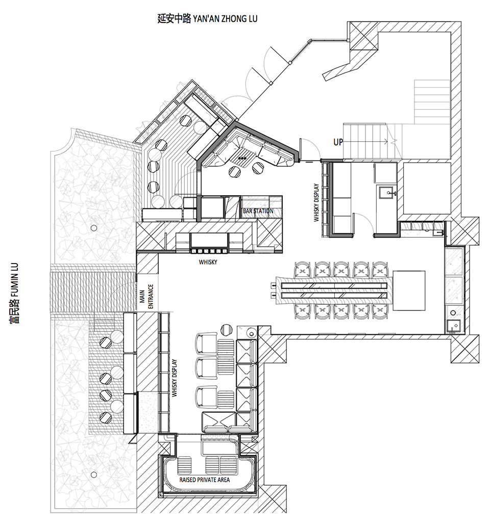
∇ 平麵圖 © hcreates
項目信息
項目名稱:Black Rock
室內設計:hcreates罕創(上海)建築設計有限公司
主創設計師:Hannah Churchill
設計團隊:Alex Davies, Yicheng Zeng
項目地址:中國上海市靜安區富民路41號
完成時間:2022年
麵積:70平方米
攝影:Brian Chua, Graeme Kennedy
客戶: Black Rock
製造商:Kian, Vintage Timber Craft























