借光和900度
從第1家到第11家,借光不僅是作為設計公司,更是作為戰略合作夥伴,和900度並肩前行。作為設計師,做出“好看”的方案並不難,但如果不分析整個行業以及消費人群的變化勢態,就很難做出讓經營者如虎添翼的,真正有生命力的空間設計。
每開一次新店,都帶來新的思考和新的進步,這對於900度和借光而言,都意義非凡;對於設計行業而言,這種合作模式的探索,也意義非凡。
Borrow light and 900 degrees
From the first to the eleventh, we are not only a design company, but also a strategic partner, moving forward side by side with 900 degrees. As a designer, it is not difficult to make a “good-looking” plan, but if we do not analyze the change trend of the whole industry and consumer groups, it is difficult to make a truly viable space design that makes the operator even stronger.
Each new store brings new thinking and new progress, which is of great significance for 900 degrees and borrowing light; For the design industry, the exploration of this cooperation mode is also of great significance.
跳出連鎖店的固有模式,它們不是一模一樣的照搬,每家店都有自己個性的一麵。
在900度的各個分店中,有的強調火與人類烹飪史的關係,有的著意突出“清吧”的元素,有的把“酒文化”放在更顯眼的位置……這是因時、因地、因客戶群的微妙改變而決定的,也因為九百度是有“野心”的,一直在更新和豐富“900度”這個品牌,借光作為深度合作的戰略夥伴,也一直在保持精進和思考。
Out of the inherent mode of chain stores, they are not exactly the same. Each store has its own personality.
Among the 900 degree stores, some emphasize the relationship between fire and human culinary history, some focus on the element of “Qingba”, and some put “wine culture” in a more prominent position… This is determined by the subtle changes of time, place and customer base, and because jiubaidu is “ambitious”, it has been updating and enriching the brand of “900 degree” as a strategic partner for in-depth cooperation, I have been keeping improving and thinking.
跳出“燒烤店”的標簽,包羅更豐富的內涵,把音樂、啤酒、燒烤,放鬆刻入900度的DNA裏。
Jump out of the label of “barbecue shop”, including richer connotation, and carve music, beer, barbecue and relaxation into 900 degree DNA.
新店延續了部分以往的元素,半開放廚房做展示麵,建立廚師與吃客的視覺及情感聯係。鋼板做地麵,裸露天花及結構柱體混凝土,釋放材料的張力。
使用螺紋鋼圍合的用餐區,作為大廳修長空間的視線間隔,區域切分,不斷尋找和發掘符合這個品牌精神的材料。
在燒烤工場的基礎上,做新的突破,強化清吧的氛圍,
傳達更年輕、休閑的空間氣息。
The new store continues some elements of the past. The semi open kitchen is used as the display surface to establish the visual and emotional connection between the chef and the diner. Steel plate as the ground, exposed ceiling and structural column concrete to release the tension of materials.
The dining area enclosed by screw thread steel is used as the line of sight interval and area segmentation of the slender space of the hall, so as to constantly find and explore materials in line with the spirit of this brand.
Based on the barbecue workshop, make new breakthroughs and strengthen the atmosphere of Qingba,
Convey a younger and more leisure space.
外擺於燒烤店,有如庭院於家宅的重要性,是室內空間與周邊環境發生情感交流的場域,也是900度空間的硬性配套,栽種各類植物,生機盎然。
和以往900度外擺使用的藤椅不同,從這個店開始,外擺用餐區使用沙發對坐,空間上營造 如客廳般的休閑尺度,用戶體驗感上,增加食客晚上吃燒烤喝啤酒的放鬆感、舒適性,900度其他門店的外擺區也隨之調整。
Outside the barbecue shop, it is as important as a courtyard in a house. It is not only a field for emotional communication between the indoor space and the surrounding environment, but also a rigid supporting of 900 degree space. It is full of vitality by planting all kinds of plants.
Different from the rattan chair used in the past 900 degree swing, from this store, the swing dining area uses sofa to sit opposite, creating a leisure scale like a living room in space. In terms of user experience, it increases the relaxation and comfort of diners eating barbecue and drinking beer at night, and the swing areas of other 900 degree stores are adjusted accordingly.
空間設計的背後
是對品牌定位及客群需求的深度考量。
華發商都外圍的900度燒烤工場,少了些市井的煙火氣,加入了幾分年輕時尚的調料。像烤烤店,又像清吧,既滿足了擼串的口腹之欲,也適合邀幾好友,就著休閑的音樂,愜意聊天。
Behind space design
It is an in-depth consideration of brand positioning and customer needs.
The 900 degree barbecue workshop outside HUAFA Shangdu has less fireworks in the market and added some young and fashionable spices. It’s like a roast shop and a Qing bar. It not only meets the desire of rolling strings, but also is suitable for inviting a few friends to chat with leisure music.
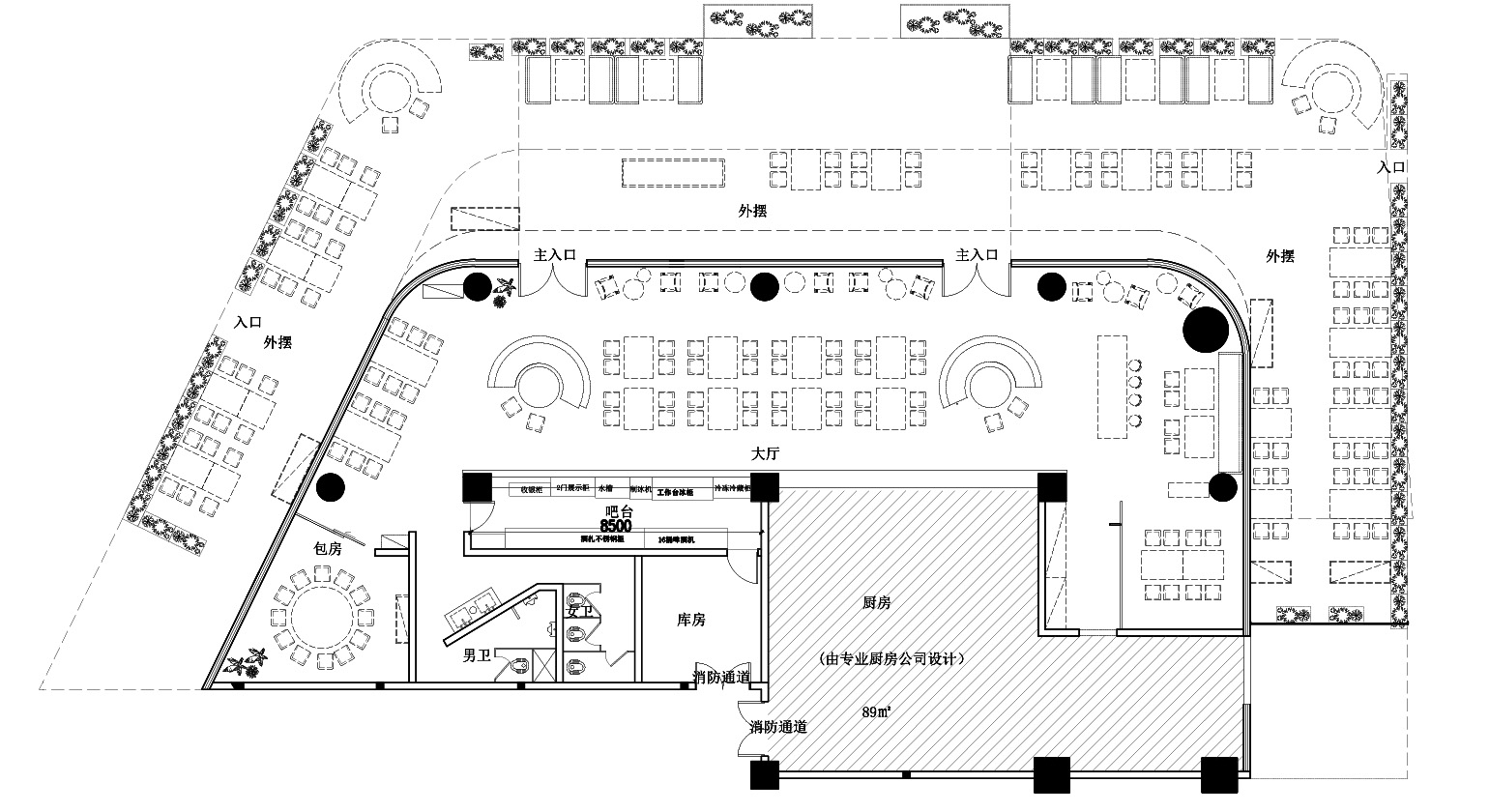
∇ 平麵圖
項目信息
項目名稱:900度燒烤工場 I 金灣店(第11店)
項目類型:餐飲
項目地址:廣東 . 珠海市金灣區華發商都A館一層
項目麵積:室內363㎡,外擺300㎡
設計單位:珠海借光建築空間設計有限公司
服務內容:空間設計
設計時間:2021年3月-4月
施工時間:2021年5月-8月
工程造價:130萬
項目狀態:運營中
項目甲方:珠海九佰度餐飲管理有限公司
Project Name: Jiudu barbecue workshop I Jinwan shop (shop 11)
Project type: Catering
Project address: Guangdong 1f, hall a, HUAFA Shangdu, Jinwan District, Zhuhai
Project area: 363 ㎡ indoor and 300 ㎡ outdoor
Designer: Zhuhai Jieguang Architectural Space Design Co., Ltd
Service content: Space Design
Design time: March April 2021
Construction time: May August 2021
Project cost: 1.3 million
Project status: in operation
Project Party A: Zhuhai jiubaidu Catering Management Co., Ltd































