位於湄南河畔的“Baan Nhuer Nham”或“水上之家”是一家舒適溫馨的餐廳。雖然它現在坐落在從馬路一直延伸到河邊的一塊長方形土地上,但它曾經是一棟近 60 年曆史的小型兩層建築。根據業主的說法,擴建該物業的決定是為了容納不斷增長的客戶湧入,同時也將進行重新設計和裝飾,以吸引更多的顧客。這座擴建項目建在一座大壩上,周圍環繞著成熟的樹木和頑強的野生綠地,設計師認為最好通過仔細梳理和重振該地塊現有建築來突出該物業。
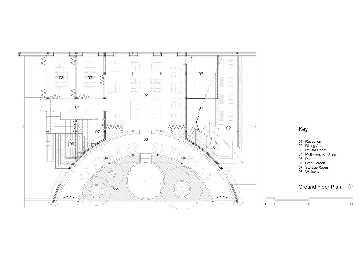
在餐廳的入口處,設計師想重新利用老化的木板,鍛造和拋光成一個優雅的拱門,將迎麵而來的顧客的注意力吸引到一個燈火通明的花園。占綠化麵積約 50% 的花園充當天然過濾器,過濾附近道路的沙礫和汙垢,將煙霧繚繞的空氣和分散注意力的噪音遠離餐廳內部。植物也無意中增添了舒適和放鬆的氛圍。然後通過在新建築和原有建築之間放置一個優雅的池塘庭院,營造出一種擴大空間的錯覺。庭院不僅作為新舊之間的緩衝,還提供了一個多功能的公共區域。在這裏,餐廳工作人員可以利用寬敞的空間,親切地歡迎顧客。
高大、彎曲的磚牆環繞著庭院,沿著庭院池塘的路徑也作為河邊和鬱鬱蔥蔥的內部之間的一層,以灌輸奇妙的維度。綠化、磚牆和庭院都被自然光巧妙地照亮,同時讓河流的微風整天清新地流過餐廳。
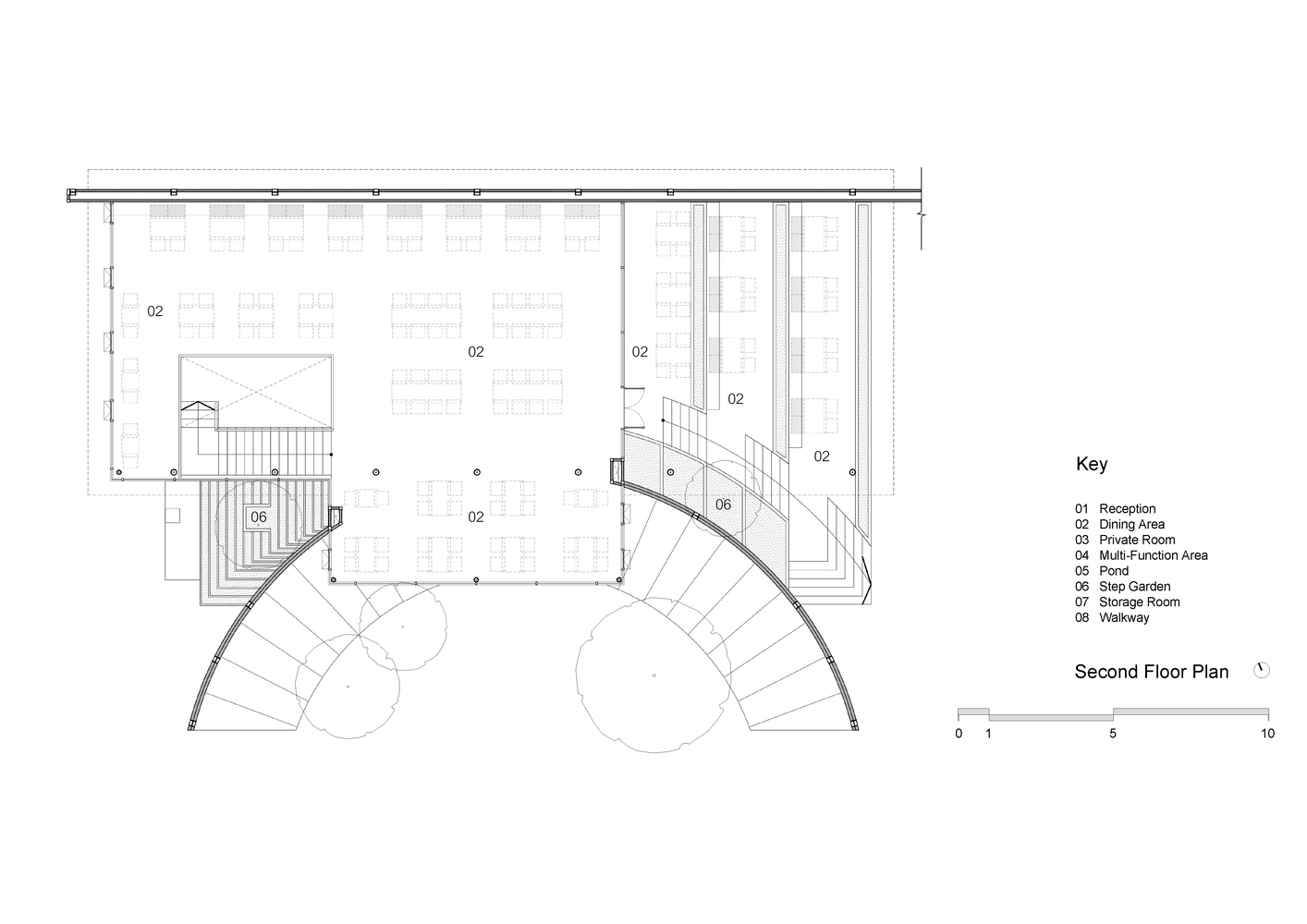
新增加的建築是圍繞舊建築設計,盡管點綴著當今現代性的設計元素。餐廳有兩層,頂部是人字形屋頂,旨在讓餐廳以室內和半室外的方式為顧客提供服務。雖然底層的設計類似於古老的經典泰式房屋下的空間 – 被木梁和高高的木天花板包圍 – 上層通過開放式計劃獲得了更大的靈活性,能夠根據需要進行配置和更改。
在河邊的屋簷下延伸了一個夾層,提供了更多的座位,同時也為顧客提供了一個廣闊的、無拘無束的河流視角。從河麵上看餐廳的景色也得到了增強,夾層樓打破了建築整體形狀的統一性。遠離河流並靠著馬路的是最後一堵磚牆,沿著整個房產的長度排列。雖然起初並不張揚,但其精心堆疊的鑲板旨在反映附近河流崎嶇而迷人的波浪。在它的映襯下,陰影懶洋洋地隨著餐廳的燈光起舞,它的恍惚狀態延伸到整麵牆的長度,它的可靠結構將外部和內部的座位區連接成一個無縫的區域。
為了滿足業主讓客戶更接近自然的願望,該項目的設計師主要使用了金柚木、竹子、編織藤條、拋光石、水洗沙、灰磚等原材料。這些材料不僅慶祝餐廳的原狀態,建立在天然綠色植物之間的大壩上,而且將顧客所享受的極其新鮮的風味與周圍的原始物質交織在一起。
就目前而言,這家餐廳已經經營了 60 多年。該項目的設計師沒有建造隻會在未來造成更多洪水和環境破壞的“擋土牆”,而是決定利用河流的性質。因此,該項目的主要目標是用它自己的俏皮形狀和線條來補充房產的新曲率,同時通過延伸到河流下方的導流和橫梁來加強結構的強度。這樣,餐廳共存而不是與河流爭鬥。
以類似的方式,該項目的設計考慮到了被動設計,有效地減少了餐廳對環境的影響,同時保護和促進了它周圍的自然元素。這延伸到多功能庭院、室內/半室外設計、新建築頂層的開放式設計,以及促進自然光和風相互作用的眾多結構設計選擇。“水上屋”及其擴建,在自然元素與人的結合中展現出一種全新的奇觀,在時間的必然考驗中經久不衰,茁壯成長。
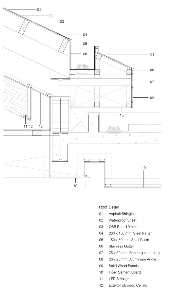
∇ 技術圖紙




















































