希臘 / 塞薩洛尼基 / 酒吧&餐廳 # Post-Spectacular Office#
這座建築是一座 1924 年的折衷主義畫廊,位於市中心,在考慮設計理念時,其壯觀的氛圍是主要特征,盡管選擇對原始建築的幹擾是最小的。該設計是圍繞在私人庭院中聚會的想法而建立,周圍環繞著手工奇特的物品。
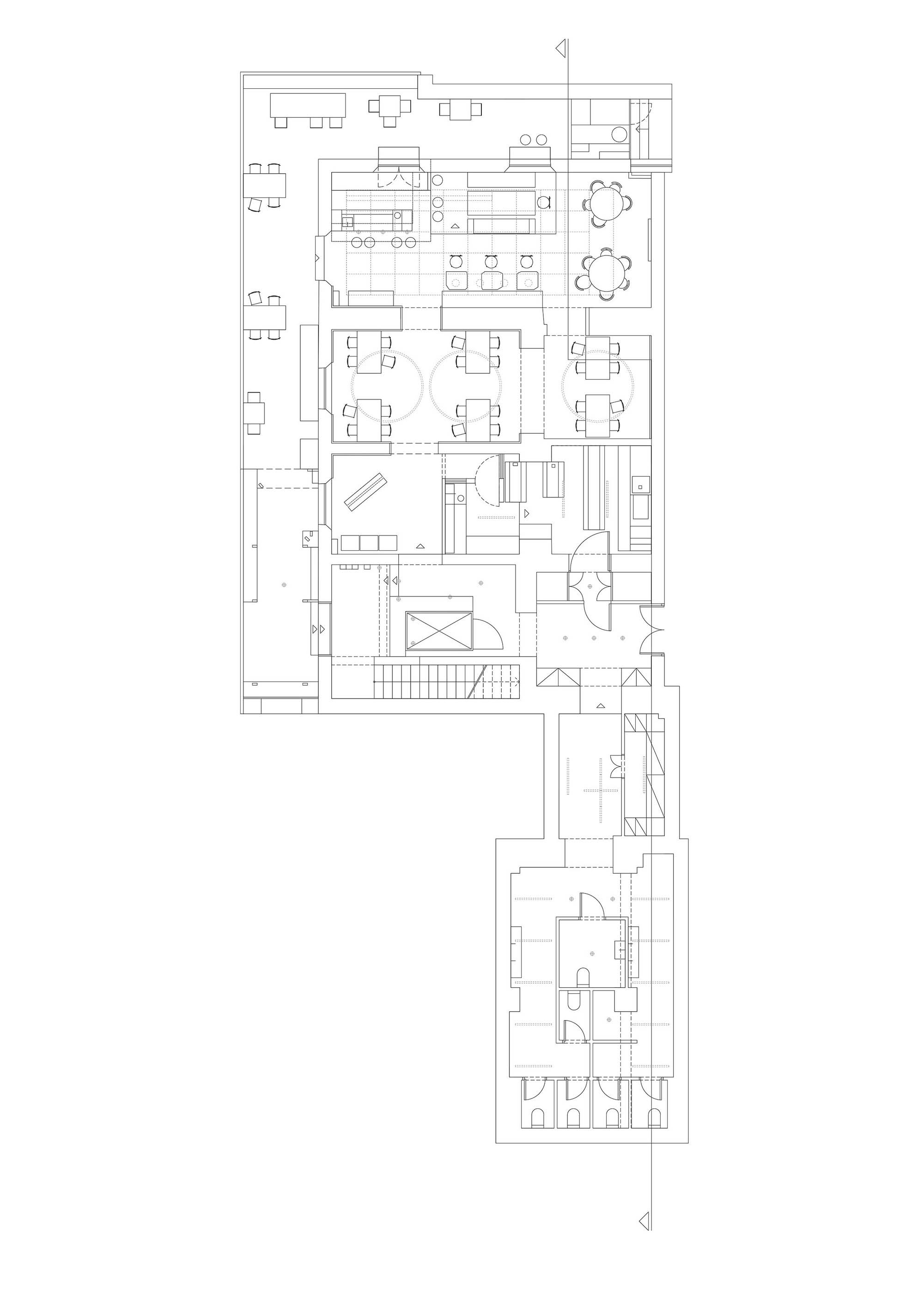
一樓由四個空間單元組成,入口、天井、酒吧和休息室。由代表城市和建築的不同重疊層的物體構成的風景,創造了多重敘事聯係,具有主要製作的身份和未來主義技術精髓:寬大的中央大理石桌子、帶有原始符號的雕刻牆壁、霓虹燈和土耳其浴室馬賽克瓷磚、鮮紅色的牆壁想象中的國家色彩鮮豔的旗幟、吹製的玻璃裝飾品、幾乎光禿禿的入口在喧鬧的外部和私人內部之間創造了一條通道。
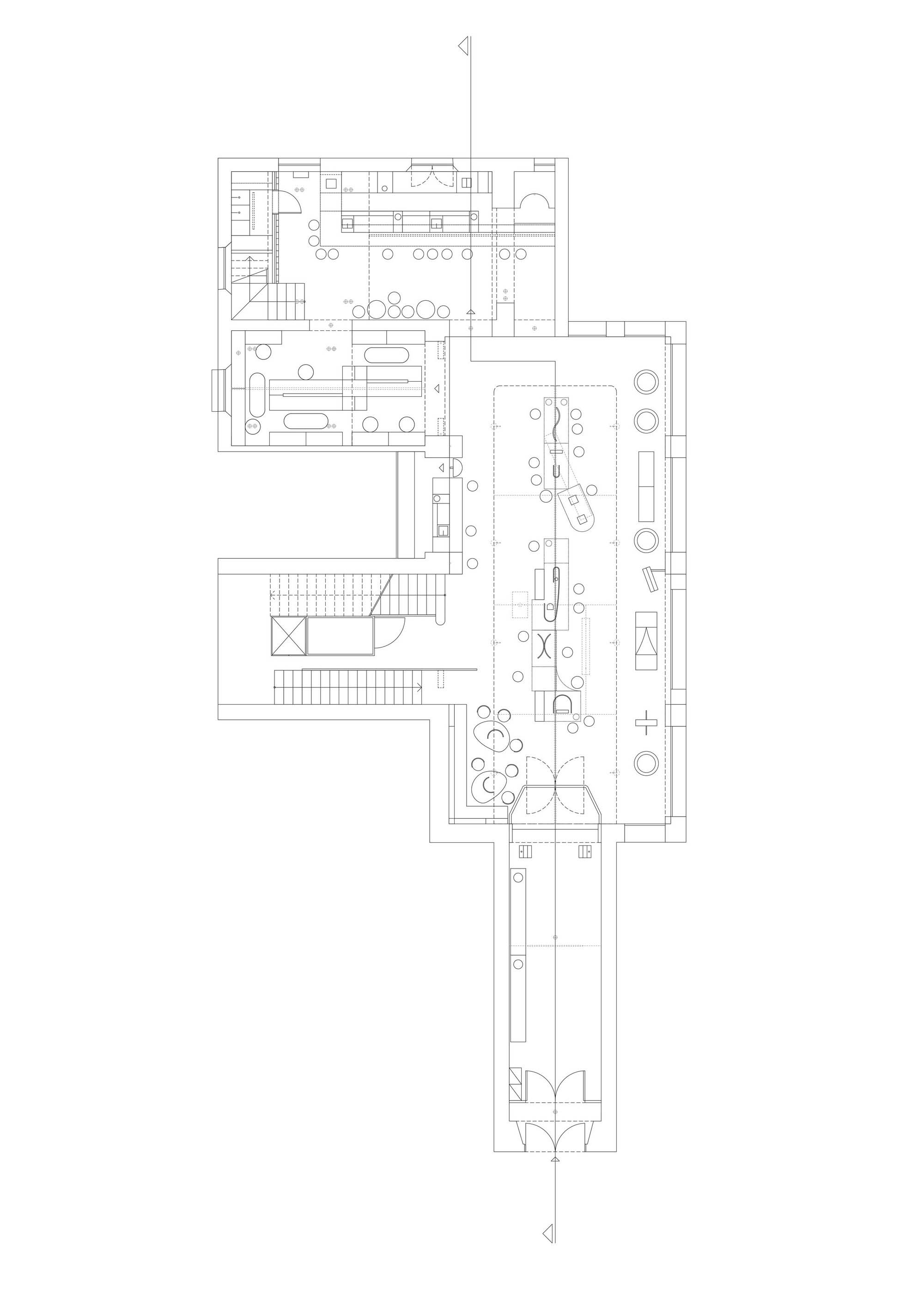
地下室也由四個單元組成:餐廳、休息室、室外空間和輔助設施。其目的是與一樓區分開來,但也保持主要敘述:符號和人工製品之間的聚集,但在一個更加寧靜和接地的環境中。風景在其接近過程中變得樸實而完整。在地中海鄉村後院享用悠閑晚餐的舒適感是對餐廳和後院的渴望:“未完成”的石膏牆、大理石桌麵和帶有陶瓷照明裝置的漸變效果彩繪天花板,再加上裸露的機械和柔和的色彩。
▽ 設計概念
▽ 地下一層平麵圖
▽ 一層平麵圖
▽ 立麵圖
版權聲明:本站所有文章除投稿授權發布外,其他文字內容均為原創,享有著作權保護,未經許可不得以任何形式進行轉載(包括且不限於:媒體、網站、公眾號等)。所有項目照片/設計圖形版權歸原作者所有。本站部分內容源自網絡公開資源或用戶分享,如若侵犯了原作者的合法權益,可聯係我們進行處理。








































