項目位於廣東省中山市小欖鎮區,是由四棟形製一致的廠房陣列形成的街區,設計任務是將其中一棟樓首層的轉角位改造成簡餐餐廳。基地有著一個很長的內街立麵,以前的租戶一直將道路作為其空間的邊界,形象十分的封閉。
∇ 軸測圖,公共性的空間
我們的策略是在保證商業邏輯成立之下,以創造半戶外空間的方式嚐試重塑原本封閉的內街關係,讓這個街角的線性立麵兼備通透性與一定的公共性。
∇ 分解軸測圖
首先我們重新界定了地麵範圍,形成場所感。第二步是退讓局部室內麵積,形成一個對所有人都是開放的半戶外空間,這是街道層麵的擴建,以加強室內與環境之間的關係,讓其變得有點曖昧,激發人們的探索行為。
通過鑲嵌在結構柱之間的木框玻璃窗,我們毫無保留的把內部空間向街道和行人展示,使原本內向封閉的街道形象煥然一新,這也使得店鋪內街界麵與周邊皆然不同。相比於傳統的店鋪邊界明確的入口以及“圈地”一樣的外擺,我們留出了足夠的可以供行人休息與社交的空間,提供多一種人與街巷關係的可能性。
窗框不僅對內形成客座位置,大麵積的通透玻璃也使得原本昏暗的內部空間有著充足的自然光進入,形成了十分明亮的內部環境。
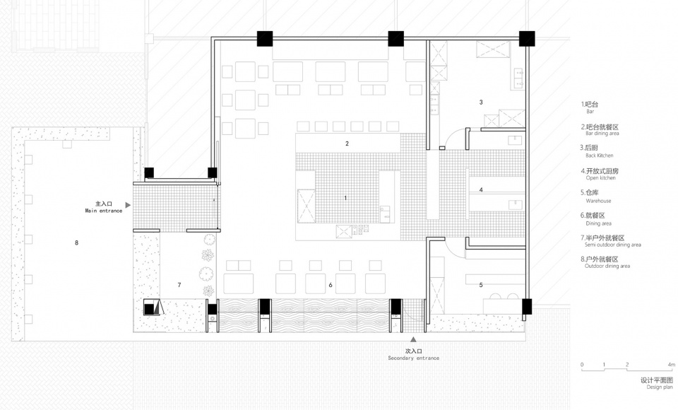
主營業空間圍繞開放式中央吧台布置,保持室內的通透感同時也形成視覺焦點。中央吧台與開放廚房空間上相連,通過地麵材質的區分形成主要服務區域,既滿足了不同產品需要獨立製作區的需求,同時也保證了服務人員有著良好的溝通,避免了出餐流線的交叉。
近年隨著流量社會的快速發展,小體量投資者及創業者越來越傾向“短平快”的項目,這種趨勢在二三線城市更為突出,街道也隨之堆滿了不同的流行元素,也越來越封閉且乏味了。我們通過對公共空間的再設計,重塑人與街巷的關係,利用這些未被定義的公共空間,激活人們的想象從而創造更多的可能性。
∇ 平麵圖
∇ 立麵圖
項目信息
項目名稱:Nana Kitchen
設計方:泥木建築工作室
項目設計&完成年份:項目設計2022/03,完成2022/08
主創:黃城強
設計團隊:林曉峰,陳亨沅、陳佳河(實習)、羅鍵鋒(實習)
項目地址:中國廣東省中山市小欖鎮紫荊東路
建築麵積:200㎡
攝影版權:黃城強,何振中,吳嗣銘
視覺設計:LO MORE
客戶:中山市小欖鎮逸宏餐飲管理公司




































