Yakimono餐廳位於墨爾本柯林斯街 80 號重建區,共有三層,麵積為 685㎡。它旨在參考雨水浸透的東京街道以及這座城市的活力。從電動且充滿活力的入口處,從進入一樓餐廳的那一刻起,從其LED 和霓虹燈入口到聲光的衝擊,您的難以置信的感覺就被暫停了。這家餐廳是關於能源的。走上樓梯,您將進入另一個世界,一個霓虹燈照亮的沉浸式空間,設有大型中央廚房、煙烤架和傳統居酒屋風格的周邊座位。但這不是一家傳統的日本餐廳,風格和設計形式是澳大利亞獨有的。
外部玻璃和主循環樓梯使用二向色膜創造了一個隨著走動而變化的環境。大型圓形吊燈似乎會根據顧客在餐廳內的有利位置而改變顏色,因為它們反映在應用於大多數玻璃表麵的二向色膜中。在鬆木和橡木中使用傳統的日本木材細木工比例,與圖案拋光不鏽鋼的反光天花板形成鮮明對比。隱藏的聲音衰減和夜總會級的音響係統為這家餐廳增添了活力和活力。坐在酒吧成為一種變革性的體驗。
上層是酒吧,包廂座位仿照日本火車的座位。這個級別的體驗具有不同的能量,但反映了澳大利亞對日本體驗的獨特看法。餐廳的所有家具都是當地製造,座位是由 Ross Didier 為 JRF 設計。桌子和集成家具由建築師設計,符合整體概念。因此,空間是完全身臨其境的感覺。從運營的角度來看,服務模式和人員流動與客戶體驗同樣重要。這家餐廳的設計將形式和功能無縫融合,為顧客提供無縫體驗。
∇ 一層入口
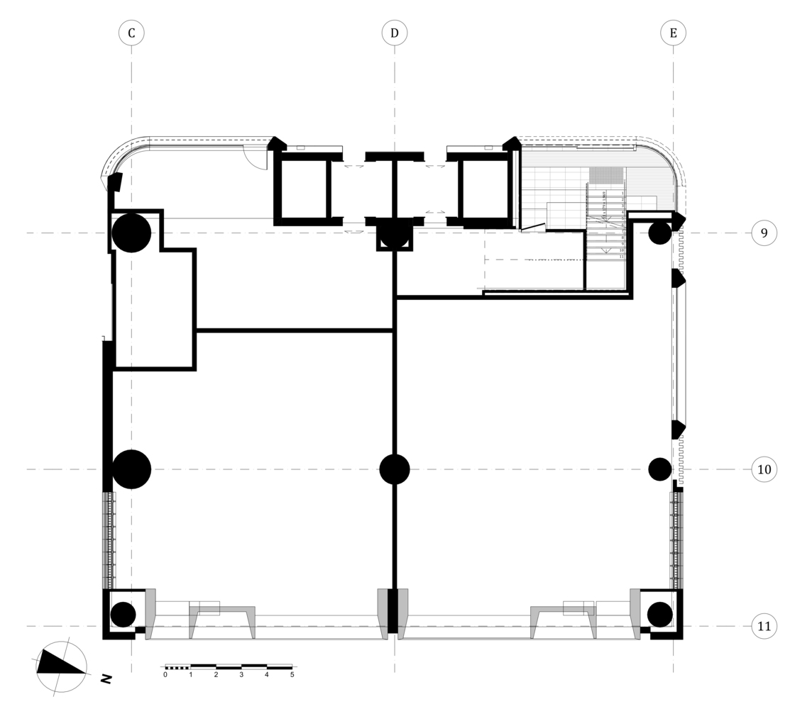
∇ 二層平麵圖
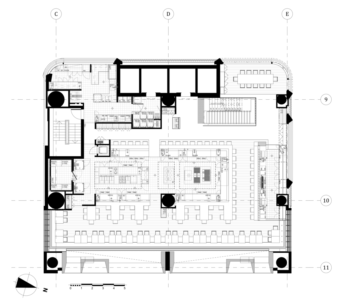
∇ 三層平麵圖
版權聲明:本站所有文章除投稿授權發布外,其他文字內容均為原創,享有著作權保護,未經許可不得以任何形式進行轉載(包括且不限於:媒體、網站、公眾號等)。所有項目照片/設計圖形版權歸原作者所有。本站部分內容源自網絡公開資源或用戶分享,如若侵犯了原作者的合法權益,可聯係我們進行處理。



























