在改造空間時,翻新是傳達新故事的理想方法。這種轉變在商業區的一排現代店屋中顯而易見,具有獨特的外觀。這次翻新將一個普通的店屋變成了 TOTO Kitchen,這是萬隆一家精致的家具陳列室。
這座建築最初是一間店屋,在其他銷售建築材料的商店中空間有限。這家店屋裏,先前一片漆黑,終日需要燈光照亮。Studio Avana 有信心以不同的方式應對這一挑戰。關鍵問題是確定如何維護現有建築物的一部分以及應用於建築物外部和內部的功能。由於現有建築物的狀態比較混亂,因此進行了改造以保留和消除一些元素。
這座建築的外部朝北,由於使用了玻璃而顯得開放,隨後以堅固的輕質鐵格架形式應用了二級表皮。二級表皮有多種用途,包括直射光屏障和建築安全係統。這一設計的實施代表了 TOTO Kitchen,它旨在為不斷移動的訪客提供服務,使用優質的材料選擇來支持當今充滿活力的生活方式。
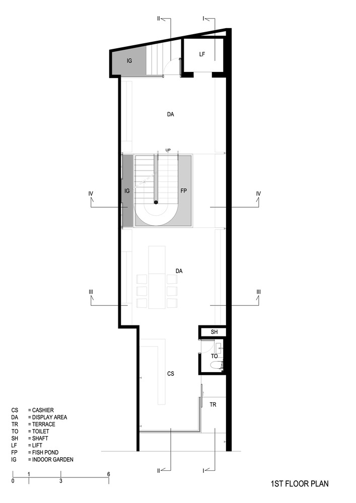
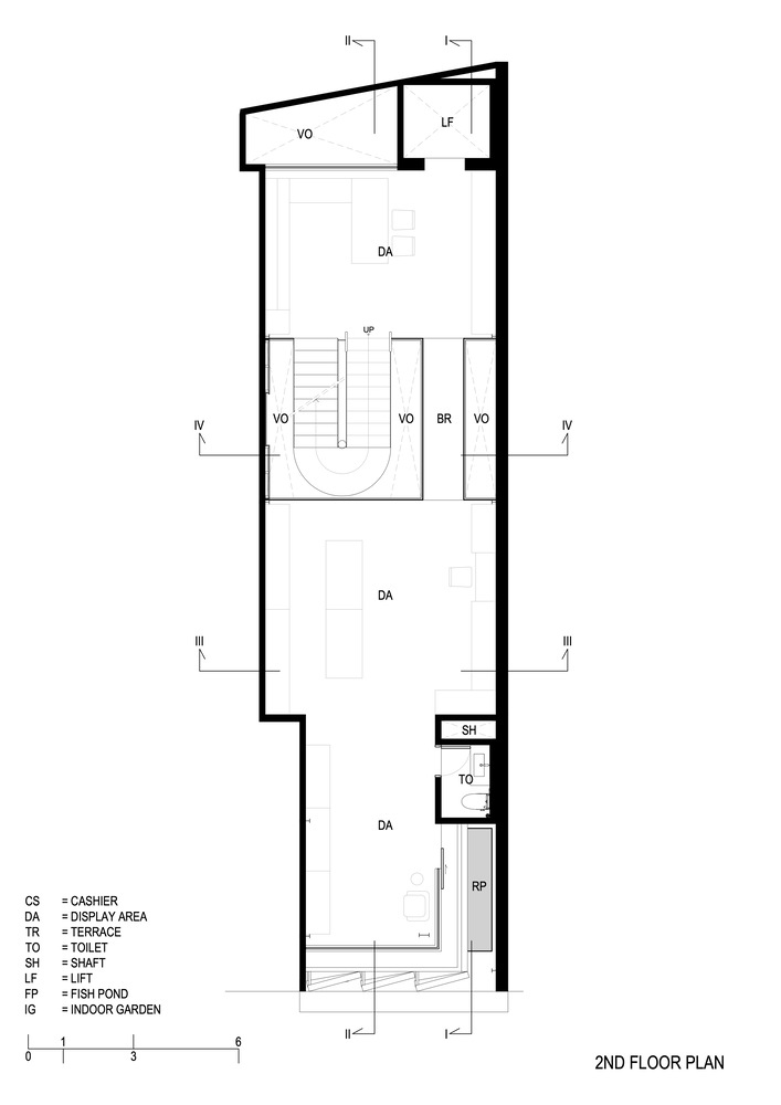
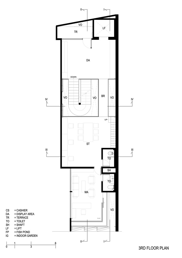
∇ 平麵圖
版權聲明:本站所有文章除投稿授權發布外,其他文字內容均為原創,享有著作權保護,未經許可不得以任何形式進行轉載(包括且不限於:媒體、網站、公眾號等)。所有項目照片/設計圖形版權歸原作者所有。本站部分內容源自網絡公開資源或用戶分享,如若侵犯了原作者的合法權益,可聯係我們進行處理。

























