一座城市的吸引力,始於古往今來凝聚的智慧與發生的故事。傳統文人對於“風雅閑趣”的渴求一直深植於骨髓,而這種文化脈絡的延續,通過蘭 • 越裏商業形態中的豐富變化得以一一展現。
∇ 項目位置
項目位於杭州臨平的商業核心區域,“結廬在人境,心無車馬喧”,穿過熙攘的街道,蘭 • 越裏的“畫卷”被緩緩打開,嚐試用文化與生活的精神性來感化時間。正如傳統文化演變過程中的時代新生,各具形色,卻有共同的靈魂。
這一隅天地給予訪客的物外之趣,誠如沈複言“以叢草為林,以蟲蟻為獸,以土礫凸者為丘,凹者為壑,神遊其中,怡然自得。”的悠然感受。無論何時,人們對於閑適生活的本質追求從未改變,在怡然的環境中慢下來,靜享這一刻的美好時光。
這裏有專門為藏茶而設置的“茗香閣”,以茶客存茶的專業恒溫空間,保存住那一壺清香的同時,也延續人與人、人與茶之間奇妙的緣分。
以造境窺見設計理想
設計團隊運用園林造境的理念,以花、器、茶、酒的視角,構建出各具特點的主題空間。呈現一處“茶”與“美食”的城市秘境,共赴一場回溯千年的風雅趣事。
入口處的枝幹虯屈、疊石成翠,透著沉鬱的韻味。踏入的那一刻起,不由放慢腳步,感受心與境的融合,沉浸在當下的精神世界中。
“況複名園中,樂事夐優雅。”在東方哲學裏,“窺見”是讓人更覺得有趣的小竊喜,這種心理狀態在移步換景間發生變化,空間的能量被緩緩釋放,轉角即撞見微妙的情緒。
以人世的繁華百態回歸到山水間的清淺意象,在茶飲雅會與觥籌交錯中體驗各具特色的主題空間,商業本質的照拂得以實現。
理想場景的映照
《長物誌》中有言: “堂屋宜大,書屋宜小”,戶庭靜怡,虛室軒朗”。琴棋書畫,茶器詩酒,文人不斷地從雅致的物質和精神中進行自我構築,於是便有了山水之間的理想之所,成為不可或缺的精神聖域。
以嵌套的手法來表現空間的“虛”與“實”。虛實之間更具魅力,低垂的簾櫳擁有平靜而舒緩的張力,糅和清冷的氣息,可獨立,可融合,實現雅集與沙龍的多重組合功能。
抬高的茶室,令人與自然的距離變得更近。作為茶的載體,水用它的無形包容茶的甘洌。當我們在回味一杯清茶帶來的愉悅時,其中也包含了環境帶來的意味,隨著光影變化,也體驗了另一個不同的空間維度。
時間的痕跡隨著窗外四時景致的輪轉,消融在沉香的煙霧氤氳中。
“明月鬆間照,清泉石上流”,以茶會友,香茗養心。木牆木椅的觸感賦予了小空間的溫和與細膩,隔一尺內景,借一寸月光,寧靜中得以照見真實的內心。
以表現力極強的書法為設計主題,一副墨寶是最懂空間的“知己”,《觀念中的水墨》一書中提到:“水墨之所以複雜,是因為總糾纏在古今中西之間”,每個人都有自己心中的山水,這是當下對水墨的重新定義。有珍饈佳肴帶來的味蕾滿足,也有茶香墨香的氤氳動人。
在現代設計中,家具承載的是更具精神性的實用美學。線條流暢舒展的長椅將空間的獨特氣質充分表達。實木基底替換為更加輕透時尚的亞克力材質,在對比中聆聽傳統與時代的不同語言。
走進“禦前”私宴,似有煙樹婆娑的朦朧意境。空間在光感中構建成畫麵,生出一幅萬象紛呈的山水長卷,並具有無盡聯想的餘象,通過擬態的設計手法,呈現出山石流動的生命力,以貼合當代餐飲空間的多元體驗訴求。
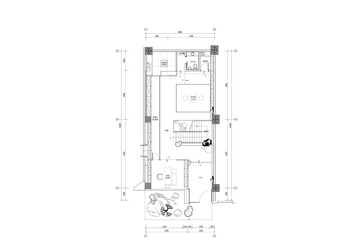
∇ 1F 平麵圖
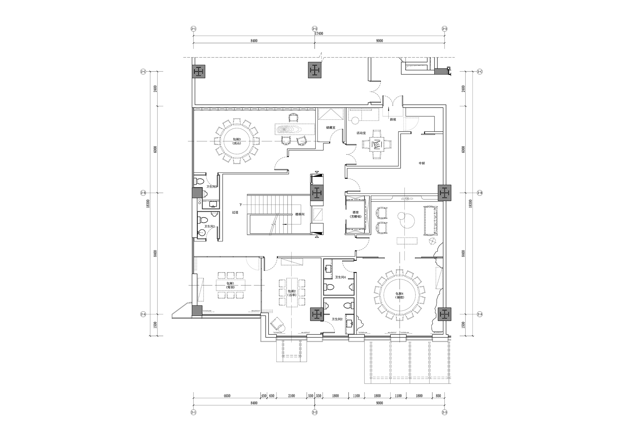
∇ 2F 平麵圖
項目信息
項目麵積丨420㎡(1F:148㎡,2F:272㎡)
項目位置丨杭州市臨平區文閑街456號 餘杭商會大廈B座
主案設計師丨源木
輔案設計師丨周小煜、王金鍾










































