序章
外灘延綿/延安東/蘇州河外白渡橋
黃浦江十裏洋場 … …
這個全國乃至遠東的金融中心,經曆百年滄桑,賦予北外灘穿越古今的色彩。當我駐足此地極目遠眺,一覽無遺的開闊,浮華搖曳杯中,空間塑造的平靜,氣質優雅從容,晶采軒如珍珠般瑰麗,晶瑩豈能孤芳獨賞!
∇ 立剖效果圖
上海黃埔區海灣大廈,坐落於黃金三角北外灘,大廈建於九十年代,帝景晶采軒餐廳旗艦店位於大廈頂部樓層。原樓體塔尖頂造型結構,外輪廓宛如蓮瓣,向上閉合,含苞待放。塔頂南北兩側立麵原有的玻璃幕牆,為室內環境提供了通透開闊的視野,將黃埔江兩岸陸家嘴、外灘景觀盡收眼底。
∇ 區位圖
外灘建築林立,業主多次尋找,鍾愛此處景觀迷人。幾年間,我們一直探討合適的設計方案,美人之美;最終雙方構想達成,美美與共;於是曆時三載,共同打造全新升級版的晶采軒餐廳旗艦店。
作為晶采軒係列餐廳的升級版,如何為客人帶來不一樣的尊貴奢華,感受非凡?
上海最好的觀景位置條件,滬上餐飲界一大旗幟“晶采軒”餐廳,卓越出品與服務管理;這是一顆晶瑩的珍珠,外灘繾綣一灣江水的平麵就是晶采軒的剖麵,條件至高無上有目共賞,我認為創造更開闊更通透的視野是整個空間塑造的核心要素。
∇ 共享空間立剖
雕琢
由於建築建於九十年代,室外幕牆和室內鋼架結構都有老化現象,首先改造室外幕牆和加固鋼結構樓層,把整個外牆鋁板幕牆全部換新,南北兩側玻璃幕牆分隔加大,使用更加通透保溫玻璃,減小視野阻礙,達成空間視覺最大化要求。
室內原有四個大平層,空間略顯平淡,於是舍去三套最好的觀景房,整合打造一個共享空間;將三層的空間上下連接為一體,包間麵對共享區的牆體都處理成透明玻璃,保證整個室內空間的視野通透。
拆除三層總計180平方,挑空作共享空間,營造氣派宏大氛圍。
麵對如此高大的共享空間,巧妙利用設計的物理距離,使客人產生對觀景的憧憬,自自然然走近玻璃幕觀景的衝動,心理距離的借境,物理距離的引景,情境互融,造就美景勝收。
貫穿整個空間的觀景旋梯,鳥瞰外灘一灣江水,仿如漂浮的彩帶,漫舞其中!這一聯係29至31層的旋轉樓梯於共享區的中心位置,樓梯麵纖薄輕巧,挑度懸空設計,線條簡潔流暢,設計使用玻璃扶欄,減去視覺的阻隔。
這是整個室內的焦點,而且它必須是一個雕塑,必須極致強調,賦予戲劇性、藝術性。
觀景旋梯為整個室內提供更加豐富的空間層次,起點睛作用,同時分流了餐廳29至31層的部分人流,規範了整個餐飲的服務流程。
景、物、人三者的交流互動自然和諧,有條不紊。
在30層接待台及旋梯中間處,設有一個懸浮的球體裝置,珍珠般瑰麗晶瑩,與外灘東方明珠交相輝映,宛如波提切利筆下維納斯誕生的美麗傳說,靈動神秘,引發遐想浮翩。
南北兩側的幕牆玻璃,引入了自然光線,室內和室外的景色自然交互,讓客人更好感受身臨其境大上海的美妙。
∇ 建築剖麵透視
室內氣氛營造手法處理,選材使用大麵積米黃天然大理石,自然仿古麵,以少量的原木點綴,所有的室內物品盡顯溫潤,含蓄。無需過多色彩跳躍,不跟室外景色鬥豔,整個空間氣氛保持素雅寧靜。
四層設計11個包間,讓其與公共區更加寬敞開闊;片區人流減少,空間環境更加寧靜,整體空間處理通透,玻璃幕與外環境的融合,形成更強大氣場。包間玻璃牆都設有電動柔紗簾控製開合,緩緩降下的儀式感,自由把握私密社交需求。
過渡
大廈總共32層,本案入口位於27層,就餐層在頂部29到32層。由於大廈樓齡已有三十餘年,樓內公共區域的環境感覺相對老化封閉,懷舊氣息夾雜。如何處理入口這一過渡空間,作為整個空間塑造的起點,重要性不言而喻。
通過現場的仔細勘察,整體環境感受把握,我認為營造一種曲徑通幽,柳暗花明的氛圍成為必然且唯一的選擇。
步入27層餐廳入口,與原樓宇環境迥異的景觀躍入眼簾,自然粗獷的石頭裏別有洞天。閑庭信步間,傳來山洞中的溪流聲,遊魚淺戲,幽靜自然,心中的驚喜如漣漪般泛起、蕩漾。這就是陶淵明“世外桃源”的現代劇場版,故事書寫簡練流暢,引人入勝。
入口處和水池區域,以亞光與糙麵的原石處理,自然斧劈,形成此境。原粗石切割對比,以強烈的現代構成手法,水池底用米黃石英小碎,造境若河道細沙,流水靜溢,山間溪徑更著幽境,小魚野趣其中。
餐廳專用電梯,以專屬二維碼的方式預約進入,這好比進入了時光隧道。直達30層,經過酒窖走廊,視線豁然開朗。在素雅白衣,高挑精致的侍者引領下,別致景觀目不暇接,流連間已進入客人的專屬空間。
整個導遊過程體驗,就是桃花源記的劇場航道,神秘美妙。
酒窖走廊同時也是電梯轉換區間,故意拉長的空間距離;狹長進深所形成的慢鏡頭感;視覺味覺聽覺的觀感漫步其中……慢慢滲透至醇厚濃鬱的餐飲氣氛。
功能需求和審美需求得到完美統一的解決。
北共享區
∇ 剖麵圖
與南麵寬敞強大氣場共享空間不同,北麵打造了29層至32層,4層聯通的挑空共享,采用鬆散交錯的平麵布局,通透、狹長。
在這裏設計細膩,承接光線塑造出豐富精致的構造,如多菱鏡交錯。複雜通透的構造環境裏,不同的角落可以觀察不同的景色;空間構成,能使整個項目公共區的層次更為豐富,共生出更為濃烈藝術氣氛。
雪茄吧
∇ 雪茄吧剖麵透視
雪茄吧,彙聚洽談、休閑、閱讀、品酒等功能,這區域以木材穿插構造和粗曠的石材結合,強有力的視覺符號把這裏塑造成特征明顯的區域。設計語言略顯放鬆,同時也讓整個餐廳的使用功能更為豐富。
盥洗室
修飾原建築結構的基礎上,以簡潔明快的手法處理。圓型洗手柱盤、懸飄置物台、潔具用品都是經過充分溝通協調後所設計。更多的是考慮功能需求以及規範化管理、日常維護。
看似著墨不多卻凝聚了團隊大量的心血。
華燈初上
每當夜幕低垂,
窗外映射外灘與陸家嘴的燈光,
繁華盡收眼底,
這是餐廳中最重要的視覺體驗。
在燈光設計方麵的考量,室內燈光設計為柔和均勻的照明,在滿足就餐需求的同時,其他點綴光線必須克製,不能過多影響室外景色的呈現。達至室內外環境互補延伸。
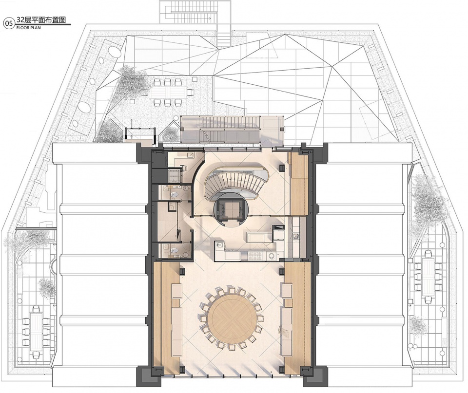
∇ 平麵圖
項目信息
項目名稱 | 帝景 · 晶采軒
項目地址 | 中國 上海外灘
項目麵積 | 2260㎡
項目業主 | 上海景帝餐飲管理有限公司
總設計師 | 趙 睿
設計管理 | 劉方圓
技術總工 | 李龍君
物料管理 | 何靜韻
照明設計 | PROL光石
照明設計 | PROL光石
設計團隊 | 李龍君 黃誌彬 淩觀偉 瞿群英 繆文俊 梁傑榮 羅黃敬洋
結構設計 | 容躍輝
傳媒團隊 | 伍啟雕 何靜韻 曲宏林 歐陽元勳
藝術藏家 | 車宣橋
項目攝影 | 伍啟雕 張恒 TOPIA圖派攝影
主要材料 | 貴州米黃石 橡木 質感漆
藝術作品 | 劉韡作品《九霄》 / 車宣橋作品 《放逐》/ 龔劍作品《女神》/ 吳山專作品《仰望這五個雞蛋炒十六個西紅柿的天空》/ 梁曼琪作品《移動方塊》/ 陳英作品《被造型》/ 楊深作品《遊園驚夢》/ 唐永祥作品《像三個分開的半身背影》/ 崔潔作品《大連電信樞紐大廈》/ 提爾曼斯Wolfgang Tillmans作品《Playing card》/ 汪建偉作品《寒武紀2號》 / 陳麗同作品《臍》/ 張如怡作品《暗色之物5》/ 關小作品《池塘》/ 尉洪磊作品《I#7 2019》/ 王思順作品《銅啟示》等,20餘件藝術家原作藝術品































































