Dark and Light Restaurant是一家意大利餐廳,為平凡的一天帶來一些特別的東西。至於食物,意大利麵和牛排等重口味食物屬於“dark line”。沙拉和甜點等清淡的食物被組織在“light line”中。“LIGHT SPACE”以光與暗之名,試圖表達光與明、輕盈、開放的自然。“DARK SPACE”表現為黑暗、沉重和封閉的空間。它被設計成一個光與暗循環的空間。
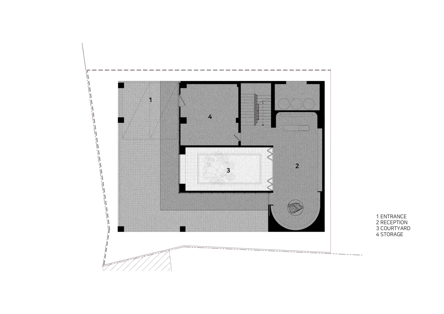
建築的外部有一個架空結構,水平長窗以柱子的形式放置,支撐著一個長方形的體塊。停車後,進入大樓的後麵。入口離停車場很遠,視線一轉,就會出現不同的序列。
走廊的牆壁由規則的網格重複組成,並安裝了燈以通向正門。位於中麵的玻璃塊展現了室內空間的輪廓,引人好奇。在走廊的盡頭,打開門進入浮島。浮島周圍變色的巴裏索爾給人一種仿佛來到了新世界的奇妙感覺。穿過浮島後,得到接待處的回應,然後上二樓。
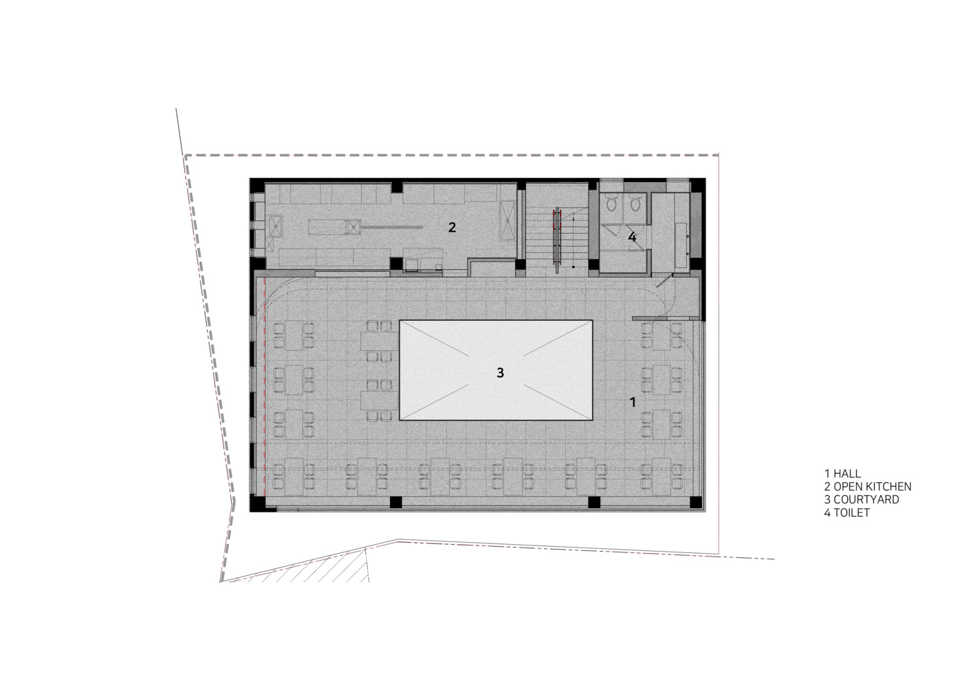
從一樓的過渡空間拾級而上,來到二樓正對庭院的餐廳。一、二層以較深沉的色調為主,中央設置明亮溫馨的院落空間,隨處可見。二層以弧形天花作為平麵和立麵,為單調的空間賦予柔和舒適的空間意象。
除了廚房一側,在邊緣周圍的架子下做了一條小景觀線。無色但又粗糙又柔軟的紋理,大大小小的瓷磚,以及各種裝飾材料和形式的變化確保了空間不乏味。從一樓到屋頂的長長的樓梯上製作了不落的太陽景觀和雕塑。
∇ 一層平麵圖
∇ 二層平麵圖
版權聲明:本站所有文章除投稿授權發布外,其他文字內容均為原創,享有著作權保護,未經許可不得以任何形式進行轉載(包括且不限於:媒體、網站、公眾號等)。所有項目照片/設計圖形版權歸原作者所有。本站部分內容源自網絡公開資源或用戶分享,如若侵犯了原作者的合法權益,可聯係我們進行處理。





































