洋湖叁號餐廳選址洋湖濕地公園,板塊內毗鄰市政公共建築,公園主幹道側以住宅區為主。獨特的區位讓餐廳的定位充滿多種可能性。
Yanghu NO.3 restaurant is located in Ocean Lake Wetland Park, which is adjacent to municipal public buildings and the main road side of the park is dominated by residential areas. The unique location allows the restaurant to be positioned with many possibilities.
項目與謝子龍影像館、李自健美術館、湘江新區城市館距離800M,在板塊區位上,儼然形成“城南三館”之布局。相較城北長沙三館一廳普眾文化的公眾表情,城南的“三館”則具備更多獨特性,從區位構成與地緣屬性出發,項目定位希望通過人文藝術客廳基因的注入,承載“一廳”的屬性,從而讓人產生“三館一廳”的聯想。洋湖叁號由此得名。
The project is 800M away from Xie Zilong Video Museum, Li Zijian Art Museum and Xiangjiang New Area City Hall, which form the layout of “three museums in the south of the city” in terms of the location of the area. Compared with the public expression of the three museums and one hall in Changsha in the north of the city, the “three museums” in the south of the city have more uniqueness. Ocean Lake III is named after its location and geo-attributes, and is intended to carry the attributes of “one hall” through the injection of humanistic and artistic living room genes, thus giving people the association of “three halls and one hall”.
乘 | 對峙與化物 |
淩空的高架,割裂水景的橋體,
從規避不利因素轉為接納駕馭,
物物相生,則導向新的生成元。
Substance Coming From Heart
建築緊鄰高架橋,橋體的高度與橋墩體積對建築形成壓迫感;另外,建築本身砌築的非邏輯性,讓它更像一個整塊的構件,缺乏建造之美;且建築北側利好的濕地湖景,也因公園景觀橋劃斷而產生割裂性。
The building is adjacent to the viaduct, and the height of the bridge and the volume of the piers create a sense of pressure on the building. In addition, the masonry of the building itself is illogical, making it more like a whole block, lacking the beauty of construction. The favorable wetland lake view on the north side of the building is also fragmented by the park landscape bridge delineation.
麵對上述不利因素,如何尋找一條軸線,讓場所與周邊環境均圍繞其去組織,引導人們去感知場所的統一性,尋找一個思想本源,洞察一個意圖,是我們設計時思考的主要問題。
經考慮,我們嚐試依據乘物遊心的哲學思想,將避讓轉為吸納,以駕馭自然現實條件有機活化為方向,對建築、景觀室內,進行了物化融合的實踐。
Faced with the above disadvantages, how to find an axis around which the place and the surrounding environment can be organized, to guide people to perceive the unity of the place, to find an origin of thought, to gain insight into an intention, this is the main problem we think about when designing.
After consideration, we tried to base on the philosophical idea of traveling through things to the heart. Therefore, we turned the avoidance into absorption, and took the direction of harnessing the organic activation of natural reality conditions, and carried out the practice of physical integration of architecture and landscape interior.
首先在形體上,通過外立麵改造實現建築的整體性再造,並在體量與比例關係上與高架橋相協調統一。其次,將建築入口退隱於建築背側,通過入口門頭的體塊搭接、扭轉切割、形成支撐的力量感,以建立與高架橋相和諧的建築天際線,實現場所秩序的穩定一致性。
First of all, in terms of form, the building is recreated as a whole through façade renovation, and is harmonized with the viaduct in terms of volume and proportional relationship. Secondly, the entrance of the building is relegated to the back side of the building, and through the block lap of the entrance doorway, twisting and cutting, forming a sense of supporting power, in order to establish a harmonious building skyline with the viaduct and achieve a stable consistency of the order of the place.
院子餐飲 Ver3.0
自然進化的規律驅動設計迭代
Ver1.0 鄉野粗獷自然回歸
Ver2.0 精致庭院園林造景
Ver3.0 現代人文 / 國際藝術 / 城市桃源
Substance Coming From Heart
項目業態可歸類於院子餐飲,該業態是基於人們由城市向自然轉場而催生。目前主流的場景呈現是鄉野原生和雅致庭院兩類,均建立在主題場景營造的邏輯之上。
The project business can be categorized as courtyard dining, which is spawned based on people’s transition from the city to nature. The current mainstream scene presentation is two types of countryside native and elegant courtyard, both built on the logic of thematic scene creation.
而院子與房子的關係建立,其目標為聯結人與建築的情感。除了建築與景觀、室內的統一設計感,更需要注入有機活性。我們的目的,是將影響擴展到平麵構圖中的每一部分的造型體係中,由此帶來精神的自由,而非固化的造景所傳達的焦點透視與主題定義。
And the relationship between the courtyard and the house is established with the goal of linking the emotions of people and architecture. In addition to the unified design sense of architecture with landscape and interior, it is necessary to inject organic activity. Our aim is to extend the influence into the modeling system of each part of the plan composition, thus bringing freedom of spirit rather than the focal perspective and thematic definition conveyed by the solidified landscaping.
因此,前坪景觀改造上,結合公園棧道形體,以弧線階梯式的景觀序列遞進,與背倚的高架橋線條構成有序場域,並通過地材鋪裝引導公園的遊人、餐廳消費者。當人們遊弋於建築外圍時,能感受理性秩序構建下建築的真實感,觸及漸近的感知——從城市主幹道切換到都市桃源的一種隱逸。
Therefore, the landscape transformation of the front lawn, combined with the shape of the park trestle, is a progressive landscape sequence of curved steps, with the backing of the viaduct line to form an orderly field, and through the ground material pavement to guide the park visitors, restaurant consumers. When people cruise around the periphery of the building, they can feel the real sense of the building under the construction of rational order and touch the perception of gradual approach – a kind of seclusion switching from the main road of the city to the urban peachland.
在地文化的相生相成
中原儒學南下滲入荊楚倔強,
孕育出在地文化的血誠明強,
以及人們的思維方式,價值取向。
Substance Coming From Heart
空間與人們內心能否引起共鳴,是衡量設計價值的標準。我們嚐試通過在地文化的轉化,依據人們審美心理機製的遺傳,實現對湖湘精神場所化的一次落地實踐。
Whether the space can resonate with people’s heart is the criterion to measure the value of the design. We try to realize a ground practice of Hunan spirit through the transformation of local culture and the inheritance of people’s aesthetic psychological mechanism.
建築緊鄰生長多年的香樟,是城市變遷的守望者,帶來外牆拓改的難度,我們試圖搭建空間與自然相生相成的秩序,以建築外凸的獨立不羈,呼應荊楚倔強的力度感;以局部內凹懷抱香樟的遁世不悶,體現明強的真誠以待,由此釋放出生活戲劇中可以產生的情感激蕩,觀者會以各種各樣的情感,喚起文明程度下對所看,所感受,所喜歡一些東西的回憶。
The building is adjacent to the long-growing balsam fir, which is a watcher of urban changes and brings difficulty in the expansion of the outer wall. We try to build an order of space and nature, and echo the strong sense of Jingchu with the independent and unrestrained outward projection of the building. We embrace the balsam camphor with a partial inner concavity to embody the sincerity of Ming Qiang, thus releasing the emotional stirring that can be generated in the drama of life, and the viewer will evoke the memories of something seen, felt and liked in the degree of civilization with various emotions.
日光下建築呈現出靜默與樸素。體塊的組合在光影下透出本真,外觀並非耀眼奪目,但能擺脫掉裝飾事物帶來的表皮緊縮感。人與建築於是循入自然,納入一草一木的真實;粗糲的水洗石表皮,實現了建築與高架橋的輪廓、肌理的一致性,進而產生思想的一致性。
Under the sunlight, the architecture presents silence and simplicity. The combination of blocks reveals its true nature under light and shadow, and its appearance is not dazzling, but it can shake off the skin tightening feeling brought about by decorative objects.
People and buildings then follow nature and incorporate the reality of every plant and tree; The rough washed stone skin achieves consistency in the contour and texture of the building and the viaduct, resulting in consistency in thought.
物 | 物以載道 |
物以載道,是中國器物之美的內核;
以器物擬空間,以匠心融文化。
Substance Coming From Heart
我們的先民用禮器超越物質,傳遞思想與儀式之寄托,器物的器型、器質所承載的,是自然界的結構留在民族精神上的文化印記。而今,我們以器物擬空間,也是器物再造的一種煥新。設計從外圍景觀的弧線,到建築外觀的粗糲,再到內部頂麵的碗口弧切麵、勺型建構搭設,均是基於器物幹練精簡的高度概括。
The material is the core of the beauty of Chinese artifacts. Our ancestors used ritual objects to transcend materiality and to convey ideas and rituals of trust, which are carried by the shape and quality of the objects, which are cultural imprints left on the national spirit by the structure of nature. Nowadays, we use the artifacts to propose space, which is also a kind of renewal of artifacts re-creation. From the curved lines of the outer landscape, to the coarse exterior of the building, to the bowl-shaped curved surface of the interior roof and the spoon shape construction, the design is based on a high summary of the dryness and simplicity of the artifacts.
造物的三感一體
器物精神,首先是設計感;
其次,是器物再造的藝術感;
更深層,是物以載道的文化感。
Substance Coming From Heart
黑山石、波浪紋不鏽鋼、洗石子的材質應用,則是通過粗糲質感體現手作匠心,以及器物曆久的溫度感 —— 如同不同菜品需對應不同形體的容器變化,在光線變化下產生的體積與明暗關係變化。而人與空間的關係,也一如同手與器物的關係,因相生相成而變得真實,從而產生文化認同感。
The material application of black mountain stone, wavy stainless steel and washed stone is to reflect the craftsmanship through the coarse texture, as well as the sense of temperature of the artifacts over time, and the humanistic value behind. We call this the “three senses of integration” of spatial artifacts: the design sense of spatial artifacts, the artistic sense of installation and reconstruction, and the cultural sense of the way of things.
容器的空靜之境
展廳如同放空的容器,
為藝術實踐提供可能,
其存在的意義,
是讓空間裏的物件與內容,
去決定空間的屬性與意圖。
Substance Coming From Heart
二樓展廳位置,有著觀賞公園景觀最好的視野,按常規坪效取向,應定位為豪華包廂,經與投資方溝通,雙方一致認同將該區域定位為藝術展廳的設想。這個空間,也是洋湖叁號基於城市藝術展廳的開放性,為人文交互提供了萬物可乘的小小遊心宇宙,它如同放空的容器,為藝術實踐提供可能,其存在的意義,是讓空間裏的物件與內容,去決定空間的屬性與意圖,並與城南的“新三館”,在藝術地緣屬性上相一致。
The location of the exhibition hall on the second floor has the best view of the park landscape, and should be positioned as a luxury box according to the conventional ping effect orientation. After communication with the investor, both parties agreed on the idea of positioning this area as an art exhibition hall. This space is also Ocean Lake III based on the openness of the urban art exhibition hall, providing a small swimming heart universe where everything can ride for humanistic interaction, it is like an empty container, providing the possibility of artistic practice, the meaning of its existence. This is to let the objects and contents in the space determine the properties and intentions of the space, and is in line with the “New Three Galleries” in the south of the city in terms of artistic geopolitical properties.
展廳中央的天井,器物形體敦實,與天花碗型外擴出向臨窗推進的張力,直至聯結室外公園景觀,自然就此納入到室內,如呼吸吐納,力度低緩深沉,令空間充滿貫穿的力量感。
The patio in the center of the exhibition hall is solid in form, and the bowl shape of the ceiling extends outward to the window, until it is connected to the outdoor landscape and naturally incorporated into the interior.
遊 | 逍遙天地間 |
高遠可望,平遠可行,深遠可遊。
Substance Coming From Heart
樓梯、山石、潺潺水鏡,與室外景觀形成現代的高遠山水畫,從而實現自然氣象的上行與吐納。開放式餐區頂麵節製的削減裝飾麵,銜接采光板平遠漸行,消融室內外界限,創造出一個法則大同的遊心空間。
Stairs, rocks, gurgling water mirrors, and outdoor landscapes form a modern and distant landscape painting, thereby achieving the upward and inward flow of natural weather. The top surface of the open dining area is moderately trimmed with decorative surfaces, connecting the horizontal and vertical lines of the daylighting board, melting the boundaries of the interior and exterior, creating a recreational space of great harmony.
乘物以遊心,逍遙天地間。貫穿建築的樓梯間采用大麵積落地玻璃,與室外景觀形成現代的高遠山水,從而實現自然氣象的上行。天窗的開口,讓空間如同內外壓強平衡的容器,感應、順應周邊環境,釋放出恰到好處的應力,加強了空間與環境的真實感。
The exhibition hall is a place where nature is incorporated into the interior. The stairwell running through the building is made of large floor-to-ceiling glass, which forms a modern lofty landscape with the outdoor landscape, thus realizing the upward movement of the natural weather. The openings of the skylights allow the space to be like a container with balanced internal and external pressure, sensing and responding to the surrounding environment, releasing just the right amount of stress and strengthening the real sense of space and environment.
虛己以遊世
以虛靜之心照物,
空間與環境物化互融,
於是有了真實感。
Substance Coming From Heart
天窗上的裝置構件,是高架橋的支撐與力度感的器物化表達,其思考是將環境外物對空間的壓迫,轉化為強調其參與性的存在,場所由此即產生人與環境主體的共振,這也是對“乘物遊心”的哲學思辨。
The installation components on the skylight are an instrumental expression of the support and sense of strength of the viaduct. The thinking is to transform the oppression of the space by the external objects of the environment into a presence that emphasizes its participatory nature. The place thus creates a resonance between human and environmental subjects, which is also a philosophical reflection on “traveling through things to the heart”.
心 | 遊心於物之初 |
容自然萬象之物,
可與天地精神往來,
遊於世,遊於道,遊於心。
Substance Coming From Heart
包廂層的廊道深遠,通過立麵與天花的局部打破,以容自然。光線移動、枝葉拂動,讓主觀情思與客觀物象就此相融,廊道水洗石牆麵由光線產生均質的器物質感,可容萬象之物,人們由此將心靈安頓其中。
The corridor on the box level is far-reaching, and is partially broken by the façade and ceiling to accommodate nature. The light moves and the branches and leaves move. The corridor’s washed stone walls produce a homogeneous texture of artifacts by light, allowing people to settle their minds in them – to travel in the world, to travel in the Tao, and to travel in the heart.
萬物靜觀皆自得,器因光觸而合鳴。
包廂以流觴肌理的石材寫意濕地自然;以體塊開合大采光麵消融空間內外,以創造“獨與天地精神往來”的遊心境界。湖畔草木的物象與聲形,如大音希聲悠遠低潛,如大象無形與心隨行。
Everything is contented in contemplation, and objects resonate with the touch of light.The box is made of flowing glass texture stone to depict the nature of the wetland; Open and close the large lighting surface with blocks to melt the inside and outside of the space, creating a wandering realm of “interacting with the spirit of heaven and earth alone”. The images and sounds of the vegetation along the lake are like great music has the faintest notes, which is far away and low, like great form Is beyond shape walking with their hearts.
洋湖叁號的造物思想,建立在對自然意向的捕捉與地緣文化的設計轉化上,溯源“物以載道”的哲學思想,以空間有形的容器為載體,通過人文語言傳達湖湘精神的趣味性與思想境界,以與當下的時代風格、審美意向交互出新的審美愉悅,為人們提供一個可承載、暢遊內心山水的世界。
Yanghu NO.3’s idea of creation is based on capturing the intention of nature and transforming the design of geo-culture, tracing the philosophical idea of “things to carry the way” and taking the tangible container of space as the carrier. Through the humanistic language, the interesting and ideological realm of Hunan spirit is conveyed, so as to interact with the current style and aesthetic intention of the times, providing people with a world that can carry and swim in the inner landscape.
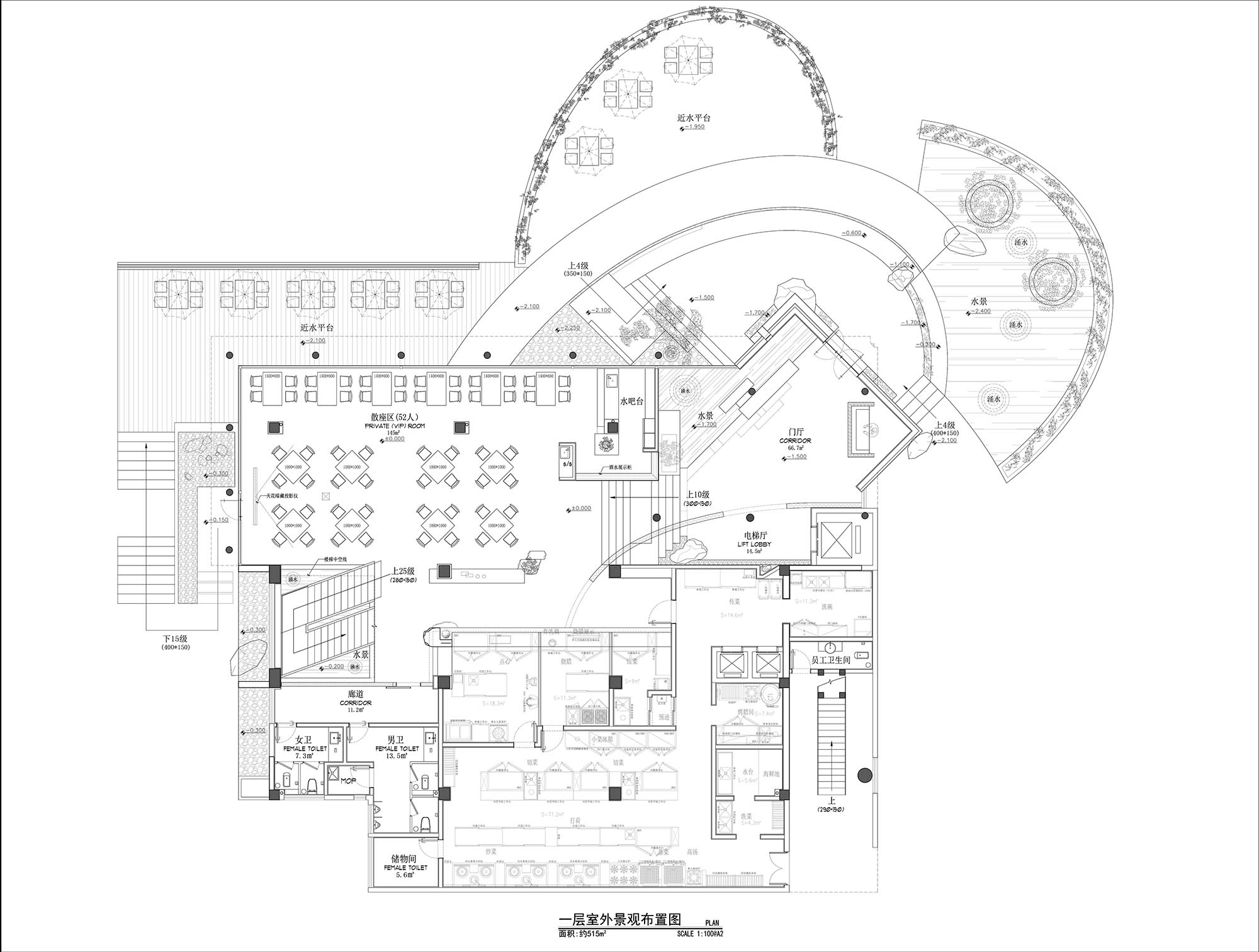
∇ 一層平麵圖
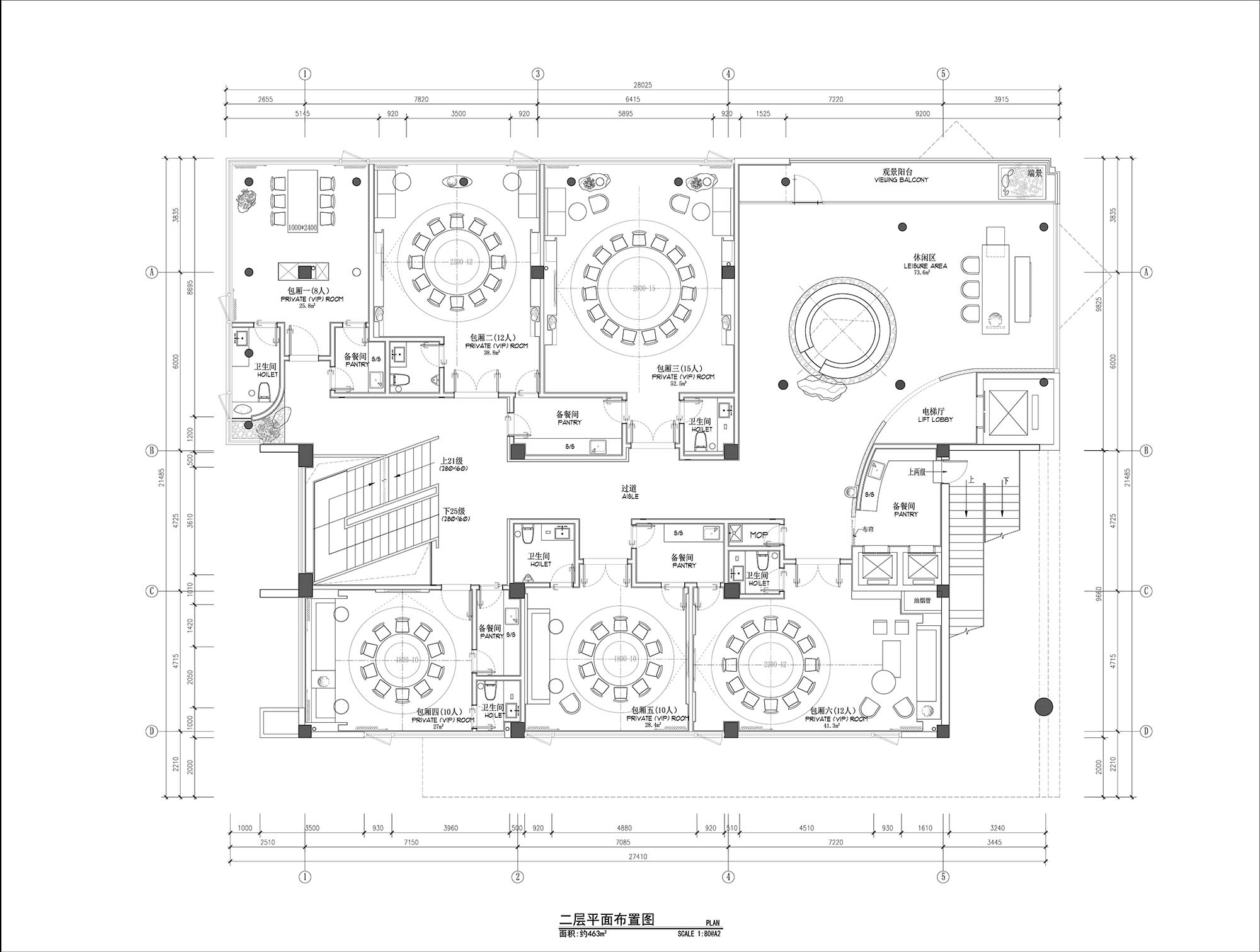
∇ 二層平麵圖
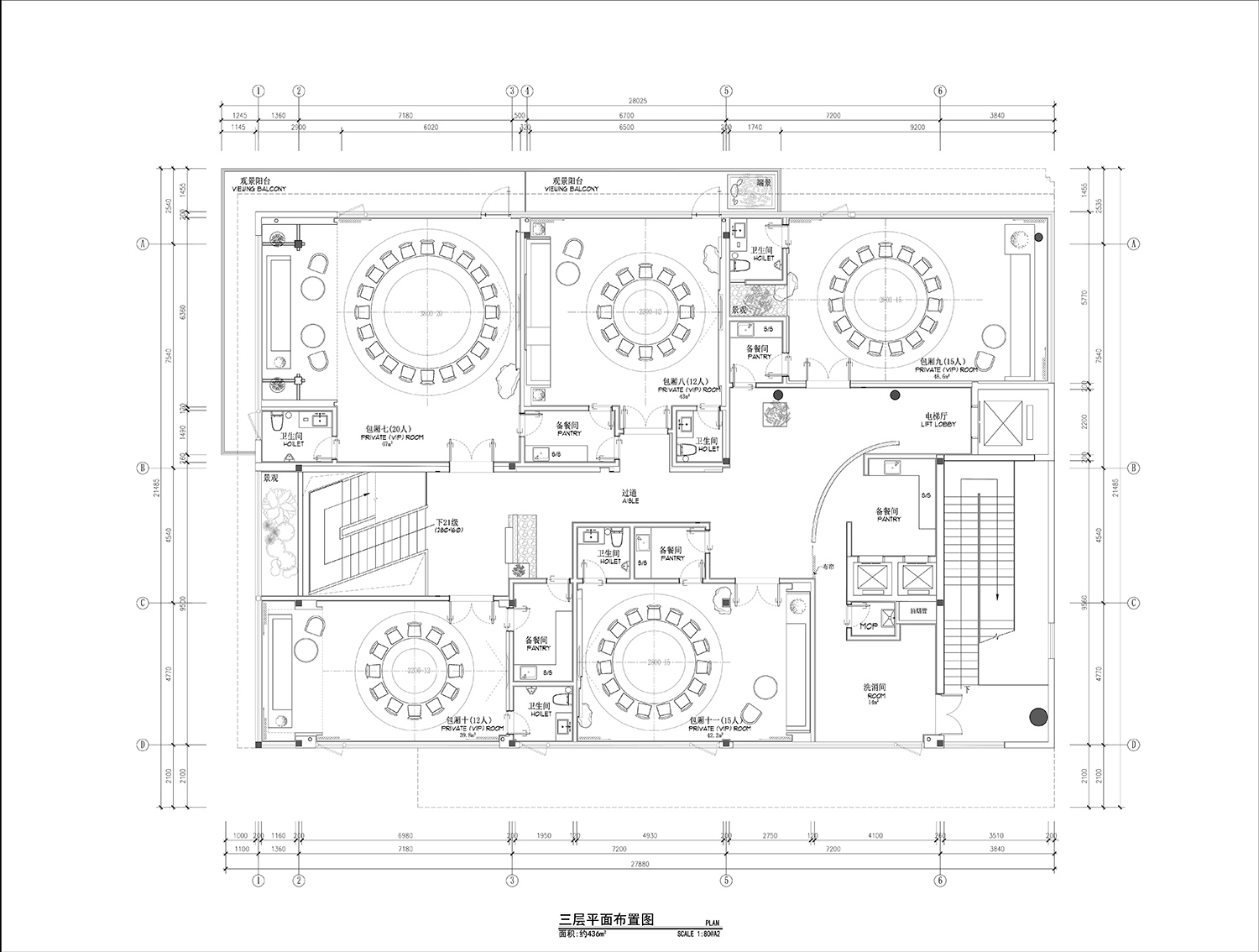
∇ 三層平麵圖
項目信息
項目名稱 | 洋湖叁號·湖畔餐廳
Project Name | Yanghu No.3 Lakeside Restaurant
設計範圍 | 室內空間 外觀設計 景觀設計
Scope of design | Architectural Interior landscape design
項目地址 | 湖南長沙嶽麓區洋湖街道洋湖路洋湖濕地景區南入口
Location | South Entrance of Yanghu Wetland Scenic Area, Yanghu Road, Yanghu Street, Yuelu District, Changsha, Hunan Province
項目麵積 | 1260㎡
Area | 1260 ㎡
設計機構 | 水木言空間設計(上海)有限公司
Design Company | SMY Design Studio
主創設計 | 梁寧健
Chief Designer | Liang Ningjian
策劃統籌 | 金雪鵬
Planning | Jin Xuepeng
設計日期 | 2021年6月
Design time | June 2021
完工時間 | 2023年1月
Completion time | January 2023
主要材料 | 洗石子、木紋金屬板、PC板、灰色亂紋不鏽鋼、黑山石、福建青、海洋灰
Main materials | Stone washing, wood grain metal plate, PC plate, gray random grain stainless steel, Heishan stone, Fujianqing,Marine grey
業主名稱 | 洋湖三號餐飲管理有限公司
Owner |Yanghu No.3 Catering Management Co., Ltd.
















































