本項目坐落於蘇州太湖邊的光福鎮,項目周邊被各個年代的矮舊村民自建房包圍,西南麵與太湖隻隔一路,視野開闊,交通便利。場地位於蘇州城西28公裏的太湖之濱。東與藏書鎮接壤,西濱太湖,南同胥口鎮毗連,北接東渚,距離太湖度假區僅10分鍾車程。
The project is located in Guangfu Town by Tai Lake in Suzhou. The project is surrounded by villagers’ old self-built houses of various ages. It is only one road away from Tai Lake in the southwest, with a wide view and convenient transportation. The site is located on the shore of Tai Lake, 28 kilometers west of Suzhou. It borders Zangshu Town in the east, Tai Lake in the west, Xukou Town in the south, and Dongzhu in the north. It is only 10 minutes’ drive from Tai Lake Resort.
∇ 湖邊遠看view from lake@平介設計
原建築是一戶帶有院子的磚混結構三層自建房和一棟一層的木構加建,原業主為了防潮在入戶進門後有一個架起的庭院平台,但是由於使用年限較久和既有建築原本建設的問題,院內加建的單層露台的柱子已經產生了很大的裂縫,基於結構安全問題我們一致認為要將庭院加建部分和一層木構的輔房拆除並重建。
The original buildings are a three-story brick structure self-built house with a yard and a one-story wooden addition. In order to prevent moisture, the original owner built a raised courtyard platform after entering the house. However, due to the long service life and the original construction problems of the existing buildings, the columns of the additional single-story terrace in the courtyard have produced large cracks. Based on the structural safety issues, we agreed that the additional part of the courtyard and the one-story wooden auxiliary building should be demolished and reconstructed.
∇ 建築原狀original building@平介設計
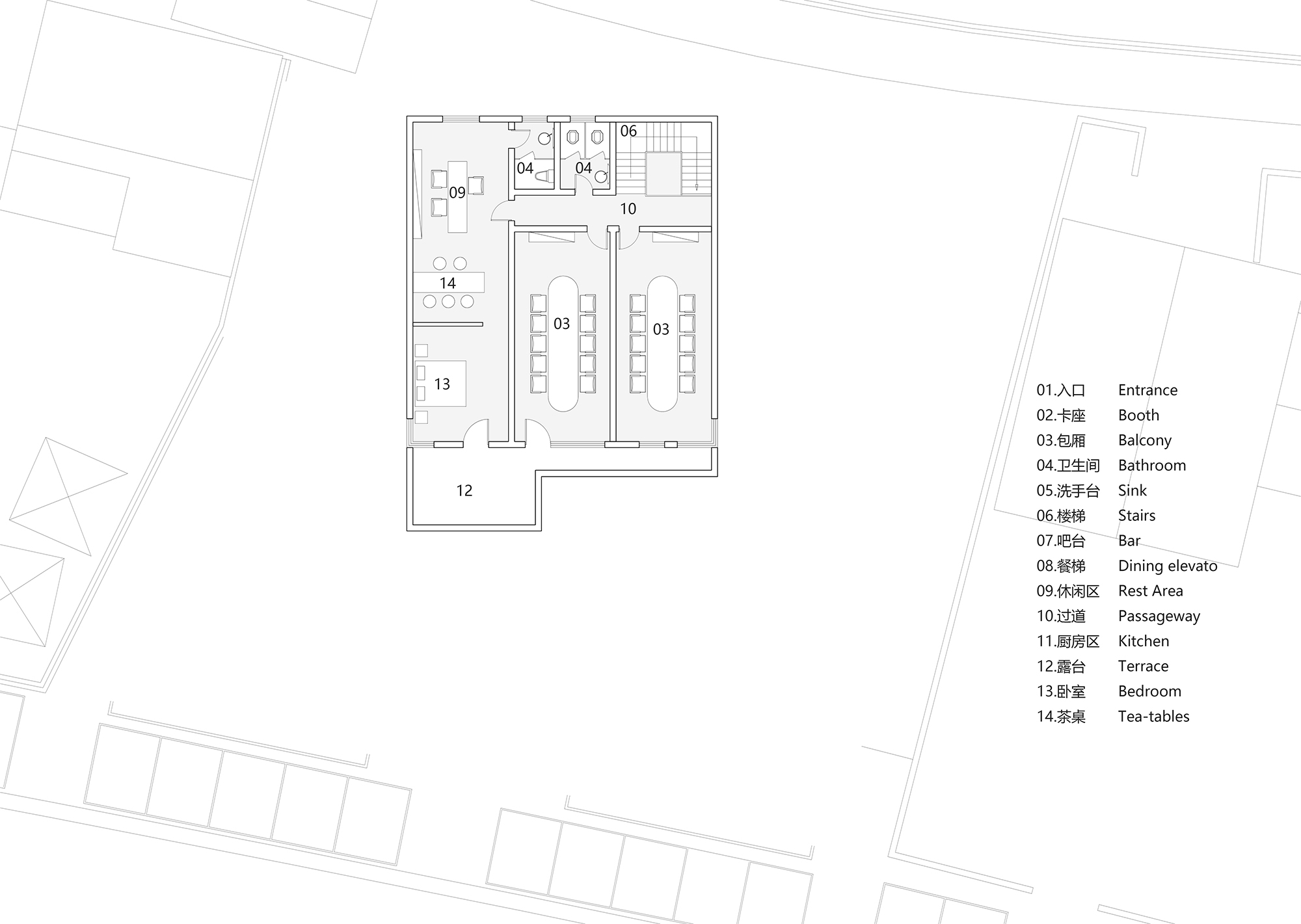
項目的的業主,是光福鎮本地人,從小在這裏長大,她租下了這棟湖邊的自建房準備進行餐飲經營。我們在和她設計交流的時候,她提出想給自己預留一片私人空間能在這裏辦公和私人接待一些朋友。因此我們將3層的一個開間作為了他的私人辦公和住宿區域,同時3層剩下的開間劃分出來的另外兩個房間和衛生間也方便她後續在這做一些相對私密的接待。
The owner of the project is a native of Guangfu Town. She grew up here, and she rented this self-built house by the lake for a catering business. When we were communicating with her about the design, she proposed to reserve a private space for herself to work and receive some friends in private. Thus, we used a bay on the 3rd floor as her private office and accommodation area. At the same time, the other two rooms and bathrooms divided by the remaining bays on the 3rd floor are also convenient for her to do some relatively private reception here.
∇ 湖邊鳥瞰view from lake@平介設計
∇ 湖邊遠看view from lake@平介設計
在設計之初,讓建築與場地結合自然生長或特立獨行於場地中,是顯而易見的兩條不同的道路,但無論是甲方的訴求還是現有場地條件的“宿命感”都在無時無刻的提醒我們這一次的主題是“看”。怎麼樣來“看”太湖是這個項目的設計目標,我們希望來到這裏的客人在進入場域後在不同的位置都能看到太湖,用豐富的層級關係來提升人們觀賞太湖時的豐富性,吸引人們環遊到建築裏的不同空間。
At the beginning of the design, it is obvious that there are two different ways to allow the building to grow naturally with the site or to stand alone on the site. However, whether it is Party A’s demands or the “sense of fate” of the existing site conditions, they remind us all the time that the theme is “seeing”. How to “see” Tai Lake is the design goal of this project. We hope that guests who come here can see Tai Lake from different positions after entering the field. We use rich hierarchical relationships to enhance the richness of people watching Tai Lake, attracting people to travel around to different spaces in the building.
∇ 湖邊鳥瞰view from lake@平介設計
∇ 入口視角view from lake@平介設計
∇ 入口視角view from lake@平介設計
在與甲方的多輪討論和想法碰撞下,我們最終確定了以層層堆疊的平台來為這個作為建築改造的概念,旨在構建不同層高的觀湖體驗。項目在太湖邊,加之蘇州下雨天相對較多,建設初期我們填補了之前低於環湖路的院子區域,使之前低窪不平的庭院得以擴大形成比較舒適平坦的外擺庭院,並且使得建築一層整體和庭院都略高於路麵。通過對既有建築的結構和拆改的梳理,建築設計通過體塊關係來堆疊塑造,最後形成層層退台的形式關係,院子北側的下沉空間可以用來舉辦室外觀演活動和聚會。為了看向湖麵時能有更好的視野,在麵向湖麵的建築立麵我們做了比較大的矩形開窗,能夠將湖麵盡量多的呈現在來往客人的眼中。
After multiple rounds of discussions and idea collisions with Party A, we finally decided on the concept of renovating this building with layers of platforms, aiming to create a lake-viewing experience of different heights. The project is by Tai Lake, and there are relatively many rainy days in Suzhou. In the early stage of construction, we filled the courtyard area that was lower than Huanhu Road before, so that the previous low-lying and uneven courtyard could be expanded to form a relatively comfortable and flat outdoor courtyard, and the whole of the first floor of the building and the courtyard were slightly higher than the road surface. Through sorting out the structure and demolition of the existing buildings, the architectural design is stacked and shaped through the relationship among blocks, and finally forms a formal relationship of stepping back and forth. The sunken space on the north side of the courtyard can be used to hold outdoor performances and parties. In order to have a better view when looking at the lake, we made relatively large rectangular windows on the building facade facing the lake, so as to present the lake as much as possible in the eyes of the passing guests.
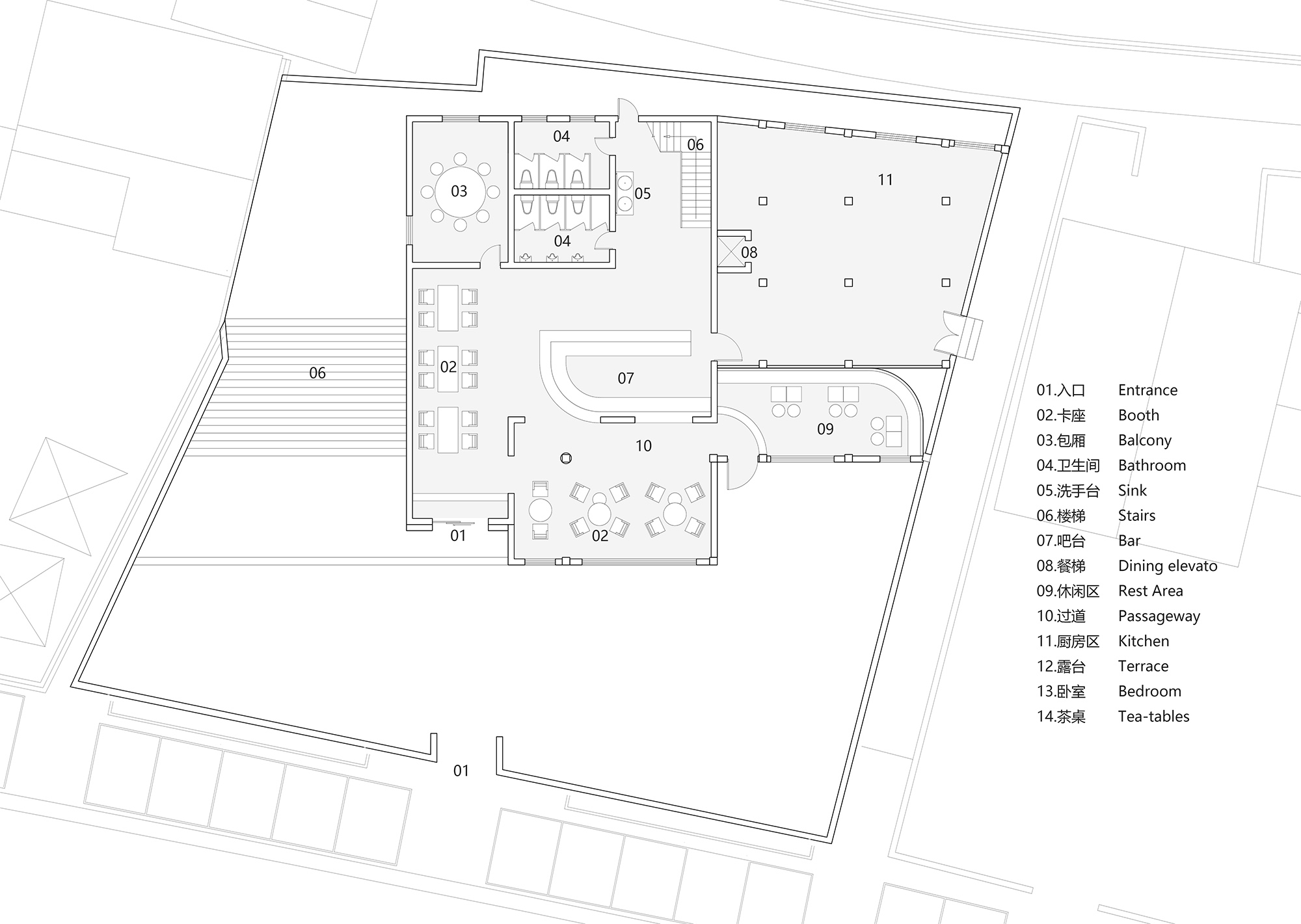
原本的自建房住宅空間改成商業用途的公共空間會有一些弊端,像是空間都比較零碎並且尺度都是比較小、隔牆比較多、層高也比較低矮等情況。原本一層的客廳堂屋我們將其改造為主要的餐吧大堂和大廳,作為建築中尺度最大的空間,置入了吧台和環繞吧台的不同的卡座和散座。
There will be some disadvantages when the original self-built residential space is converted into a public space for commercial use, such as fragmentary space and small scale, more partition walls, low floor height and so on. We renovated the original living room on the first floor into the main dining room and hall. As the largest space in the building, the bar counter and different booths and scattered seats surrounding the bar counter are placed.
得益於將原窗戶和門都拆除使得舊建築和新加建的部分更加連貫使用麵積也擴大了許多,我們將吧台依附於新舊交接的牆體置入空間當中,這樣整個大廳就能以咖啡吧台為核心連接和輻射整個空間,較長的吧台在空間交接的地方用圓弧的方式來引導人們過渡到空間的另一端,右側新建的副樓則用做店主平時接待一些私人朋友的區域,空間整體以幹淨整潔的白色調為主,家具上點綴些許色彩,室內吊頂和樓梯都用了層疊弧形作為基礎語言的構件包裹空間,亦如湖水推到岸邊濺起水花時的回流碰撞。
Thanks to the demolition of the original windows and doors, the old building and the new added part are more coherent and the usable area has been expanded a lot. We put the bar counter into the space by attaching the old and new walls, so that the whole hall can connect and radiate the whole space with the coffee bar as the core. The longer bar uses a circular arc at the junction of spaces to guide people to the other end of the space. The new built auxiliary building on the right is used as an area where the owner usually receives some personal friends. The space as a whole is dominated by clean and tidy white tones, and some colors are dotted on the furniture. The indoor ceiling and stairs use stacked arcs as the basic language components to wrap the space, just like the backflow collision when the lake water is pushed to the shore and splashes.
∇ 一層空間1st floor@平介設計
∇ 一層空間1st floor@平介設計
∇ 一層空間1st floor@平介設計
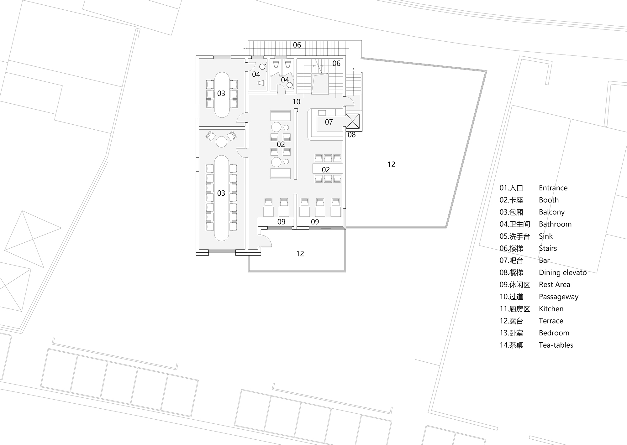
二層原本是幾間臥室和一間起居室,隔牆比較多空間尺度也比一層的更小,我們選擇將一個比較大的主臥和起居室連通用來做客座區,其餘的臥室則作為包廂使用,我們在麵向湖麵的方向都做了大開窗讓上到二層的客人都能有突然觀賞到太湖時豁然開朗的感受。
Thanks to the demolition of the original windows and doors, the old building and the new added part are more coherent and the usable area has been expanded a lot. We put the bar counter into the space by attaching the old and new walls, so that the whole hall can connect and radiate the whole space with the coffee bar as the core. The longer bar uses a circular arc at the junction of spaces to guide people to the other end of the space. The new built auxiliary building on the right is used as an area where the owner usually receives some personal friends. The space as a whole is dominated by clean and tidy white tones, and some colors are dotted on the furniture. The indoor ceiling and stairs use stacked arcs as the basic language components to wrap the space, just like the backflow collision when the lake water is pushed to the shore and splashes.
∇ 二層空間2nd floor@平介設計
∇ 二層窗景2nd floor window view@平介設計
∇ 樓梯間 stair case@平介設計
長時間的疫情導致人們都想逃離城市,尋找一片心靈棲息的綠洲。項目以觀湖為媒介,將人們都牽引到此,來增強人與人之間的互動,聆聽彼此,創造更多的可能性。遠離城市,人們漫步前行的街道與矗立在此的建築一同構成了令人向往的生活,我們希望每個到此的顧客都能收獲到屬於自己的那一份寧靜與安逸。
The long-term epidemic has made people want to escape the city and look for an oasis of spiritual habitat. The project uses the lake as a medium to draw people here to enhance the interaction between people, listen to each other, and create more possibilities. Far away from the city, the streets where people stroll and the buildings standing here constitute a desirable life. We hope that every customer who comes here can reap their own peace and comfort.
∇ 立麵 facade @平介設計
∇ 屋頂航拍 roof plan@平介設計
∇ 模型照片 model@平介設計
∇ 軸測圖
∇ 一層平麵圖
∇ 二層平麵圖
∇ 三層平麵圖
項目信息
項目名稱:環湖公路邊的度假餐吧
設計單位:平介設計
公司網站:https://www.parallect-design.com
聯係郵箱:info@parallect-design.com
項目類型:商業建築
建築麵積:686㎡
項目設計&完成年份:2022;2023
設計團隊:李文靖,王海東,吳斯,楊楠,孔祥鵬
結構/水電設計:上海衡泰建築設計谘詢有限公司
攝影師:顏社視覺,王一翔
委托方:絕色·Juse café·restaurant
項目地點:光福鎮環太湖大道坎上村8組26號
Project name: A Holiday Cafeteria by the Taihu Lake Ring Road
Design: Parallect Design
Website: https://www.parallect-design.com
Contact e-mail: info@parallect-design.com
Project type: Commercial building
Gross built area: 686 ㎡
Design year & Completion year: 2022; 2023
Design team: Wenjing Li, Haidong Wang, Si Wu, Nan Yang, Xiangpeng Kong
Structural/hydraulic design: Shanghai Hengtai Architectural Design Consulting Co., Ltd.
Photography: Yanshe Vision, Yixiang Wang
Client: Juse café·restaurant
Project location: No. 26, Group 8, Kanshang Village, Huantaihu Avenue, Guangfu Town






























