位於北京西單婚慶大廈內,鋪位麵積為150㎡,這是一個冒菜快餐品牌。區別於傳統餐廳,業主引入曆時開發了一年多的機械設備以實現自動化無人廚房。
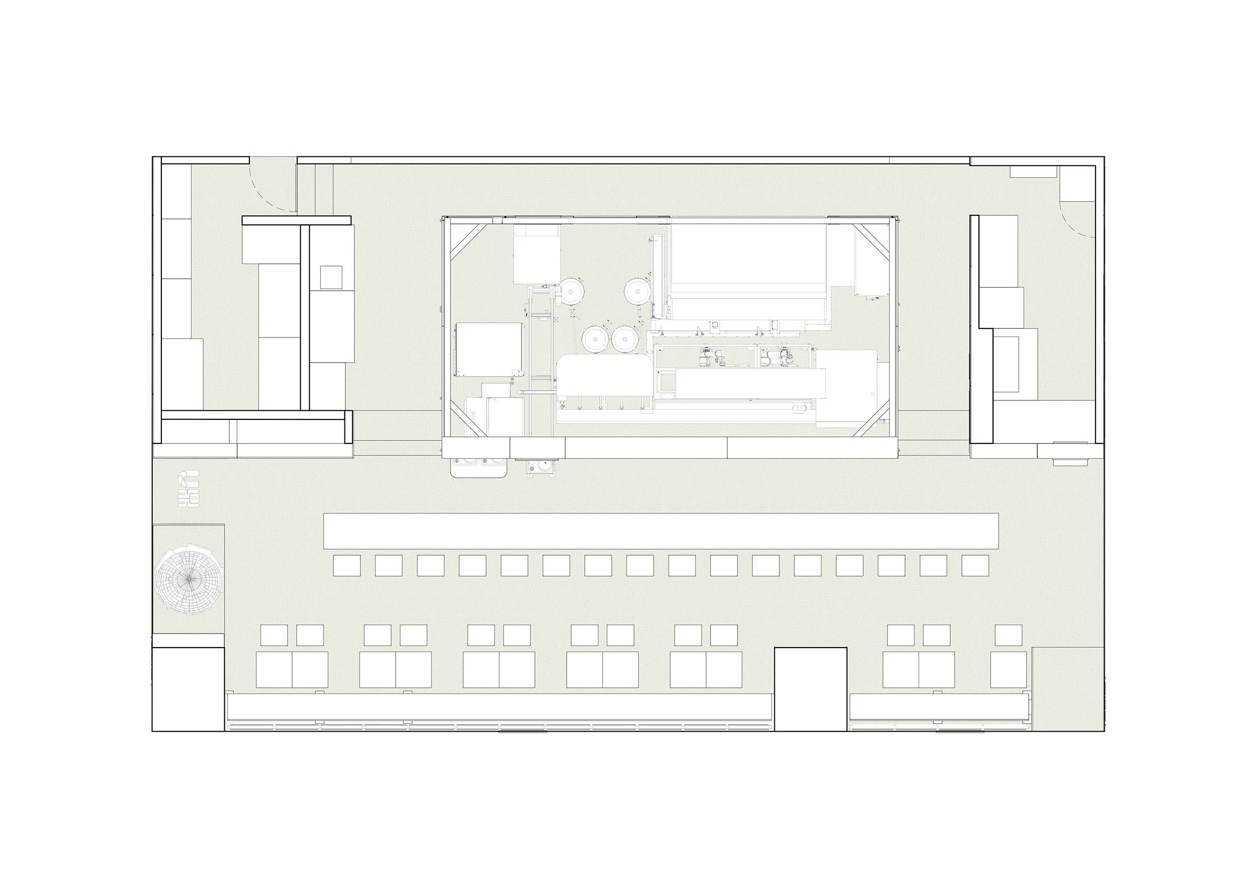
AND lab 納間建築以未來太空艙為假想,打造模組化組裝的食堂。整個“食堂”可視作一個由白色鋼板及紅色玻璃組成的盒子穿插入商場中。盒子中的後廚及儲藏部分也設計成像是個灰色的設備盒於白色盒子之中。通過大麵積的玻璃能看到灰色盒子裏的機械手臂設備的冒菜製作過程。冒菜的製作進度也會顯示在正麵。製作完成的冒菜也會自動通過屏幕叫號取餐。牆麵也設計出壁龕放置待取的餐盤。在灰色設備的一段是回餐口,另一端則是備餐與外賣口,其家具也是設計為與灰色設備牆為一體。餐廳中間設計了一個長達11米的吊的框式的吧台,將取餐與就餐流線分割開來。考慮保持“食堂盒”的整體形象,視覺正麵及通風的需要,在正麵AND lab 納間建築設計了隱約能看得見餐廳內部的漸變的紅色玻璃百葉立麵。
前麵提到模組化組裝的概念。除了外立麵的白色編號鋼板及玻璃,這個結合卡座的玻璃百葉立麵係統是AND lab 納間建築反複測試結合不同鋁型材與玻璃配件創造出玻璃百葉係統。其中的玻璃采用特製的由無色漸變成紅色的長虹玻璃。考慮到玻璃百葉的跨度與強度,AND lab 納間建築將長虹玻璃的長紋用於長邊。
在一段的入口旁,AND lab 納間建築設置了一個櫥窗,也設計了一個藝術裝置。這是一個以時空對話為主題,表現矛盾的裝置。AND lab 納間建築設計了一個貌似雷達天線的架子,在上麵放置了五台80年代的黑白電視,將AND lab 納間建築機械廚房手臂製作冒菜的過程錄製並在黑白電視中循環播放。在黑白的世界裏不應該出現機械手臂,而在太空裏不應該出現黑白電視。這矛盾增加時空交錯感,現在,過去與未來的一個對話。
∇ 軸測圖
∇ 平麵圖
客戶信息:北京優鼎優餐飲管理有限公司
業態:餐飲
麵積:150 sq.m.
地理位置:北京西單
服務種類:室內設計
設計公司:AND lab 納間建築設計谘詢(北京)有限公司AND Lab Pte Ltd
團隊成員:謝典杉,張誠,蔣金華,楊自卓
官網:www.andlab.sg
聯係郵箱:contact@andlab.sg
施工方:安徽彙達建築裝飾設計工程有限公司
機械廚房外殼製作方:河北新裕德畜牧機械科技有限公司
攝影師:崔浩
AND lab 納間建築
最初由日本東京畢業的謝典杉於2012年成立於北京,今天已發展成為一家在新加坡,中國和印度尼西亞都有業務的國際設計公司。主要從事商業類,辦公類,兒童教育類,酒店類,住宅類及醫療類的建築設計,室內設計及品牌設計。
我們的優勢在於通過對空間類型優化創造新特質的空間,增強社交和品牌價值。我們的團隊擁有不同背景和專業領域的人才,如建築師,景觀設計師,室內設計師,燈光照明顧問,品牌顧問,視覺效果顧問,市場營銷顧問,計算機編碼工程師等。
我們研究,分析,設計,原型,並最終提供出色的結果,我們的作品經常在國際網絡和印刷媒體中出現。
在2016年,AND lab 納間建築獲選入圍倫敦SBID國際設計大獎智能設計組決賽。
在2019年,AND lab 納間建築在室內建築組獲得著名的IF設計大獎。
聯係方式:
納間建築設計谘詢(北京)有限公司
郵箱:contact@andlab.sg
電話: +8610 6478 1612
手機:+86 132 6193 7325
地址:北京市朝陽區望京廣順南大街16號院 嘉美中心寫字樓8層819 100102 中國。




















