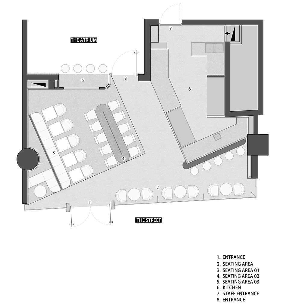
JOY BOX盒裏位於武漢天地壹方一樓核心位置,總麵積70㎡,南北兩側均為展示麵,沿街麵為5m高的落地玻璃。如何在延續其品牌記憶元素之上,因地製宜的在較小的空間中,保有空間的通透性,又不失層次感而顯得平庸,迅速吸引顧客目光,是本次設計中的核心考量。
在原始場地中,街道入口及商場入口分別位於南北兩側,形成一個貫穿的通道。角落處有員工出入口。根據營業需求,備餐區隻能位於員工出入口一側。按照常規做法,即直接由客流動線的貫穿通道將餐廳分為左側就餐區與右側備餐區。而我們在思考本案時,將整體布局逆時針旋轉23.7°。客流動線在吧台前形成一個折角,使人流在此處聚集。就餐區域也因此變大,能容納更多的客戶。
我們延續使用JOY BOX的品牌記憶點——大麵積黑白格立體燈箱作為就餐區與備餐區的空間分隔,餐廳總空高6米,將品牌記憶點集中於點餐區,使關注點更為集中。同時利用燈箱照明最大程度地襯托出全透明的開放式廚房中新鮮食材的顏色以及色澤,幾十種各色蔬菜水果羅列開來,視覺的刺激更調動顧客的食欲。
JOY BOX代表的是一種自然純粹又時尚的品質生活理念,因此在主材料選擇上,我們大麵積運用了水磨石。水磨石是一種很傳統的材質,將碎石、玻璃、石英石等骨料拌入水泥粘接料製成混凝製品後經表麵研磨、拋光而製成。水磨石有兩種做法,一種是現場現澆,另一種是工廠預製板材。受商場施工條件的限製,我們采用了預製板材。傳統的石材,通過現代工藝的全新加工,可以做到既質樸純粹又不失時尚與精致。
photos © Xiaokai Zhang
版權聲明:本站所有文章除投稿授權發布外,其他文字內容均為原創,享有著作權保護,未經許可不得以任何形式進行轉載(包括且不限於:媒體、網站、公眾號等)。所有項目照片/設計圖形版權歸原作者所有。本站部分內容源自網絡公開資源或用戶分享,如若侵犯了原作者的合法權益,可聯係我們進行處理。























