該項目位於廈門市萬象城內,是一家主打椰子雞火鍋的餐廳。為了營造美食與藝術碰撞的氛圍,設計師引入藝術陳設的設計概念。基於簡約設計的原則,設計師用樸素的材料和精致幹練的造型賦予該項目全新的空間體驗。
The restaurant is located in Vientiane city, Xiamen that specializes in coconut chicken hot pot.the designer introduced the concept of artistic display so as to create an atmosphere in which food and art collide together. Based on the principle of simple design, the designer endows the project with new spacial experience with simple materials as well as exquisite and capable modeling.
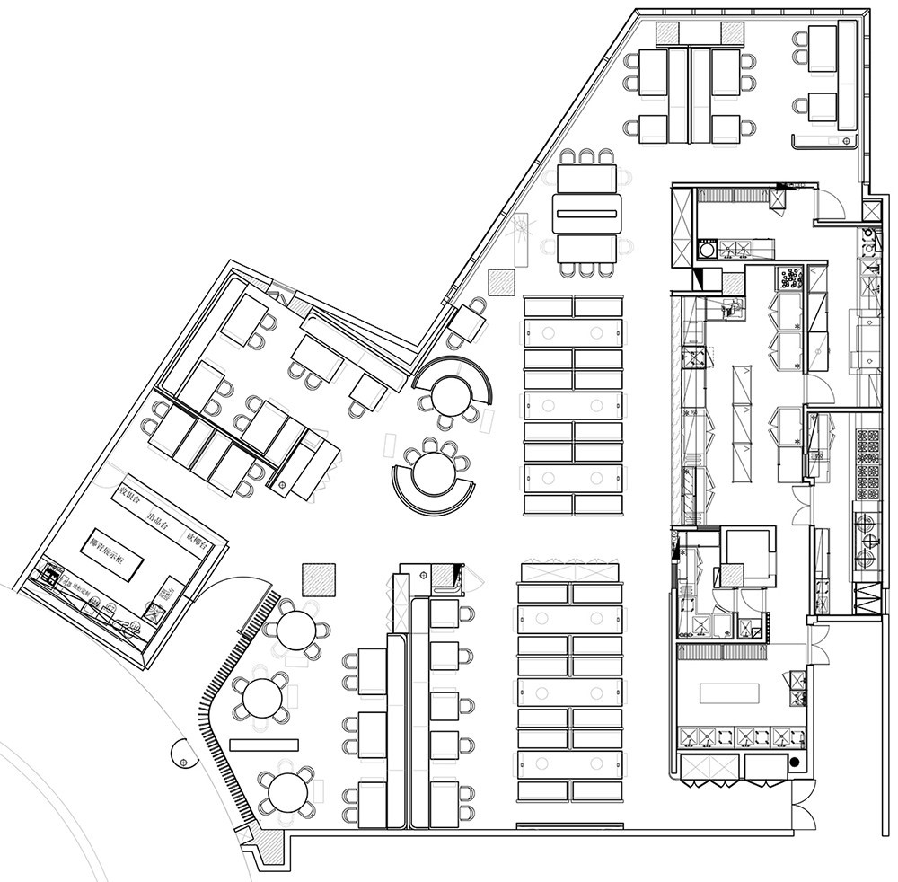
隻有將食材色彩兩者最大限度融合的地方,才能給人以“食”之最高享受,設計置換了櫥窗展示手法來展示餐廳的特有文化。大廳空間置入懸浮屏風,圍合出不同的就餐區域,每個就餐區域間隔而有透,讓食客的視線在整個空間中遊離。加上黑色不鏽鋼的裝飾,令空間增添高貴典雅的氣派。
Only when the colors of the ingredients are combined to the greatest extent can one enjoy the highest quality of the food. The design replaces the window display technique in order to display the unique culture of the restaurant.Suspended screens are placed in the hall to enclose different dining areas where each dining area is separated and transparent, which allows the diners’ sight wander freely in the whole space.In addition, the adornment of black stainless steel make the whole space become more elegant.
自成一體的黑鐵+木質不再是簡單的陪襯,反而與皮布家具爭奇鬥豔,不同主題掛畫豐富了空間的藝術氛圍,讓食客在就餐體驗如同置身於美術館。調動食客身上每一個細胞,讓人們隻想回歸於食色性也的本質,吃個爽快。既能讓食客專注的享用美食,又能在食客抬眼的瞬間感受藝術的魅力。
Instead of a simple foil,The self-integrated black iron and wood competes itself with leather cloth furniture.Hanging pictures with different themes enriches the artistic atmosphere of the space,which makes the diners feel as if they are in an art gallery.Activating every cell of the diners so as to Let them just want to return to the nature of color and food and enjoy the foods with pleasure, which can not only allow the diners to enjoy delicious food intently, but also make them feel the charm of art at the moment when they look up.
更年輕的,更時尚的,甚至是更國際化的表達,鍥合不斷更新迭代客群,最高級表達就是“大道至簡”。無處不在的點睛細節也衝淡了濃鬱色感容易帶來的審美疲勞,令食客們得以更舒適地享受用餐時光。
A younger, more stylish, or even more international expression, constantly updated iterative customer base, the highest expression is “The greatest truths are the simplest “The ubiquitous finishing details also dilute the aesthetic fatigue easily brought by strong color sense, which enables the diners to enjoy the dining time more comfortably.
完整項目信息
項目名稱:大頭椰,樸素精致的空間體驗
項目位置:中國福建廈門
項目類型:餐飲空間/火鍋店
設計師:徐代恒


































