LOFT中國感謝來自 lightspace 的辦公項目案例分享:
在科技發達的今天,一個良好、舒適的辦公環境已經成為許多求職者選擇工作的優先條件。因為人們逐漸意識到:工作不隻是謀生,而是生活中重要的一部分。
lightspace作為中國公共空間領導品牌,一直用原創思維語言進行深度思考,打造“工作+生活”舒適的辦公空間。
本次lightspace聯手空間設計師Alex打造一個顛覆以往的辦公環境和展示空間。設計師發現在循規蹈矩的環境下工作,很容易產生負麵的情緒和極大的壓力。為了解決這個問題,設計師決定打造一個以“玩”為主題的辦公空間(Play ground)。希望可以通過環境尋找工作的價值和意義,讓每個人都能合理釋放身體和心理的壓力,更健康地享受工作。
設計師用“Play ground”回顧了每個人的成長曆程,把活動空間分為三部分。首先以兒時玩的萬花筒為主題的VIP影院,希望從影院中看到懵懵懂懂的童年時光;
其次到以讀書時籃球場為主題的活動沙龍區,回憶揮灑汗水的籃球場上充滿同學們的歡笑;最後到走出校門,進入職場,加班開會的決策會議空間。
“Play ground”將傳統的格子間向開放式辦公轉化,在功能區域的設計方麵也會更加注重個人的健康和舒適度。為了提高工作的質量、身心的健康,工作空間還設有咖啡區、茶室、書吧、睡眠倉、健身區、乒乓球區、頭腦風暴區、獨立思考區等等,同時配置淨化水設備和空氣監測係統,為員工提供健康的水和空氣。
辦公室裝修帶著酒吧、等候區、餐廳、書吧、戶外等公共區域,是最近幾年新潮辦公室的標誌,不僅滿足使用的需求,而且體現了企業品牌和文化的重要性。
前台接待區與吧台設計融為一體,為了在建築材料和設計細節上別出心裁,吧台由天然岩片拚接而成,配以暖色燈光,彰顯公司文化的同時呈現家的溫暖與朝氣,使得整個環境給來往的訪客和員工眼前豁然開朗的視覺感受。
整個空間以等候區作為展開,極具創意的家具和環保健康的天然苔蘚植物牆的引入為整個空間帶來了休閑放鬆的氛圍,同時突顯空間以營造健康及好玩的辦公理念。
咖啡區看似摒棄了繁複的設計,走向簡潔、明快,沒有什麼更多的內容被包含其中,但是它卻采用了實用、人性化的設計,綠色環保的材料,以及流暢時尚的造型來詮釋生活的更深刻的內涵,表達出來的感覺是開闊而明淨的,是溫馨而浪漫的。
書吧根據書架區域麵積做出功能性分割,分成“圖書展示”和“作品展示”區。書是主角,大片的雜誌書籍象征著設計師個性、賦予時代性的設計理念,而產品點綴著整個書吧,橘橙色的座椅、亮片pig等都讓整個場景富有現代氣息。
設計師將文創展示區和產品展示區結合,讓展示區域不再單調,形成一個小型的家居店。產品展示區主要以灰色格子作為視覺展現,在強化空間界限的同時,運用綠色格子和白色格子營造出具有創意性的視覺體驗,此外添上色彩斑斕的椅子,構成空間色彩妙用的對比關係。而對立麵的文創產品區通過連綿起伏的山掛件展示極具創意的文創產品,同時表達企業追求不斷創新的精神。
對於戶外,追求“少即是多”的理念,簡約時尚的休閑椅、茶幾和企業形象Pig點綴其中,摒棄了繁雜的裝飾, 使整個氛圍變得輕鬆、愉快,而洗手間區域通過塗鴉將企業創意的想法表達,增加空間的藝術色彩。
生活的三分之一甚至更多時間被工作充溢,高效並且健康的辦公方式對員工和企業來說至關重要,作為一個以辦公為主題的空間,功能性必然不能少。
變換色彩的天花燈帶將開放工作站、私密工作站和站立會議室連接,看似互相連通卻又相互獨立,滿足在有限空間中實現功能複合的概念,增加整個空間的靈活性。工作站作為員工的重要工作區域,辦公桌配置智能升降功能,讓員工在坐式辦公和站式辦公隨意切換,減少工作帶來的疲勞。
偌大的茶室可以隻是一處茶席,一套茶具,幾張木椅,簡約到了極致,但絕不簡單。因為禪茶一味的茶室氣息俘虜的,不單單是你迷茫不定的眼睛,更是那份浮躁難安的心緒。
休閑區以中性色調為主,原木色櫃子和暖色裝飾作為點綴,開放式的設計使員工一踏進休閑區就可以感受到輕鬆的氛圍,有別於傳統的辦公環境。
聯合辦公區主要強調舒適、開放的辦公氛圍和靈活的工作方式。辦公區選用簡約的座椅和辦公桌,結合智能密碼儲物櫃,提高用戶辦公儲存的辨識度,在色彩上選用幹淨的配色,營造出舒適無壓力的工作環境。當然再繁忙的工作,都別忘了保持健康的體魄,開放式的健身區,讓你保持身體的良好狀態。
為了激發靈感和團隊合作,設計師通過可書寫的白板牆和多功能的媒體設備,使得交流更加高效,而玻璃隔牆提供可望向健身區的透明視野,營造出設計視覺上的連續性。
設計師對材料區進行了大膽的構思,將原本空曠的中間區域改造成乒乓球區,不但解決了空間容納度,同時營造出區域豐富的架構,讓工作和玩同時得以實現。
在辦公環境中,給你一個的小憩場所。睡眠倉為了減少外部噪音,牆壁使用的是聚酯纖維材料的吸音板,同時內部設有電源插座和LED燈,還有專門的通風口使空氣循環流暢。
值得注意的是,在辦公區域,設計師考慮到使用者的舒適度,座椅均采用全球各大頂級品牌,員工每月自由交換座椅,體驗每張頂級座椅帶來的愉悅感,而工作站、大班台、會議桌都帶智能升降功能,可以讓員工在坐式辦公和站式辦公隨意切換,減少工作帶來的疲勞。
空間最有特點的是,地板使用的是當下流行的水磨石,紋理豐富的水磨石地麵,與木地板、拚接地毯形成了巧妙碰撞,為空間營造出更加時尚的氛圍。
∇ 經理室
而植物牆用的是進口天然苔蘚,負離子苔蘚可以作為很高實用價值的天然吸音板,空氣淨化器。同時為了減少室內的噪音,設計師在影院、會議室等空間都考慮了聚酯纖維材料吸音板的元素,通過多種色彩的搭配和不同形狀的拚接,再結合每個場景的搭配,既達到了吸音的功能,也起到了美化空間的作用。
為了讓空間視覺層層遞進,光源采用辦公空間最為流行的一種健康照明設計“雙光照明”,通過隔欄天花來散射天窗的直射光,最大限度利用自然光減少光源帶來的傷害。希望通過“Play ground”這個項目,能給更多的企業和使用者帶來健康、舒適的辦公空間。
∇ 總裁辦公室
∇ 酒店區
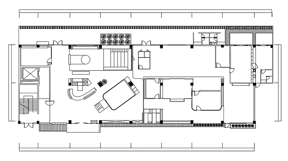
∇ 平麵圖(無家具)
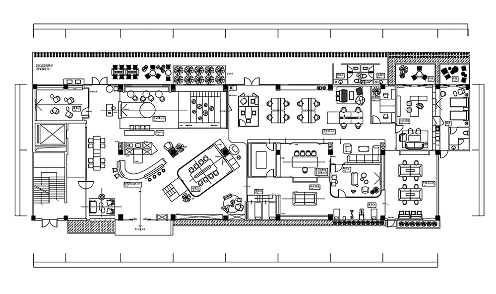
∇ 平麵圖(有家具)
∇ 設計手稿
完整項目信息
項目名稱:lightspace play ground
設計範圍:辦公空間設計
設計公司:lightpoint
設計師:黎文龍(Alex)
設計時間:2018年12月
完工時間:2019年4月
項目地址:中國廣州
項目麵積:1000 m²
主要材料:岩板、水磨石、地板膠、地毯、灰玻、吸音板、木飾麵
主要品牌:lightspace、Waldmann、Candela、Burgeree、Millike












































