LOFT中國感謝來自 拓維設計 的展廳空間項目案例分享:
《道德經》有雲:道法自然……自然方可永恒!一切對未來美好事物的追求都源於對自然的向往,對未來的渴望。
It’s said in Tao Te Ching that Tao models itself after nature… nature can last forever! All the pursuits of wonderful things in the future come from the pursuits of nature and the fantasy of future. Shaping artistic conception and meeting the future in the light.
塑造藝境 光遇未來
如果空間存在於建築之中,反過來,建築可否生長在空間之中。此處空間和建築交混在一起,你中有我,我中有你,自然因素點綴在其中,讓空間中注滿空氣和陽光。本案企圖試圖讓人和建築對話,建築與空間對話,空間與自然對話,營造出一個情景式的建築自然空間的結合體。
If space exists in the architecture, conversely, can architecture grow in the space? Space and architecture are intermingled and contain each other here. Natural factors are embellished, filling the space with air and sunshine. This design attempts to make people talk to architecture, make architecture talk to space, and make space talk to nature so as to create a situational combination of architecture, nature and space.
空間可以被看作是一個虛體,是由實體反轉而成,為了說明這種虛與實,正與負的相對關係,實體反轉後與框架所形成的空間就成為一種被雕刻的空間。空間和牆體被分層,分割和切片,並重新分布,而空間正是這種分散和重組過程中形成一種有意味的表現力豐富的空間,同時它用黑、白、灰三色來表示這種殘缺與完整,實體與虛體的微妙關係。
Space can be regarded as a visional pattern formed by the inverse of a real one to illustrate the relative relations between the visional and the real as well as the positive and the negative, the space formed after the inversion of the real pattern becomes a space being carved. The space and walls are stratified, divided, sliced, and redistributed; the space, in this process of dispersion and reorganization, forms a meaningful and expressive space; meanwhile, it expresses the subtle relationship between incompleteness and completeness as well as the real pattern and visional pattern through three colors, black, white and gray.
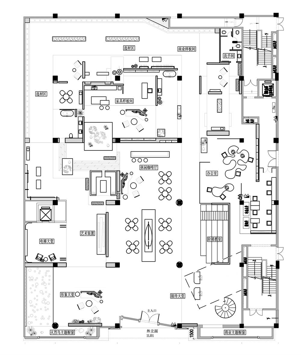
恒福陶瓷企業是佛山具有悠久曆史的本土品牌,整體一樓層高近六米,在空間高度上具有極好的優勢,我們充分的利用了這個優勢,用建築語言對空間進行了改造,通過幾個挑空的盒子穿插,營造一個複式空間結構,使空間具有建築立體屬性。所有功能對應的空間幾何在挑空區域交織,使空間和人形成一個極具張力的對話,進而完成空間的獨特性。
HEGFOUND is a tile brand with a long history based in Foshan. The first floor of its headquarters is nearly six meters high; this is an excellent advantage that we fully utilize to transform the space with architectural language and build a duplex space through the inserts of several empty boxes so as to make the space full of three-dimensional properties of the building. The spatial geometries corresponding to various functions are interwoven in the empty space so that the space and people form a dialogue with tension, and the uniqueness of the space is completed.
企業公共區域是一個極度開放的空間。休閑咖啡吧,周圍環繞著開放式階梯、水景、樹木和藝術裝置,供客人及員工在此休閑、交流及享受大自然的陽光和新鮮空氣。除此之外,將二樓挑空盒子變成洽談室,既考慮到私密性又具有居高臨下的開闊視野。
The public area of an enterprise is an extremely open space. The casual coffee bar surrounded by open staircases, waterscape, trees and artistic installations allow guests and staff to relax, communicate and enjoy the sunshine and fresh air of the nature. In addition, the empty boxes on the second floor are turned into negotiation rooms in consideration of privacy and commanding broad vision.
洽談室在設計上做了獨特處理,利用斜插出來懸挑的盒子體作為建築構造,使空間獨特而富有張力。用扇形的階梯空間連接左右兩邊的盒子結構。使空間相互交錯,互相呼應,溫潤的木質材料與冰冷的大理石地麵相互碰撞,渾然天成。通過屋頂焊接工藝,將盒子結構懸浮於空中,顛覆人們對於力學的常規感受!
The negotiation rooms are particularly processed in design; cantilevered boxes with oblique cutting design are taken as the architectural structure so that the space is unique and rich in tension. Sectorial stair space is connected with the box structures on the left and right to make the space interlace and echo with each other. The warm wood material and the cold marble floor collide with each other as if they are not a man-made structure. The boxes are suspended in the air through roof welding, subverting people’s conventional feeling of mechanics!
商業空間除了追求空間上的美感,更重要的是功能的再生和使用率,每一個角落都具有獨特的使用價值。盡可能利用空間自身的屬性和特點,將樓梯處理成階梯教室,可以承擔非正式會議,或舉辦小型沙龍,亦可以是公共書吧,再或者是小劇場…….
Besides the aesthetic feeling on the space, what is more important for a commercial space is the regeneration and utilization rate of functions; each corner should have its unique use value, the attributes and characteristics of the space should be made full use, the stairs are turned into a terrace classroom for informal meetings, small salons, a public book bar, or a small theater……
設計師通過使用特殊材質來延續建築設計的特征,為了阻擋西邊太陽的直射,運用晶瑩剔透水晶磚和白色大理石磚交混在一起形成一道天然屏風。
Special materials are used to continue the characteristics of architectural design, glittering and translucent crystal bricks and white marble bricks are mixed to form a natural screen in order to block the direct sunlight from the west.
後麵放置綠植,下午強烈的陽光透過樹叢照射在水晶牆上,通過水晶牆的折射效應,營造出具有奇特夢幻般的場景。以光之力,與藝相輔,波光粼粼的不鏽鋼天花,其結構的的變化,令光的融合度也產生變化,在日與夜的變化中,通過微妙的色調改變著整個空間的氛圍。
Green plants are placed at the back, the strong sunlight shines on the crystal wall in the afternoon through the trees and create a unique and dreamy scene through the refraction effect of the crystal wall. The structure of the shimmering stainless steel ceiling changes with the force of light and auxiliary of art so that the fusion degrees of light also make a difference, it changes the atmosphere of the whole space through delicate tonal change during the alternation of day and night.
“陽光透過林蔭灑在水麵上,麋鹿悠閑的漫步……”在大堂休閑空間中使用浪漫主義手段來呈現一種天然氧吧氛圍。大片的綠植及用水紋不鏽鋼營造的水麵,通過鏡麵反射將樹叢變得更有縱深感,曠達與細膩碰撞交映,舒展奇妙的流動氛圍,人類與大自然共存的和諧。
“The sunlight is shining on the water through the trees, and moose are walking leisurely…” Romantic means are used in the leisure space of the lobby to present a natural oxygen bar atmosphere. Large area of green plants and the water surface created by corrugated stainless steel make the trees more profound through the mirror reflection. The broadness and delicacy collide and enhance with each other, extending the wonderful flowing atmosphere as well as the harmony between human beings and nature.
引景入室,設計師為來訪者創造一場生命感的邂逅,被設定的的牆麵產生的光和影,與彼時靈動線條,禪心明月,樹影斑駁交相輝映,平增一份雅趣。
The designers bring the scenes into the rooms and create an encounter with the sense of life for the visitors; the light and shadow produced from the specific wall add radiance to the flexible lines, meditative mind, bright moon and mottled shades, and increase an elegant taste.
意大利建築師布魯諾·賽維在《現代建築語言》中指出,在現代建築中,室內空間由光與實體(造型)來變現,人對空間的感知和體驗是在光和形成空間的實體元素的參與下完成的。” 換言之,光是室內設計必不可缺的一部分。光作為一種特殊媒介,它對空間氛圍營造有著重要作用,恰到好處的光線處理能更好地感知空間,喚起其空間的共鳴。巧妙地利用自然采光,能讓室內外景觀建立起聯係,並能增強空間與自然室外景色的互動。
Italian architect Bruno Zevi pointed out in The Modern Language of Architecture that in modern architectures, interior space is realized by light and solid (modeling), and people’s perception and experience of space are completed with the participation of light and the entity elements that form space. In other words, light is an essential part of interior design, as a special medium, it plays an important role in creating space atmosphere. Proper light processing can better perceive space and arouse its space resonance. The ingenious use of natural lighting can establish a connection between the indoor and outdoor landscapes, and improve the interactions between the space and the natural outdoor landscapes.
在現實生活中,人們生活在喧囂繁雜的鋼筋水泥城市裏,內心幻想著一處歸隱避世的清淨之所,以此為創意的閑庭後院就是試圖實現這一理想,用素雅的水泥磚以及質樸的木材做成的都市庭院,構建一處暫避浮躁喧囂、淨化心靈之地,庭院一邊做成的圍合式休閑區舒適愜意,休閑區中央石台放置的戶外烤爐更給人送去一絲暖意。這就是主創的設計初衷。
In real life, what people dream amid the hustle and bustle of reinforced concrete cities is a clean place that hides from the world. And a creative backyard is just the right trial to realize this ideal. The urban courtyard made using elegant cement bricks and simple wood builds a place to get rid of fickleness and purify the soul. The enclosed leisure area on one side of the courtyard is comfortable with the oven placed outdoor, giving people warmness. This is the original intention for the creation.
選材區以產品展示為核心,通過疏密有致的幾何體塊序列進行敘事。非對稱空間是在空間維度上尋找平衡點,是相對複雜且豐富的,空間體量和疏密有致的幾何體塊之間的關係形成了空間獨有的藝術形態,在細節處理上,對材料的對縫,收邊,比例都經過細致的推敲和設計和精磨精切。追求品質,而這就是建築對使用者體現出的尊重感。黃銅等金屬材質低調地出現在空間中,使得室內的寧靜氛圍多了些許豐富的變化。而木材與石材的運用,亦使空間多了些溫潤及細致的表達。
The selection area centers on product display for the narrative made through a sequence of sparse-and-dense geometric blocks. The relatively complex yet rich asymmetric space finds its balance point in the spatial dimension, creating the unique artistic form of the space in terms of the relationship between the spatial volume and the dense geometric block forms. When it comes to the treatment of details, the seams, edges, and proportions of the material are carefully sculpted, designed, and refined. To pursue quality represents the sense of respect shown to architecture users. Metals like the low-key brass appear in the space, contributing to varied changes of the interior serenity. The wood and stone are used to warmly and meticulously express the space.
完整項目信息
項目名稱:恒福陶瓷總部展廳
項目類型:辦公空間、展示空間
項目地址:佛山市禪城區南莊陶博大道29號
設計主創:汪誌科&李小水
設計團隊:拓維設計
項目麵積:1800平方米
設計時間:2018.11
竣工時間:2019.4
主要材料:加拿大CHOIMER塗料,恒福瓷磚,玻璃磚
業主:恒福陶瓷
攝影師:歐陽雲
Project name: HEGFOUND Headquarters
Project type: Working & exhibition space
Location: No. 29, Taobo Avenue, Nanzhuang Town, Chancheng District, Foshan, China
Chief designers: Wang Zhike & Li Xiaoshui
Design firm: FOSHAN TOPWAY DESIGN
Project area: 1,800 sqm
Start time: November 2018
Completion time: April 2019
Main materials: CHOIMER paint, HEGFOUND tiles, KD boards
Client: HEGFOUND
Photography: Ouyang Yun













































