Cometa 是一家坐落於上海蘇州河沿岸的概念型意大利小酒館。 Cometa被認為是線上時尚商店成功的第一個實體前哨,作為一個精心策劃的地標,它帶來了更多獨特的雞尾酒、美食和時尚的生活方式。
曆史上,蘇州河是連接上海與蘇州的重要通道,沿岸有眾多倉庫和工廠。 Cometa 在原有的地點被翻新, MASS 借鑒了這種分層的工業曆史、地點背景以及業主的家鄉上海和米蘭的折衷參考作為室內設計概念,並以現代迭代方式延續傳統。
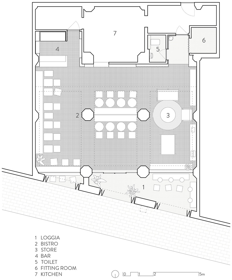
沿著容納酒吧、廚房、服務窗口、貨架和衛生間的空間長度插入了一個工業金屬波紋卷。 周圍的小酒館和小商店錯落有致,布局類似於住宅。 在地麵上使用碳灰色馬賽克進一步提高了室內規格。
被剝落的牆壁,露出原來的六角柱和混凝土牆麵。 白色穿孔木板懸掛在天花板上,以在視覺和聲學上柔化空間,並將更多的光線反射到空間中。
MASS 推到對角的正麵,創建出一個涼廊,從而邀請顧客進店入座,讓人感覺像地中海式別墅或廣場的傳統開放式休息空間。 通過模糊了公共與私人空間,外界事物被吸引進來,同樣,商店的內部空間成為鄰裏街景的延伸。
在涼廊中,Cometa商標經常出現在原入口處,奶油色馬賽克地麵以嵌入商標歡迎顧客。 為了向該地區的工業遺產致敬,在一天結束時,關閉正麵的折疊門。
Cometa 的所有者兼創意總監 Alan Grillo Spina與 MASS合作設計的家具,彩色膠合板與實用的拉絲不鏽鋼、鄉土竹子和複古麵料相結合。靈感來自於現代美國極簡主義,具有清晰、工藝和功能性。
∇ 軸測圖
∇ 平麵圖
項目信息
項目名稱: Cometa
設計公司:MASS
項目地點:上海市靜安區南蘇州路1405號
麵積:130 平方米
完成年份:2021 年
攝影師:Alan Grillo Spina





















