這座別墅位於巴西塞爾希培州的沿海地區,最初是為度假而設計,但很快就成為了這個家庭的主要住所。
在Coletivo de Arquitetos的幫助下,地段的選擇優先考慮了一個沒有鄰居可以阻擋房屋內通風自由到達的位置,這是該國該地區有效熱舒適的最重要的先決條件。它的實施被定義為兩個街區:一個主體塊幾乎涵蓋了房子的整個功能,另一個體塊與第一個體塊相連,由一個多邊形板構成,其中包含美食區、服務區和車庫。主體塊有兩個內部功能體量(就像庇護所中的庇護所),兩者都具有親密的性質,由集成廚房、餐廳和客廳組成的房子的社交功能將彼此隔開。
實心紅磚的存在非常突出,以各種方式和不同的情況使用,作為密封、地板或遮陽元素。這些材料與木材和牆壁上主要的白色一起,貫穿整個建築,並隨著時間的推移建立了一種持久和易於維護的條件。
可移動的百葉窗被用來過濾太陽入射,同時也作為別墅的密封。它們的滲透性有助於保持住宅內的通風,即使在關閉時也是如此。景觀滲透到別墅的內部和外部區域,並根據所選物種以不同的方式發展。沿著正麵,選擇了對水的需求較低並適應較幹燥和陽光充足的氣候的物種。在別墅的內部和後部,該物種組成了一個更具熱帶性質的花園,有助於設計永久性空間以及內部和外部之間的過渡關係。
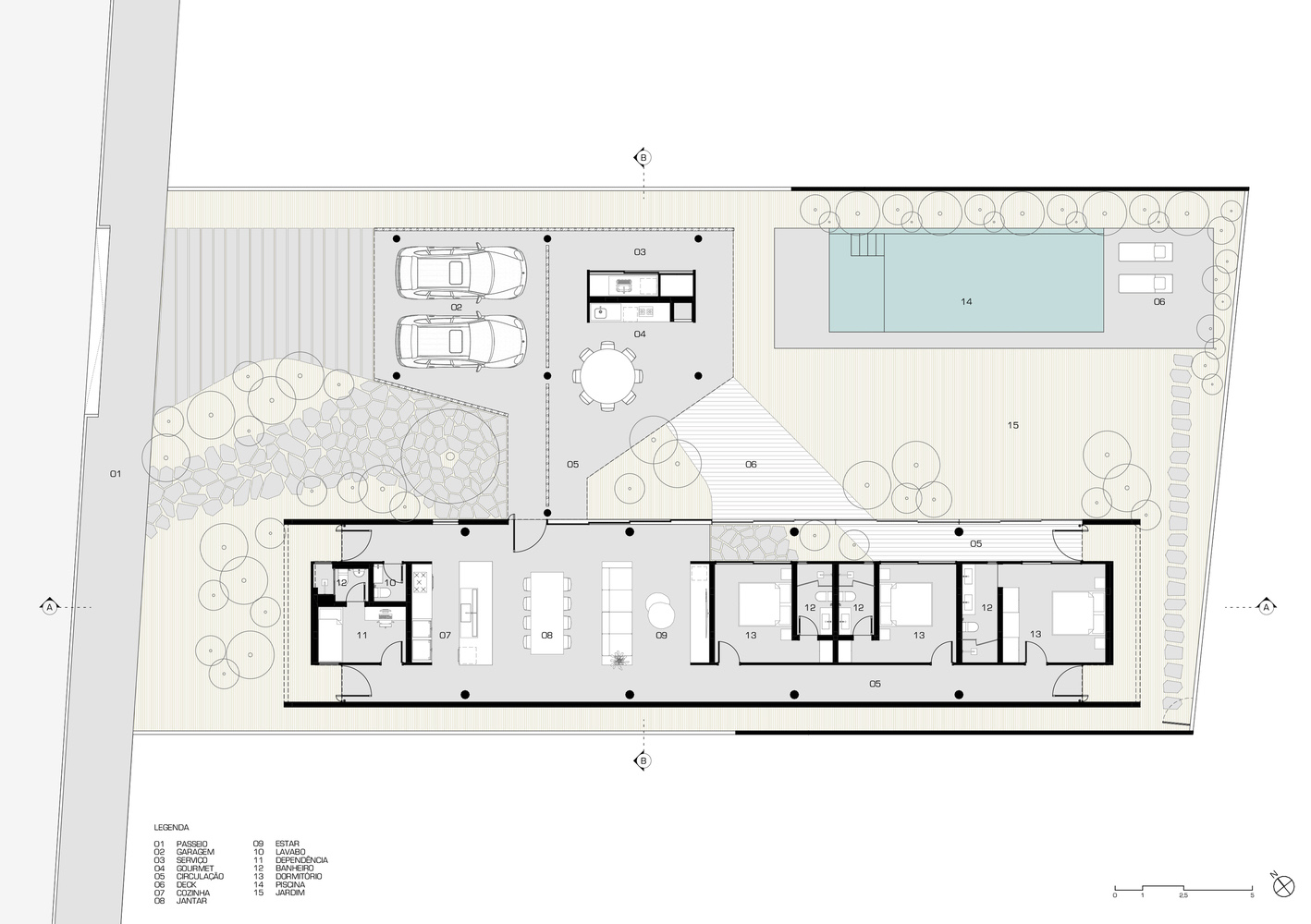
∇ 平麵圖
∇ 爆炸分析圖
版權聲明:本站所有文章除投稿授權發布外,其他文字內容均為原創,享有著作權保護,未經許可不得以任何形式進行轉載(包括且不限於:媒體、網站、公眾號等)。所有項目照片/設計圖形版權歸原作者所有。本站部分內容源自網絡公開資源或用戶分享,如若侵犯了原作者的合法權益,可聯係我們進行處理。





































