1 百年洋房,以食造境
Century-Old House,Creating Ambience with Food
∇ 剖麵圖
當光滑的木材、自然的石材、原始肌理的金屬和威尼斯石膏飾麵交織在一起,它們不僅創造了自然主義的美感,也在微妙之處展現了精致的細節。EHB餐廳的空間設計如同一場來自挪威有機、細致的烹飪理念與中國曆史中融合科學與自然傳統的持續對話。
曆經幾次易主的東平路11號,如今將以EHB餐廳的身份,繼續書寫著屬於上海這座城市的優雅故事。從自然有機的北歐烹飪哲學,到寫意的空間美學,再到生機盎然的場景,自然與時間之味在此交融。在這裏,東方與西方的美學相互交融,烹飪與設計進行了藝術對話,帶來了一場跨越時空的美妙邂逅,如同時間的褶皺,將曆史的記憶與現代的創新交織在一起。
東平路11號這座建築,融合了新古典主義和法國文藝複興風格,承載著百年光陰的厚重曆史,其曆史可追溯至1921年。它如同一本沉澱著時光和記憶的古老故事書,為EHB餐廳的初始設計提供了堅實的基礎。周圍的領事館和壯麗的住宅,如曆史的見證,一直灌輸新設計的靈感,時刻將過去的輝煌注入新生的設計靈感。
這座建築的外觀既莊重又簡潔,西方古典建築元素貫穿其中,屋頂采用了孟莎雙折屋頂設計,帶有方形優雅的老虎窗,和諧的比例應用讓建築整體顯得高雅而有序。在南麵麵向花園的廊下,是兩層帶有塔司幹雙柱柱廊的敞廊,由三心拱和寶瓶欄杆進行連接,形成了一個獨特的弧形廊下空間。每當陽光透過樹木穿過灑下空間時,斑駁的光影與室內藝術品般的家具便會“共舞”一曲。
2 感知於自然、在簡化中構築詩意空間
Perceiving in Nature、Building Poetic Space in Simplification
每個廚師都知道,卓越的食物源於幾乎無法解釋的事物,在EHB主廚Esben Holmboe Bang比大多數人更了解這種豐富細致的體驗。在挪威奧斯陸,主廚 Holmboe Bang的米其林三星級餐廳Maaemo,餐廳和廚房的工作人員會親自去到當地森林裏麵采摘和捕捉動植物作為食材,為“農場到餐桌”這一概念賦予新意義。
因此在設計EHB餐廳時,設計強調了中國植物醫學、科學與自然傳統,以及主廚獨特的烹飪理念之間的融合。這種融合創造出的化學反應,旨在讓用餐體驗可以更加豐富且純粹。
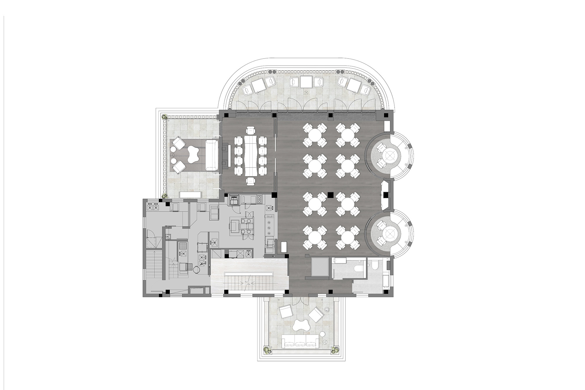
EHB餐廳共分為三層,一層為下午茶室,二層為主餐廳,三層為休閑廳。一層注重中國風和自然細節,二樓和三樓采用本土北歐設計的形式、材料和顏色,在明顯地向主廚Holmboe Bang的烹飪理念和挪威傳統致敬的同時,也希望喚起主廚備受讚譽的獨特用餐體驗。
下午茶室
初見,是生命中的一抹新色
進入一層下午茶室,是撲麵而來的自然生機。主廚頌揚使用有機、新鮮和野生農產品來體現挪威當地風味的烹飪理念也體現在餐廳一樓的設計中。
設計師以東方美學為設計靈感,敷以大麵積中性色調做底,配以花鳥紋樣的牆紙表現中國傳統的榫卯細節,在尊重原有建築結構的同時,輕鬆營造出一種和諧的靜謐感。
經典的西方鑲板和地板中仿榫卯結構的細節與斯堪的納維亞的現代家具相得益彰。而這些通常由木頭製成且被隱藏起來的細節在這裏以黃銅金屬的形式轉變為一個亮眼的存在。這些基於自然主義美學的巧思表達,讓下午茶室充滿了獨特的魅力。
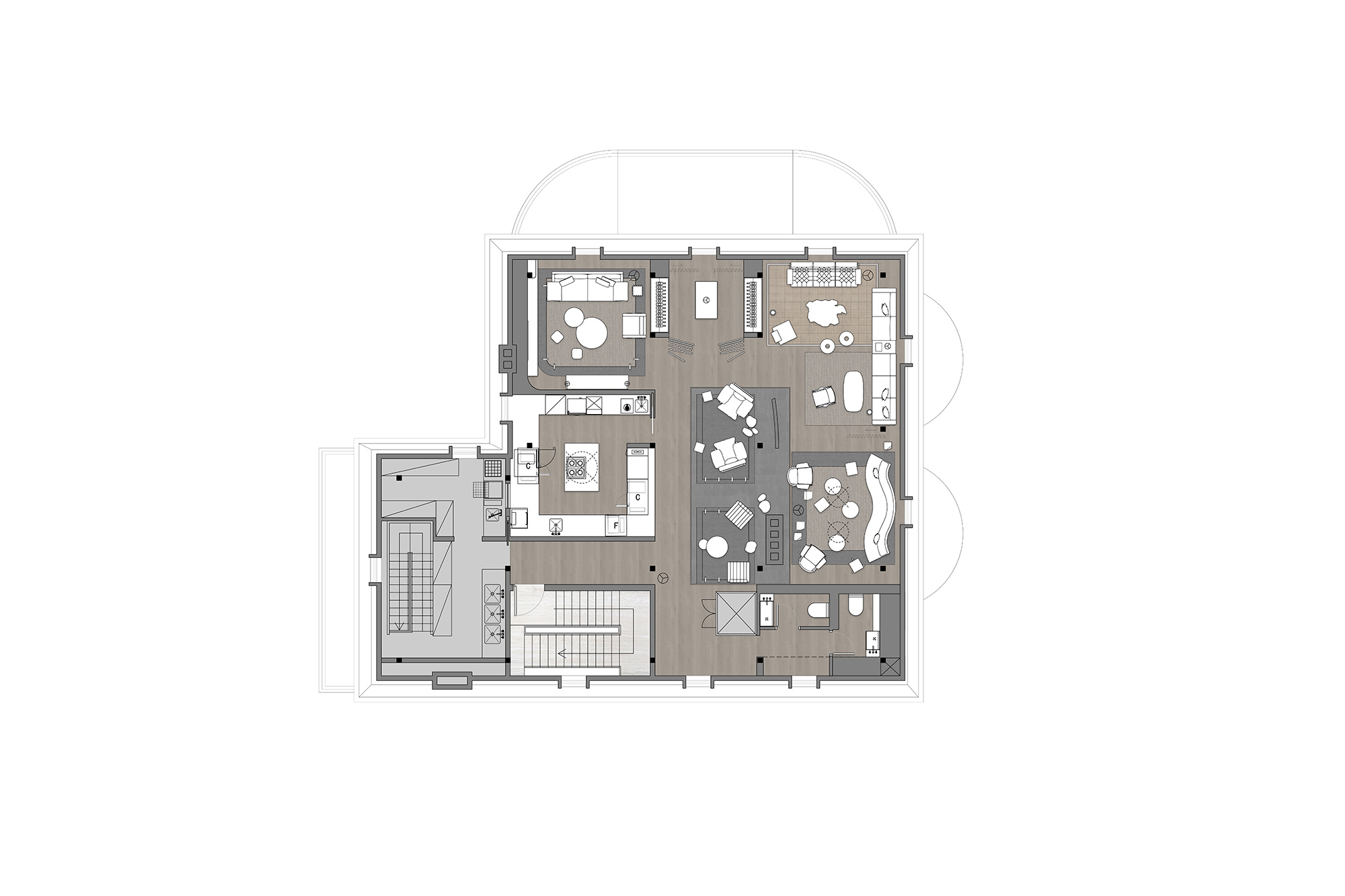
主餐廳&休閑廳
再見,是難以忘卻的體驗
在保持別墅原有建築完整性的同時,二樓餐廳的設計采用了更簡約和更現代的方法,更多的采用了北歐本土的設計風格。深色調材質與昏黃燈光的搭配,質感與肌理的排列組合,將空間的敘事情感又推至到夜晚。
深色調的豐富選材應用於室內建築和家具,減少瑣碎的細節,更加突出材質本身的美感,細致的工藝和清晰的線條賦予了空間更為自然而精致的魅力。
相較於其他兩層,三樓的建築風格與色彩都更為豐富,所營造出的溫馨氛圍,更像是主廚的“會客廳”,在餐前餐後款待著每一位尋味至此的食客。
從入口處,有機自然的層板狀設計形態,便向食客充分展示了起伏波動巨大的北歐峽灣,頃刻之間,便營造出平靜與舒適的氛圍。
轉身向內行,便會注意到開放式的天花板結構、外露的桁架和榫卯結構的橫梁,這是空間整體氛圍的點睛之筆。這些承載著歲月痕跡的木結構與現代家具和裝飾又形成了有趣的對話。
這個空間原有的壁爐,恰好位於客廳的中心,與周圍的家具和建築飾麵形成了一種趣味互動。在保留了受斯堪的納維亞風格影響的元素的同時,為了滿足功能與私密感的體驗需求,品酒室被有意放置在視覺和物理的雙重中心位置,為食客創造出一個半私人的寧靜角落,可沉浸感受設計與空間、人與情感之間的微妙互動。
EHB的設計不僅僅是一種美學表達
更是對人與空間關係的深刻思考
一個充滿故事與創意的食之境地
從東方的自然之美
到北歐的深邃風情
純粹、自然的設計語言
質感和肌理的獨特組合
風格隨空間序列自然生成
每一次的造訪
都會帶來與空間不同的情感共鳴
於時間裏漫遊,敘事故事的多元
∇ 一層平麵圖
∇ 二層平麵圖
∇ 三層平麵圖
項目信息
項目名稱: EHB餐廳
項目地點:上海
項目類型:室內設計
項目狀態:建成
主持設計師: Chris Shao 邵程
設計團隊: 召禾室內設計
設計年代: 2022
建設周期: 2023 年春
室內麵積: 450平米
照明顧問:Isabel Zhu
景觀設計: Fish Design
藝術家: Natalia Landowska, Gil Melott, Sophie Lou Jacobsen, Pelle Designs(Jean & Oliver Pelle), Yves Mohy,
其他領域顧問: Morris, Jebara & Co.
主要材料: 木、漆、大理石、金屬、瓷磚、皮革、牆紙、樹脂
家具及軟裝: Objective Gallery (OBJ +), Finn Juhl, BD Barcelona Design, Fogia,
攝影:朱海








































