SAUCE UP是位於沈陽的一家精致的西式餐吧,名字出自Pink Floyd樂隊專輯《A Saucerful of Secrets》,空間是多樣的、碎片化同時極具包容性,希望傳達一種有包裹感、不刻意的舒適氛圍。
項目位於沈陽市老城區兩麵臨街的一樓,場地前身是一家生鮮超市,室內原始狀態是開敞的空間,由兩側通透的落地玻璃圍成。
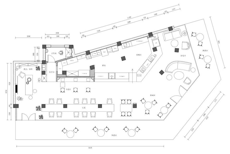
空間平麵原始狀態是不規則的,且柱子之間缺少對齊邏輯關係。我們在設計中根據柱的分布,結合用餐的感受,巧妙地劃分出了不同功能區,並且使其在空間中和諧交融。
∇ 軸測圖
進入空間後映入眼簾的是開放式的吧台和廚房區域,在入口的左側是餐區,分為長桌、卡座區和散桌三部分。客人透過餐區能看見盡頭的花藝區,在花藝區有單獨的開門,實現獨立進出。
入口右側是休閑區(Lounge area),提供了休閑交談的場所。整體布局開放、清晰,使各個功能區交互自由。
我們在該項目的設計中對原始建築狀態進行了選擇性保留。我們保留了原始擴建的鋼結構和木板做為空間生長變遷的印證,並且在空間中運用同樣的金屬色和木色,塑造呼應關係。通過長桌的植入,不僅保留了原始空間的痕跡,還消隱了過多柱子帶來的阻隔感。
空間選用綠色、棕色作為主觀顏色貫穿,綠色與棕色帶給人複古美式的即視感,同時也是生機與自然的顏色。我們從原始痕跡的選擇,到空間內的牆地麵材質,再到定製、家具、藝術品、軟裝,統統遵循主線顏色的把控,使得最終呈現整體且聯動。在配色的層層框架之下,色彩的張力蔓延到空間。
SAUCE,豐富的調料般自由奔放。BISTRO,輕鬆的就餐氣息。我們希望SAUCE UP BISTRO是美食與人自由交互的場所,通過空間構成關係與色彩的碰撞,呈現豐富的體驗。
∇ 平麵圖
項目信息
項目名稱:Sauce Up Bistro
項目類型:餐飲
設計方:白菜設計
項目設計:白菜設計
完成年份:2022
設計團隊:首席設計師:趙凱文 設計團隊成員:劉添翼 王相卓 時含瑞 孫克楠 魏垠麟
項目地址:遼寧省沈陽市和平區北五經街20號八緯路交叉路口
建築麵積:168㎡
攝影版權:圖派視覺
合作方:沈陽博森建築裝飾有限公司
客戶:Sauce Up Bistro
材料:木飾麵、瓷磚、乳膠漆、金屬方管

























